EasyManua.ls Logo

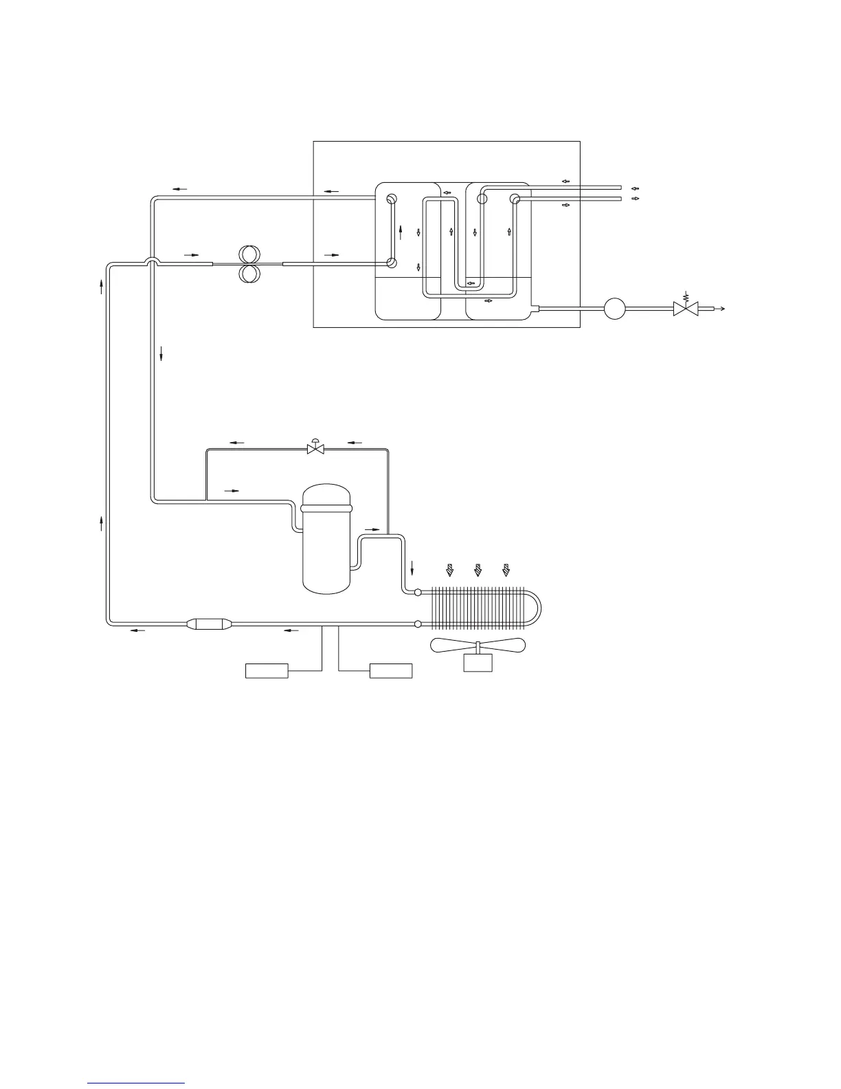
FScurtis RNP75 - AIR AND REFRIGERANT FLOW SCHEMATICS; 200 to 500 scfm Models Flow Schematic

FScurtis RNP75
16 pages
Print Icon
To Next Page IconTo Next Page
To Next Page IconTo Next Page
To Previous Page IconTo Previous Page
To Previous Page IconTo Previous Page
Loading...
13
Figure 2b
200 to 500 scfm models
AIR AND REFRIGERANT FLOW SCHEMATICS
DRAIN VALVE
STRAINER
FILTER/DRYER
REFRIGERANT
COMPRESSOR
CONDENSER
FAN BLADES
& FAN MOTOR
AIR FLOW
CHILLER
(REF TO AIR HEAT EXCHANGER)
REHEATER
(AIR TO AIR HEAT EXCHANGER)
COMPRESSED AIR INLET
COMPRESSED AIR OUTLET
S
MOISTURE SEPARATOR INTEGRATED BRAZED PLATE HEAT EXCHANGER
ELECTRONIC AUTO
DRAIN VALVE
HIGH PRESSURE SWITCH
HOT GAS BY-PASS VALVE
CAPILLARY TUBE
FAN PRESSURE SWITCH
H.P. SF. P. S

Related product manuals