EasyManua.ls Logo

Fujitsu General AOH9LFBC - Error Contents

Default Icon
16 pages
Print Icon
To Next Page IconTo Next Page
To Next Page IconTo Next Page
To Previous Page IconTo Previous Page
To Previous Page IconTo Previous Page
Loading...
F100
15A - 250V <ATLCR>
D102
1NH42
R103
100
<1/2W>
F101
15A - 250V <ATLCR>
CR30
RE1201
CN30
B2P3-VH-B-C
BLACK
BLACK
BLACK
JM32
JM31
3
1 2
4
K30
G5NB-1A
CR80
RE1202
C80
1.8
<DS401185>
1
2
3
BLACK
ORANGE
WHITE
CN10
BH3P5-VH-B
WHITE
F M
FAN MOTOR
12V
5V
C40
0.1
<F>
R40
R41
R42
R43
1.5K x 4
EPV3/44P
EPV1/45P
EPV2/42P
EPV4/43P
12V
5V
L70
BL02Rn1
I C40
TD62064
2
7
9
16
4
5
12
13
3
6
11
14
1
8
10
15
O1
O2
O3
O4
GND1
COM1
COM2
GND4
GND3
GND2
NC1
NC2
I 1
I 2
I 3
I 4
JM30
12V
2
4
3
1
K3
G5N-1A
REACTOR
12A 18mH
D100
D15XB60
B
B
W10
W11
WHITE
RED
AWG14
AWG14
1
4
2
3
+
-
D101
D15XB60
-
+
1
4
2
3
B
B
ORANGE
UL1015
AWG14
W6
W5
15V
R1
ZPR0RCH400
K1
DW12D-0
12V
PR / I C80-5
R400 - R405
0.15 <2W> (1%) x 6
I C103-4
uPC324
14
12
13
+
-
-12V
D105
DAN217U
3
2
1
V4-AC / I C80-3
5V
R504
10K
I C500
MB90460
VCC
56
11
25
26
40
36
37
38
39
12
45
46
50
51
52
53
54
55
14
15
18
20
64
63
62
61
1
19
48
13
24
4923
22
4
6
5
7
8
9
10
44
43
42
41
57
33
32
31
30
29
28
27
47
34
21
60
58
59
3
35
2
16
17
AVCC
P00
P01
P17
P13
P14
P15
P16
AVR
P24
P25
P30
P31
P32
P33
P34
P35
P60
P61
MD0
MD1
P44
P43
P42
P41
P45
RSTX
P27
AGND
GND
GND
P63
P62
P46
P12
P50
P37
P36
P40
MD2
P11
P26
P02
P03
P04
P05
P06
P07
P10
C
P20
P21
P22
P23
P57
P56
P55
P54
P52
P53
P51
X0
X1
X500
8.0MHz
<EF0MC>
C500
0.1
<F>
C502
0.1
<F>
C503
0.1
<F>
+
C501
4.7/50V
C561
0.01
<F>
R561
1.0K
R560
100K
5V
I C560
S80842
3
4
2
1
VDD
OUT GND
NC
15V
15V
C130
0.1
<F>
MD1 / 64P
MD2 / 63P
TCK / 62P
TRXD / 61P
MD0 / 1P
/ TRES / 19P
S I / 48P
TMODE / 18P
PFCEN / 14P
PFC-TRIP / 46P
EPV1 / 45P
E2DI / 39P
ZXL / 37P
ZXH / 36P
E2SK / 40P
U / 50P
X / 51P
V / 52P
Y / 53P
W / 54P
Z / 55P
15V
C115
0.1
<F>
C116
0.1
<F>
-12V
C112
0.1
<F>
TAUX / 25P
JM500
R500
10K
R502
1.0K
R503
10K
FAN I N / 17P
FAN PWM / 2P
PFC SW / 35P
CT / 3P
TEST / 59P
TAUX3 / 21P
TTXD / 60P
PFS / 58P
15V
C. M.
COMPRESSOR
EMI FILTER
U
V
W
B BB
W7 W8 W9
1-172132-1
BLACK BLACK
WHITE WHITE
RED RED AWG16
AWG16
AWG16
U V
W
DCV
R210
1.0K
C214
2200P
<B>
C213
0.022
<F>
I PM-G
I PM-G
R218
10K
5V
C219
1000P
<B>
R220
1.0K
R219 1.0K
R204 - R209
390 x 6
U / 50P
V / 52P
W / 54P
X / 51P
Y / 53P
Z / 55P
I PM-TRIP / 33P
12V
5V
R311
8.66K
(1%)
R310
143
(1%)
R309
5.76K
(1%)
15V
D303
DAN217U
D304
DAN217U
3
3
2
2
1 1
+
15V
C84
0.1
<F>
C86
470P
<B>
C87
330P
<B>
7
6
5
+
-
5V
I C302-2
LM2903
C85
4.7/
50V
R81
22K
R95
1.0K
1
2
3
DCV-F
R96
4.7K
CP-POS / 47P
R83
27K
C300
100P
<CH>
Q80
2SC2412K
<BQ>
5V
-12V
15V
I C300-2
LM258
I C300-1
LM258
-
-
+
+
5
6
7
1
2
3
C306
0.1
<F>
C305
0.1
<F>
R330 4.7K (1%)
R332 4.7K (1%)
I PM-G
V4-AC / 27P
AC FAN / 28P
V4-DC / 29P
LED / 30P
PR / 31P
SO / 32P
E2CS / 41P
EPV2 / 42P
EPV3 / 44P
EPV4 / 43P
DCV / 8P
ACV / 7P
TE / 5P
TA / 6P
TD / 4P�@�@�@�@
I PM-CR / 9P
I PM-TRIP / 33P
CP-POS / 47P
5V
C570
0.1
<F>
I C570
BR93LC46
R570
10K
E2CS / 41P
E2SK / 40P
E2DI / 39P
12V
12V
I C80
M54523
1
2
3
6
8
4
7
5
VCC
DO
NC
GND
CS
SK
D I
NC
1C
6C
5C
4C
3C
2C
7C
COM
1B
7B
6B
5B
4B
3B
2B
E
V4-AC / 27P
V4-DC / 29P
PR / 31P
AC FAN / 28P
SO / 32P
LED / 30P
5V
R80
2.2K
SO / I C80-2
V4-AC / I C80-3
V4-DC / I C80-4
PR / I C80-5
AC FAN / I C80-6
D80
SLR-332
<RED>
R585
1.0K
TAUX / 25P
TTXD / 60P
TRXD / 61P
TMODE / 18P
TAUX3 / 21P
TCK / 62P
/ TRES / 19P
CN580
B10B-PASK-1
WHITE
C73
0.1
<F>
C72
0.1
<F>
C75
0.1
<F>
R75
10K
R76
10K
R77
10K
R71
4.75K
(1%)
R72
6.65K
(1%)
R73
38.3K (1%)
C71
0.1
<F>
TE / 5P
TD / 4P
TA / 6P
TEST / 59P
MD2 / 63P
MD1 / 64P
MD0 / 1P
R93 R92 R90R91
10K x 4
R583 1.0K
R584 22K
R582 10K
R581 10K
C580
0.1
<F>
TAUX
TTXD
TRXD
TMODE
TAUX3
TCK
/ TRES
/ TICS
1
5
8
7
6
4
3
2
10
9
1
3
2
1
4
3
2
1
6
5
4
3
2
YELLOW
WHITE
ORANGE
BLUE
BROWN
RED
BLACK
BLACK
BROWN
BROWN
BLACK
BLACK
CN70
B03B-PASK-1
WHITE
C4
0.01
<E>
C5
0.01
<E>
C6 1.0
<LE>
C1 1.0
<LE>
L1
SC-10-55JH
SA1
RA-302M
B
B
B
B
W3
W2
W4
W1
VA1 470V
<TNR>
VA2
470V
<TNR>
5V
5V
SO / I C80-2
HY I C 1
GK-30434
18
14
10 5 4 3 2
1
R23
27K
R21
10K
R20 1.0K
R22 1.0K
S I / 48P
ZXL / 37P
C20
0.022
<F>
C21
0.047
<B>
15V
5V
R132
2.2K
R131
100K
(1%)
PFC / 58P
2
1
3
+
10
9
8
+
7
5
6
-
-
C118
1000P
<B>
Q101
DTC114EUA
I C103-3
uPC324
R130
100K
(1%)
I C103-2
uPC324
C117
1000P
<B>
5V
R162
68K (1%)
R160
68K
(1%)
-
+
2
3
1
+
7
6
1
5V
5V
R112
10K
(1%)
5V
5V
EXPANSION VALVE
M
CN40
B6B-XARK-1-A
RED
CN71
B04B-PASK-1
WHITE
DISCHARGE TEMPERATURE THERMISTOR
PIPE TEMPERATURE THERMISTOR
OUTDOOR TEMPERATURE THERMISTOR
4-WAY VALVE
SERIAL
EARTH
UL1015 AWG16
GREEN
UL1015 AWG14
WHITE
UL1015 AWG20
RED
L
N
W201
UL1015
AWG14
BLACK
F201
20A - 250V
UL1015
AWG14
BLACK
POWER SOURCE
230V
50Hz
-
+
8
9
10
3
2
1
3
2 1
R144
22K
(1%)
R143
47K
(1%)
-12V
C129
1000P
<B>
R159
4.7K
R145
22K
(1%)
I C104-3
uPC324
R146 47K
(1%)
R139 10K
(1%)
R137 10K (1%)
R140 10K
(1%)
-
+
7
5
6
6
5
7
+
-
R138 10K
(1%)
D109
RB751V
R135
10K (1%)
I C105-2
LM2903
I C105-1
LM2903
R161
1.5K(1%)
R136
10K (1%)
R134
10K
(1%)
R133
10K
(1%)
ZXH / 36P
R163
10K (1%)
R141
10K
(1%)
D108 RB751V
I C104-2
uPC324
I C104-1
uPC324
I C104-4
uPC324
-
-
+
+
14
13
12
2
3
1
AC FAN / I C80-6
C123
2200P
<B>
R149
4.7K
(1%)
C124
2200P
<B>
R152
4.7K
(1%)
D110
DAN217U
D111
DAN
217U
195K <RN-1/2W> x 4
R147
R151
R150
R148
C134
0.1
<F>
C133
2.2/
50V
+
C132
2.2/
50V
+
C131
0.1
<F>
R168 22K R169 22K
15V
-12V
C119
0.1
<F>
C120
0.1
<F>
5V
ACV / 7P
D113
DAN217U
3
1 2
C128
0.1
<F>
+
C125
0.1
<F>
C126
2.2/50V
R165
22K
+
C127
2.2/50V
5V
3
1
2
D112
DAN217U
CT / 3P
+
C109
2.2/
50V
DCV / 8P
R107
3.83K
(1%)
POW_GND
C107
0.1
<F>
D106
DAN217U
3
1 2
+
R110
6.8K
C108
2.2/50V
R111 10K
PFC-TRIP / 46P
PFCEN / 14P
PFCSW / 35P
R167
10K
(1%)
C106
0.1
<F>
I C102-3
BA10339
R113 4.7K
(1%)
-
-
-
+
+
10
11
13
R115
22K (1%)
I C102-2
BA10339
C135
0.01 <F>
C110
0.1 <F>
I C102-4
BA10339
C136
0.01
<F>
R114
15K
9
8
14
10
11
12
13
14
9
8
7
6
5
4
3
2
1
1
2
3
4
5
6
7
10
11
12
13
14
9
8
I C101
TC74HC00AF
5V
R120 10K
(1%)
R121 220K
(1%)
I C102-1
BA10339
5
4
2
+
-
1
5
7
3
2
6
4
GATI N
VCC
S I
D I
NC
SO
GND
DCV-F
R105
R106
195K <RN-1/2W> x 2
I C100 TA8316
15V
R109 22
<1/4W>
R108 47
<1/4W>
R102
47K
Q100
GT30JI21
C105
0.1
<F>
+
C104
4.7/
50V
L100
BL02Rn1
POW_GND
DCV
FH2
FH1
F4
BET
3.15A - 250V
DCV-F
C103 0.1 <HCP>
C100 750 / 385V
C102 750 / 385V
C101 750 / 385V
+ + +
R104
220K
<2W>
I PM-G
L300 47uH
<ELC0607>
R200 39
<1/2W>
10 <1/2W> x 3
R223
R222
R221
I C200
FSB20CH60
21
22
23
24
25
26
27
10
11
12
13
14
15
16
17
18
19
20
9
8
7
6
5
4
3
2
1
NU
NW
NV
U
W
V
P
VCC
COM
I N
I N
I N
VFO
CFOD
CSC
I N
VCC
VB
VS
I N
VCC
VB
VS
I N
VCC
VB
VS
R211
R212
R213
R214
R215
R216
R217
0.15
<1W>
x 7
C218 0.1 <HCP>
C209 0.1 <F>
C210 0.1 <F>
C211 0.1 <F>
C212 0.1 <F>
C221 0.1 <F>
C222 1.0 <B>
D203 ZP1027
C220 47 / 35V
+
5V
2 1
3
2
3
1
+
-
D301
DAN217U
C320
0.15
<EC
QB>
R327
22K
(1%)
C311
1000P
<B>
D302
RB751V
R331
47K (1%)
R328
1.0K (1%)
R329 47K (1%)
U V
W
R305R306
R304 R303
R302
R301
195K
<RN-1/2W> x 6
R308 195K
<RN-1/2W>
R307 195K
<RN-1/2W>
I C60
TA7805
I
O
G
1
2
3
+
C62
100/
16V
+
C60
220/
16V
15V
+
C63
100/
35V
R60
10K
+
C61
470/
25V
D60 D2FL20U
D61 D1FL20U
D62
D1FL20U
C64 0.1 <F>
-12V
T60
JPZ200
10
12
13
15
16
9 8
7
6
3
2
1
C67
100/
35V
+
D64 - D67
D1FL20U x 4
C66
0.1
<F>
C68
0.1
<F>
D63
D1FL20U
C65
220/
35V
+
POW_GND
R51 220K
<2W>
R52 1.0K
<RS-3W>
C51 20P
<B>
Q50
2SC4236
R53
100
<1W>
C52
0.047
<ECQB>
1
2
3
D51
RD5.6ES
<B2>
+
R54
330
<1/4W>
C53
100/
16V
R50 2.4
<1/2W>
D52
D1FL20U
D50
D1FL20U
D107
RB751V
R119
10K
(1%)
R164
22K
C111
4700P
<B>
R117
22K
(1%)
R118
10K (1%)
R116
15K (1%)
-
+
1
2
3
R126
100K
(1%)
I C103-1
uPC324
R127 10K (1%)
R128 10K (1%)
R129 100K (1%)
C113
2700P
<B>
3 3
1 1
2 2
R122
10K
R123
10K (1%)
C121
47P
<CH>
R166
10K (1%)
D115
DAN217U
D114
DAN217U
R333
10K
(1%)
C330
1000P
<B>
R337
100K
(1%)
R335 - R336
10K (1%) x 2
R338
4.7K
(1%)
R340
10K
(1%)
C339
0.01
<F>
I C302-1
LM2903
R334
10K (1%)
Q300
DTC114EUA
3
1
2
R339
10K (1%)
I PM-CR / 9P
POW_GND
C215
C216
C217
C206
C207
C208
2200P
<B>
x 6
R203 330K
C205 0.1 <F>
C204 47/35V
+
R202 330K
C203 0.1 <F>
C202 47/35V
+
R201 330K
C201 0.1 <F>
C200 47/35V
+
D202
U1JU44
D201
U1JU44
D200
U1JU44
FLASH
WRITING
RESET
( INTLLIGENT
POWER MODULE )
AOY9LFBC
AOY12LFBC
JM101
TEST
JM103
JM102
JM101
TEST
JM103
JM102
Model Changing
I C102_PASS CON
I C104_PASS CON
I C105_PASS CON
I C300_PASS CON
I C103_PASS CON
2005.01.31 6
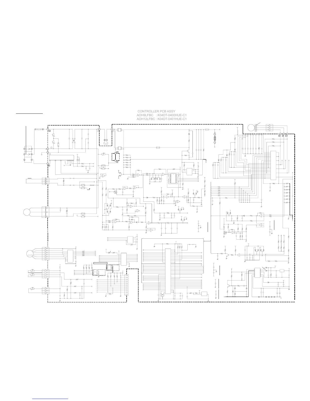
CONTROLLER PCB ASSY
AOH9LFBC : K04DT-0400HUE-C1
AOH12LFBC : K04DT-0401HUE-C1
CONTROLLER PCB ASSY
AOH9LFBC : K04DT-0400HUE-C1
AOH12LFBC : K04DT-0401HUE-C1
Models :
AOH9LFBC
AOH12LFBC
O U T D O O R P C B C I R C U I T D I A G R A M

Related product manuals