EasyManua.ls Logo

Fujitsu General ASH12LSBCW - Indoor PCB Circuit Diagram

Default Icon
16 pages
Print Icon
To Next Page IconTo Next Page
To Next Page IconTo Next Page
To Previous Page IconTo Previous Page
To Previous Page IconTo Previous Page
Loading...
5V
5V
12V
5V
R45
10K
<1/8W>
I C13-6
SW1
I C11
S80842
R42
100K
<1/8W>
JP1
5V
JM19
JP3
C27
0.01
<B>
+
C26
100/
16V
5V
R30 330 <1/8W>
R29 330 <1/8W>
R28 330 <1/8W>
R27 330 <1/8W>
R36
10K
<1/8W>
R37 47
<1/8W>
12V
12V
C25
1000P
<R>
CN6
53325-0510
I C13-2
I C13-5
I C13-4
I C13-3
5V
R56
10K
<1/8W>
5V
5V
I C13-1
1
16
VCC
CS
SK
D I
NC
DO
TEST
GND
1
2
3
7
6
5
4
8
32
33
X1
X2
40
41
42
43
29
30
13
11
48
49
50
51
35
1
2
3
4
5
6
7
8
12
47
28
31
24
25
20
10
18
17
26
27
9
21
34
52
19
36
46
45
44
14
38
15
16
23
22
39
37
P23
P24
VDD0
VDD1
AVREF
AVDD
GND0
AGND
GND1
P47
P25
P01
I NTP1
P41
P40
P75
BUZ
P20
P03
P21
P22
P12
AN I 2
P13
AN I 3
P70
P02
I NTP2
P10
AN I 0
P11
AN I 1
I C
RESET
P42
P35
P57
P56
P55
P54
P53
P52
P51
P50
P00
I NTP0
P46
P45
P44
P43
P34
P36
XT1
XT2
P74
P73
P72
P71
5V
R55 1.0K <1/8W>
R44
10K
<1/8W>
C36
0.1
<F>
I C12
S-93C46ADFJ
CN6-1 RED
CN6-2 ORANGE
CN6-3 YELLOW
CN6-4 PINK
CN6-5 BLUE
M
LOUVER
+
VCC
OUT
GND
11
6
9
2
15
4 13
8
12
143
5
X1
8.38MHz
CN3
S07B-ZR-3.4
K 1
C35
0.1
<F>
R46 1.0K
<1/8W>
R41
49.9K
<1/8W>
(1%)
C31
0.1
<F>
R40 1.0K
<1/8W>
NC
GND
VDD
OUT
1
2 3
4
R39
10K
<1/8W>
(1%)
R38 1.0K
<1/8W>
C28
0.1
<F>
5V
5V
R53,R54
10K <1/8W>
C19
0.1
<F>
+
C18
10/
25V
C17
330/
25V
+
C16
0.1
<F>
5V
R13
10K
<1/8W>
R14 1.0K
<1/8W>
C22
C20
0.01
<B>
C21
0.01
<B>
R15 1.0K <1/8W>
Q1
DTC124EUA
I C13-7
10
7
4
3
2
1
1
2
3
4
4
3
2
1
3
2
1
O
I
G
I
O
G
+
+
C
A
REF
R7
1.0K
<1/8W>
R9
34K
<1/8W>
(1%)
R10
8.25K
<1/8W>
(1%)
I C6
7805
12V
D5
D1F60
C15
330/
25V
C14
0.01
<B>
R8 47K
<1/8W>
5V
CN201
JB20-11HG
CN201-11
CN201-2
CN201-3
CN201-4
CN201-5
CN201-6
CN201-7
CN201-8
CN201-9
CN201-10
CN201-1
RED
WHITE
WHITE
WHITE
WHITE
WHITE
WHITE
5V
5V
I C201
GP 1UM261RK
R201
47
<1/4W>
C202
47/10V
D208 SLR-325 <ORG>
D205 SLR-325 <GRN>
D204 SLR-325 <GRN>
D201 SLR-325 <RED>
C201
0.1 <F>
INDICATOR PCB
K02CB-0300HSD-D0
CN5 2P-SCN
CN4 2P-SAN
ROOM TEMPERATURE THERMISTOR
PIPE TEMPERATURE THERMISTOR
CN4-1 BLACK
CN4-2 BLACK
CN5-2 GRAY
CN5-1 GRAY
uPD780024ASGB-X52-8ET-A
I C 1
C23
1000P
<R>
Q4
DTC124EUA
5V
R21
10K
<1/8W>
R20 1.0K
<1/8W>
R24 330
<1/8W>
5V
15V
I C9
PS2561-1
<L>
I C10
PS2561-1
<L>
15V
15V
R25 1.0K
<1/4W>
(1%)
R26 820
<1/4W>
(1%)
+
R22
4.7K
<1/8W>
A
A
15V
A
VM
C24
100/
16V
R23 6.8K <1/4W>
CN2
53426-9920
CUSTOM CODE SWITCHING
AUTO RESTART
JM1
JM2
5V
R49 - R52, R47,R48
10K <1/8W> x 6
12V
R43 10K
<1/8W>
BZ
PKM13EPY-4000-TF01
B Z
CN7
BS5P-SHF-1AA
TEST
CN7-1
CN7-5
CN7-4
CN7-3
CN7-2
TIMER SHORT
CLOCK
DATA-OUT
DATA-I N
Q2
DTC124EUA
5V
1
4
5
2
3
10
18
14
W3
E
GREEN
UL1015
AWG22
GREEN
L1
1.3A
9.0mH
R2 2.2
<5W>
R1 2.2
<5W>
R12
1.0K
<1/2W>
A
I C7
H I 2002 ( or GK30431 )
C3
0.01
<F>
C2
0.01
<F>
C1 0.1 <F>
+
C4
100/
420V
R60 330K
<1/2W>
VA1
470V
W2
W1
K1
D I 12D1
D1
GS I B460L
F2
2.5A - 250V
F1
3.15A
- 250V
VM
C5
0.01
D2 1NH42
R5
2M
<1/4W>
R3 100K
<2W>
15V
I C2
TNY266P
C6
0.1
<F>
I C4
78M15
JP7
C10
0.1
<F>
+
C7
100/35V
+
R4 18K
<1/8W>
C11 0.01 <F>
D3
D1FL20U
20V
13.5V
C12
330/
25V
D4
D2FL20U
6
10
4
2
1
7
5
4
1
5
8
7
32
S
S
SSS
D
BP
EN / UV
I C3
PS2561-1
<L>
C9
330/
25V
I C5
TL431 I LP
CN1
T1
ETS19AB1P8AG
GRAY
GRAY
BLACK
BROWN
WHITE
RED
GREEN / YELLOW
E
TERMINAL BOARD
BLUE
N
L
3
POWER SOURCE
230V
50Hz
FAN MOTOR
F M
RED
BLACK
WHITE
YELLOW
BLUE
CN2-6
CN2-1
CN2-2
CN2-3
CN2-4
THERMAL FUSE
102
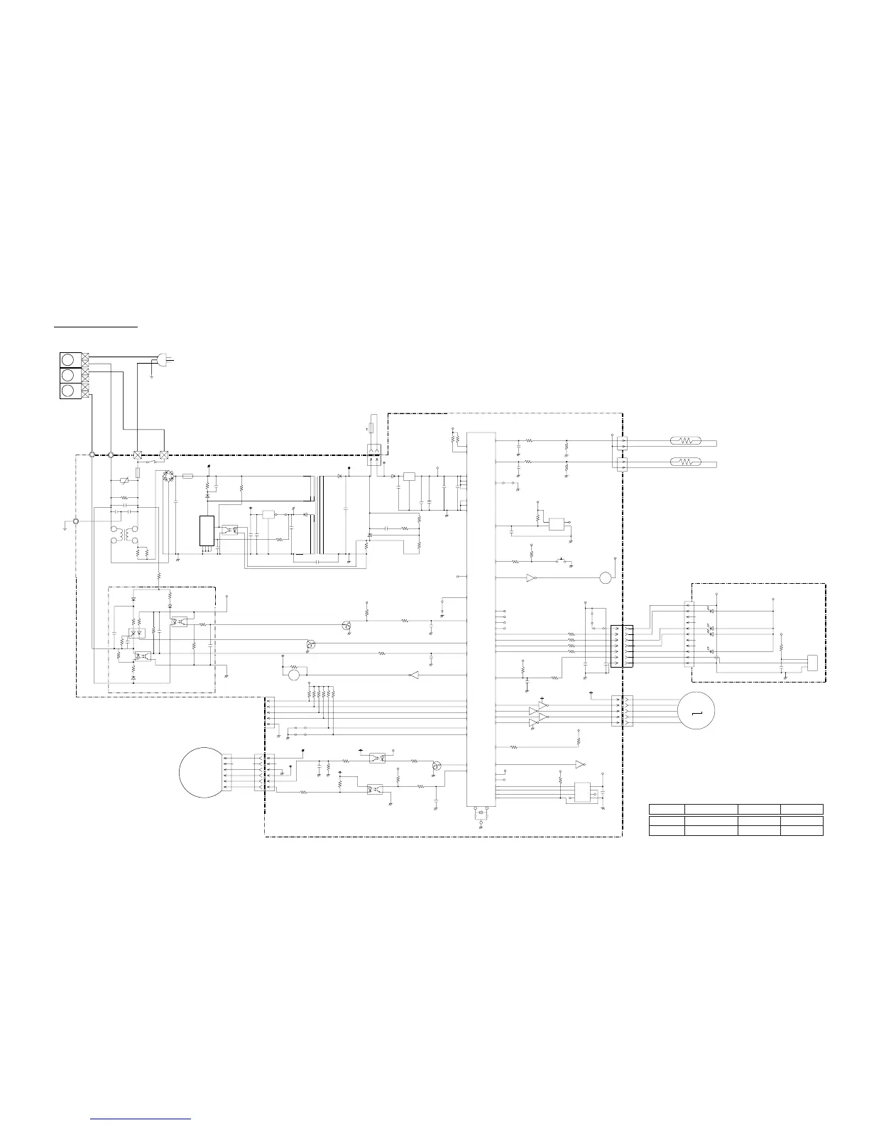
CONTROLLER PCB ASSY
ASH9LSBCW : K02DR-0410HSE-C1
ASH12LSBCW : K02DR-0411HSE-C1
2005.01.31 5
Models :
INDOOR PCB CIRCUIT DIAGRAM
ASH9LSBCW
ASH12LSBCW
Jumper wire configurations
Switch Function ON/Linked OFF/Open
JM1 Custom code A B
JM2 Auto restart enable disable

Related product manuals