EasyManua.ls Logo

Fujitsu AOHA24LAT3 - Cn15

Fujitsu AOHA24LAT3
24 pages
Print Icon
To Next Page IconTo Next Page
To Next Page IconTo Next Page
To Previous Page IconTo Previous Page
To Previous Page IconTo Previous Page
Loading...
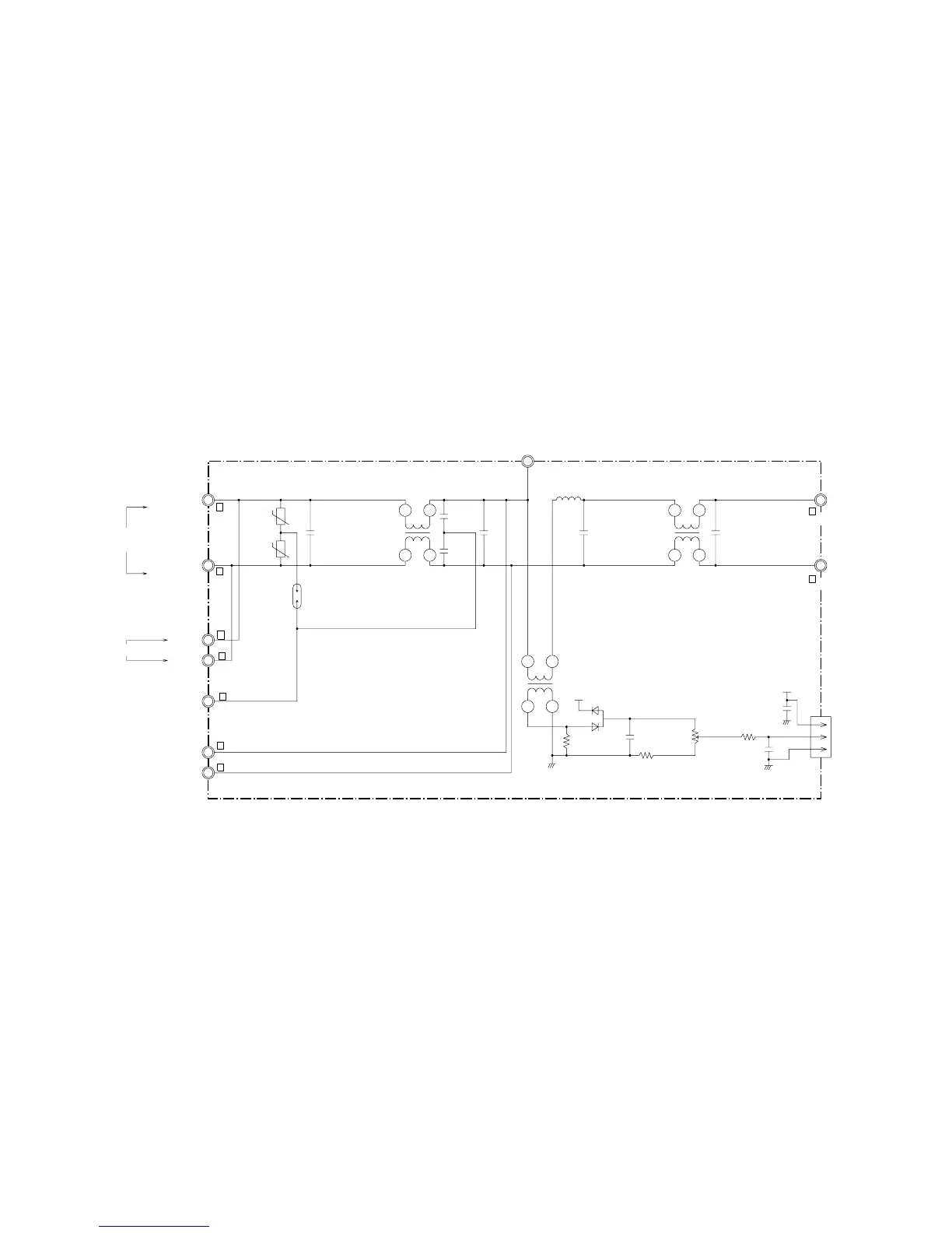
5V
TM101
TM102
C111
2.2
<LE>
L4
RCV2515-010PF05
C107
2.2
<LE>
TM100
L2
N200500K1D7C-01
CT1
CT-1B
5V
D60
DAN217U
C64
0.1
<F>
R68 22K
<1/10W>
C65
0.1
<F>
VR1
B2K
+
R61 3.74K
<1/10W>
(1%)
C60
220/16V
<PJ>
R60 680K
<1/10W>
(1%)
SA100
RA-302M
C106
2.2
<LE>
C104
0.033
<YE>
C105
0.033
<YE>
C101
1.0
<LE>
VA101
470V
<TNR>
VA102
470V
<TNR>
B
B
B
B
B
B
B
BLACK
WHITE
TO INDOOR UNIT
POWER SOURCE
230V
50Hz
EARTH
AC VOLT OUT
W5
W6
BLACK
WHITE
W7
GREEN
W3
W8
BLACK
WHITE
W9
W4
L1
RCV2515-010PF05
CN1
B3B-XASK-1-A
WHITE
CT OUT
1
2
3
POWER SUPPLY PCB ASSEMBLY
K04BA-0505HUE-P0
OUTDOOR UNIT
2008.04.21
B
B
12

Related product manuals