EasyManua.ls Logo

Fujitsu AOY45FMAXT - Dimensions

Fujitsu AOY45FMAXT
25 pages
Print Icon
To Next Page IconTo Next Page
To Next Page IconTo Next Page
To Previous Page IconTo Previous Page
To Previous Page IconTo Previous Page
Loading...
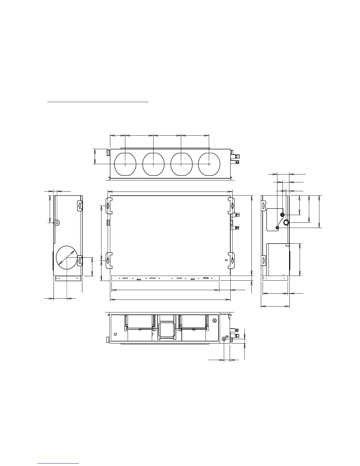
DIMENSIONS
(Unit : mm)
Models : ARG45FUAN, ARG45UUAN
ARY45FUAN, ARY45UUAN
INDOOR UNIT
2005.12.05 3
1,135
1,177
1,015
139
264 264 264
107
32
114
66
32
54
240
281
168
283
477
700
173
161
40
39
240
132
240
16
121
270

Related product manuals