EasyManua.ls Logo

Fujitsu ASU12RLF1

Fujitsu ASU12RLF1
61 pages
To Next Page IconTo Next Page
To Next Page IconTo Next Page
To Previous Page IconTo Previous Page
To Previous Page IconTo Previous Page
Loading...
2015.02.17 10
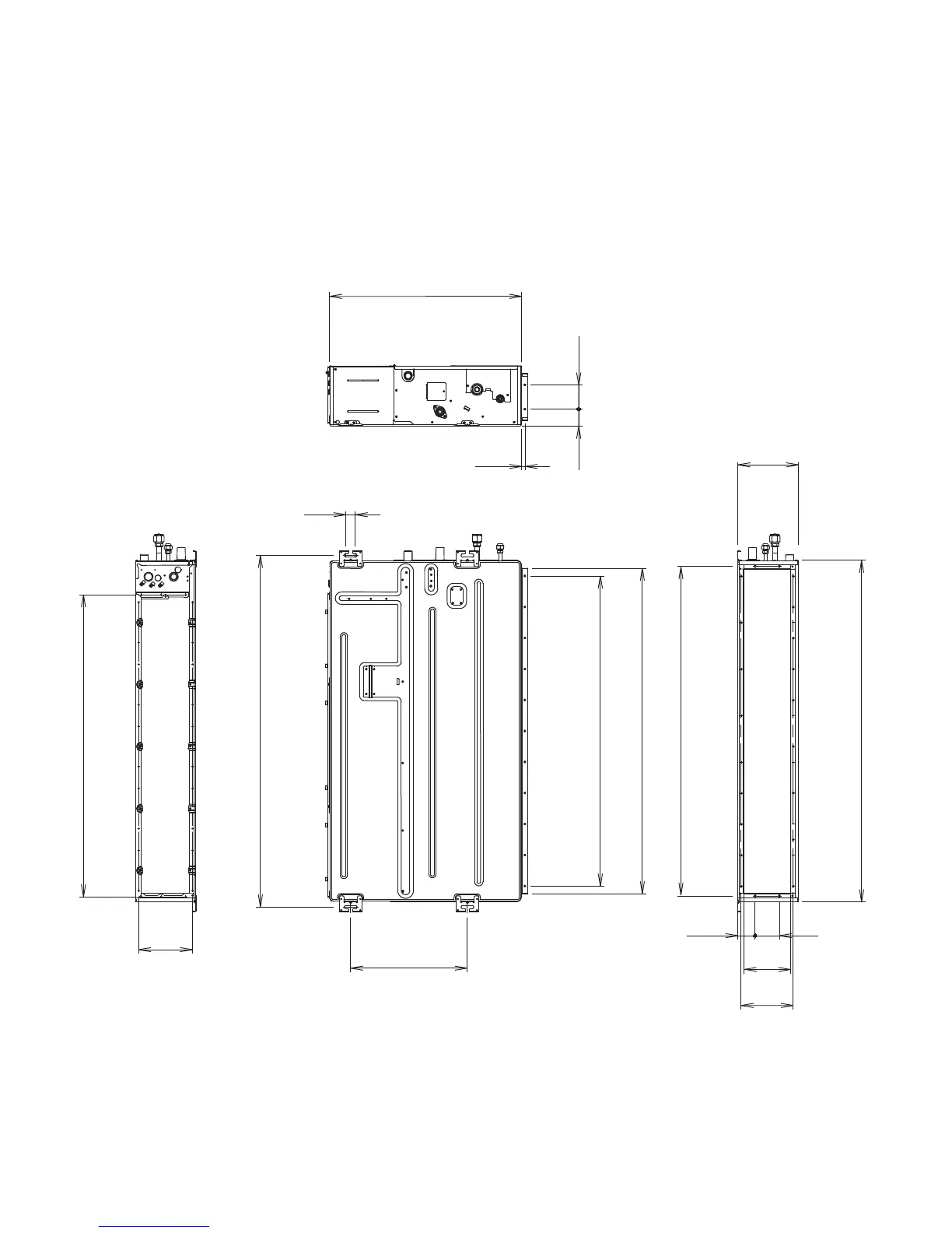
INDOOR UNIT
SLIM DUCT
ARU24RLF
(Serial number : R)
43-5/16 inch 1100 mm
2-5/32 inch
55 mm
3-1/16 inch
78 mm
5-15/16 inch 151 mm
6-5/8 inch
168 mm
14-27/32 inch
377 mm
6-27/32 inch
174 mm
7-25/32 inch
198 mm
3-1/16 inch
78 mm
2-5/32 inch
55 mm
13/32 inch
10 mm
24-13/32 inch 620 mm
1-3/16 inch
30 mm
41-11/32 inch 1050 mm
44-21/32 inch 1134 mm
38-11/32 inch 974 mm
100 mm 1000 mm
3-15/16 x 10 = 39-3/8 inch
41-7/8 inch 1064 mm

Other manuals for Fujitsu ASU12RLF1

Related product manuals