EasyManua.ls Logo

FUNAI DPVR-4600 - Page 25

FUNAI DPVR-4600
102 pages
Print Icon
To Next Page IconTo Next Page
To Next Page IconTo Next Page
To Previous Page IconTo Previous Page
To Previous Page IconTo Previous Page
Loading...
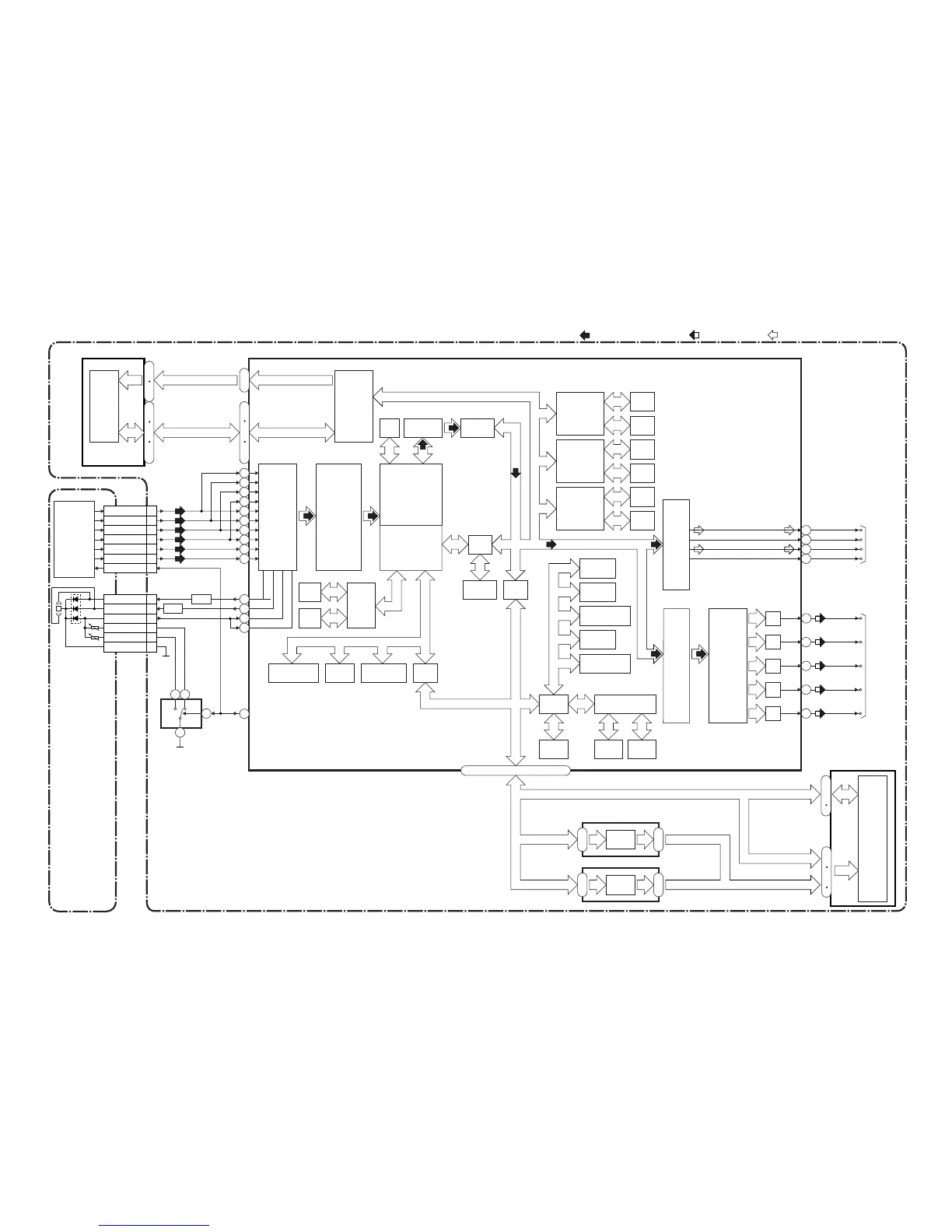
1-9-13 1-9-14 H9510BLD
Digital Signal Process Block Diagram
C 6
D 7
A 8
B 5
F 10
E 2
DVD-LD 14
CD-LD 12
PD-MONI 13
CN201
CN201
IC201
(SW)
IC105 (LATCH)
IC102 (SDRAM) IC101 (MICRO CONTROLLER)
CD/DVD
PICK-UP
UNIT
DETECTOR
CD/DVD 9
Q251,Q252
CD DVD
AMP
Q253,Q254
AMP
4
1 3
6
GND(DVD-PD)
15
GND(CD-PD)
16
GND(LD)
11
RF
SIGNAL
PROCESS
CIRCUIT
DVD/CD
FORMATTER
AUDIO
I/F
VIDEO
I/F
NTSC/PAL
ENCODER
DMA
BCU
INST.
ROM
32BIT
CPU
DATA
ROM
INTERRUPT
CONTROLLER
WATCH DOG
TIMER
CPU
I/F
TIMER
DECODER
I/F
CPU
I/F
READ
MEMORY
DATA
ROM
DSP
DECODER
PIXEL
OPERATION
I/O
PROCESSOR
INST.
ROM
DATA
ROM
INST.
ROM
DATA
ROM
INST.
ROM
SERIAL
D/A
GENERAL
I/O
INTERRUPT
CONTROLLER
TIMER
WATCH DOG
TIMER
32BIT CPU
STREAM
I/F
EXTERNAL
MEMORY
I/F
SDRAM
ECC
UMAC
124
125
122
123
128
129
126
127
131
130
135
133
132
134
78
DEBUG
BCU
INST
CACHE
D TYPE
LATCH
DATA
CACHE
D/A
D/A
D/A
TO DVD
VIDEO
/AUDIO
BLOCK
DIAGRAM
163
164
Y
C
R
G
VIDEO-Y
VIDEO-C
VIDEO-R
VIDEO-G
TO DVD
VIDEO
/AUDIO
BLOCK
DIAGRAM
181
SPDIF
175
PCM-BCK
176
PCM-DATA0
174
PCM-LRCLK
161
158
EXT ADT (0-15), EXT ADR (16-19)
EXT ADT (0-15), EXT ADR (16-19)
EXT ADT (0-7)
EXT ADT (8-15)
EXT ADR (0-7)
EXT ADR (0-15)
EXT ADR (8-15)
SDRAM DATA(0-31)SDRAM DATA(0-31)
SDRAM ADDRESS(0-10)SDRAM ADDRESS(0-10)
2
9
~
12
19
~
210
235
~
IC104 (LATCH)
D TYPE
LATCH
2
9
~
12
19
~
2
13
184
205
247
256
~~~
2
13
31
56
74
85
~~~
IC103 (FLASH ROM)
FLASH
ROM
29
36
38
45
~~
DVD MAIN CBA UNIT
DATA(VIDEO/AUDIO) SIGNAL DVD VIDEO SIGNAL
DATA(AUDIO) SIGNAL
24
27
60
66
~~
EXT ADT (0-15)
EXT ADR (16-19)
~
1
9
16
25
48
~
D/A
B
VIDEO-B
160

Related product manuals