EasyManua.ls Logo

FUNAI DPVR-6630 - Block Diagrams

FUNAI DPVR-6630
74 pages
Print Icon
To Next Page IconTo Next Page
To Next Page IconTo Next Page
To Previous Page IconTo Previous Page
To Previous Page IconTo Previous Page
Loading...
1-11-1
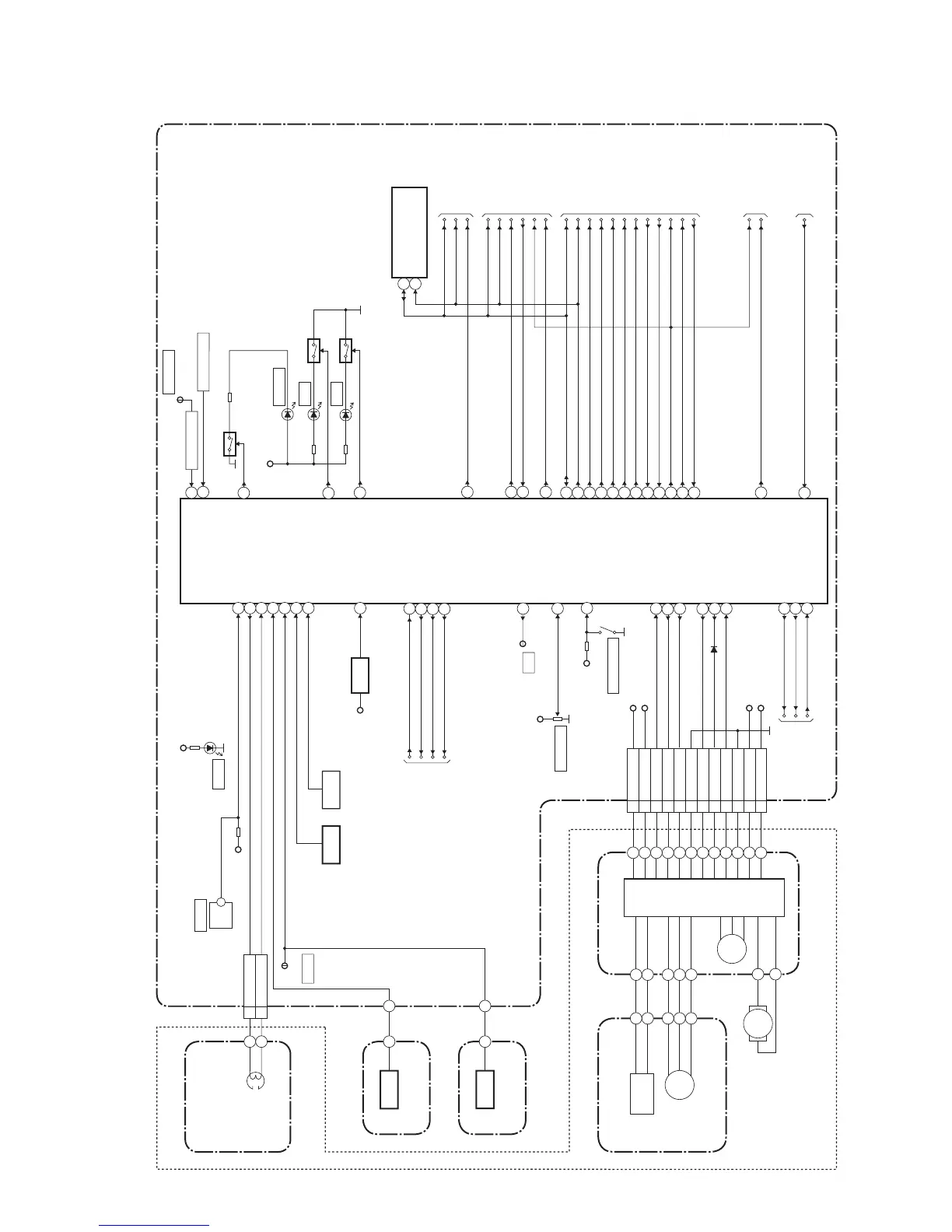
BLOCK DIAGRAMS <VCR SECTION>
Servo / System Control Block Diagram
H9900BLS
M
LOADING
MOTOR
CAPSTAN MOTOR
CONTROL
HEAD
5 CTL(+)
6 CTL(-)
CN504
ACE HEAD ASSEMBLY
MAIN CBA
KEY- 1
ST-S
T-REEL
CTL(+)
RESET
REC-SAF-SW
PG-DELAY
CTL(-)
D-V-SYNC
D-REC-H
RF-SW
H-A-SW
C-ROTA
END-S
94
95
10
4
80
34
2
31
7
(DECK ASSEMBLY)
T-REEL
Q515
RESET
Q506
S-REEL79
SW-POINT
AL+5V
VR501
TIMER+5V
S-REEL
PS502
TP502
KEY- 2
8
IIC-BUS SDA
IIC-BUS SDA
IIC-BUS SCL
AUDIO-MUTE-H
IIC-BUS SDA
IIC-BUS SCL
Hi-Fi-H-SW
A-MODE
OUTPUT-SELECT
AUDIO-MUTE-H
Hi-Fi-H-SW
A-MODE
H-A-COMP
V-ENV
P-ON-H
C-POW-SW
P-ON-H
C-POW-SW
P-DOWN-H
67
66
32 P-DOWN-H
OUTPUT-SELECT
SW506
TO VIDEO
BLOCK DIAGRAM
TO Hi-Fi AUDIO
BLOCK DIAGRAM
TO AUDIO
BLOCK DIAGRAM
SDA
SCL
IC502 (MEMORY)
86
19
83
IIC-BUS SCL
D-V-SYNC
D-REC-H
RF-SW
H-A-SW
INPUT-SELECT
C-ROTA
IIC-BUS SDA
H-A-COMP
V-ENV
DVD-POWER
C-SYNC
INPUT-SELECT
DVD-POWER
C-SYNC
OUTPUT-SELECT
IIC-BUS SCL
LD-SW9
AL+5V
AL+5V
SW507
LD-SW
AL+5V
D555
S-LED
TO POWER
SUPPLY BLOCK
DIAGRAM
TP501 SENS-INH
IC501
(SERVO/SYSTEM CONTROL)
LINE-MUTE
LINE-MUTE
28
5
6
SENSOR CBA
SENSOR CBA
END-S
ST-S
Q504
Q503
REC-SAFETY
END-S
CTL
97
TP503
CTL
TO DVD SYSTEM
CONTROL /SERVO
BLOCK DIAGRAM
<DVD SECTION>
TO DVD VIDEO/
AUDIO BLOCK
DIAGRAM
<DVD SECTION>
CN502
C-FG
C-CONT
D-PFG
C-F/R
90
76
87
78
LM-
FWD/REV
81
D-CONT77
AL+20.5V/+12V
AL+12V(2)
P-ON+15V
P-ON+5V
1
AL+20.5V/+12V
2 P-ON+5V
3 C-FG
4
C-F/R
5
C-CONT
6
GND
7
LM-FWD/REV
8
D-CONT
9
D-PFG
10
GND
11
AL+12V(2)
12
P-ON+15V
58
41
82
6
17
16
13
15
18
33
71
72
21
DVD-8PIN-IN
DVD-8PIN-IN
42
KEY SWITCH
KEY SWITCH
CYLINDER ASSEMBLY
DRUM
MOTOR
PG
SENSOR
M
OUTPUT-SELECT
M
CAPSTAN
MOTOR
MOTOR
DRIVE
CIRCUIT
REMOCON-IN14
TO DVD SYSTEM
CONTROL /SERVO
BLOCK DIAGRAM
<DVD SECTION>
DRV-DATA
DRV-STB
DRV-CLK
REMOCON-IN
DRV-DATA
DRV-STB
DRV-CLK
68
69
70
Q508
Q509
DVD-LED
29
VCR-LED
30
D503
VCR
D502
DVD
AL+5V
POWER-LED
Q507
23
D505
POWER

Related product manuals