EasyManua.ls Logo

Gabarron CMX15 - Hot Water System Requirements

Gabarron CMX15
24 pages
Print Icon
To Next Page IconTo Next Page
To Next Page IconTo Next Page
To Previous Page IconTo Previous Page
To Previous Page IconTo Previous Page
Loading...
4!
!
HOT WATER SYSTEM
Competency to install unvented hot water system is
required.
Any existing system and controls (e.g. shower) must be
suitable to operate at mains water pressure.
The incoming water main pressure and flow must be
sufficient for requirements.
If incoming mains pressure is excessive (above 5 bar) a
pressure reducing valve is required.
The boiler safety valves require piping to a safe discharge
point.
In hard water areas it is advisable to take normal precautions
against lime scale formation.
4.1 GENERAL REQUIREMENTS
The installation should be carried out by a person certified
as competent for the installation of unvented hot water
systems in accordance with current building regulations.
Installation should also be in accordance with the relevant
British Standards and Codes of Practice including the
following:
BS 5449 Forced circulation hot water systems
BS 5546 Installation of hot water supplies for domestic
purposes
BS 6700 Design, installation, testing and maintenance of
services supplying water
BS7074 Application, selection and installation of expansion
vessels and ancillary equipment for sealed water
systems.
BS 7593 Code of Practice for treatment of water in heating
systems
BS 7671 Requirements for electrical installations, IEE Wiring
Regulations
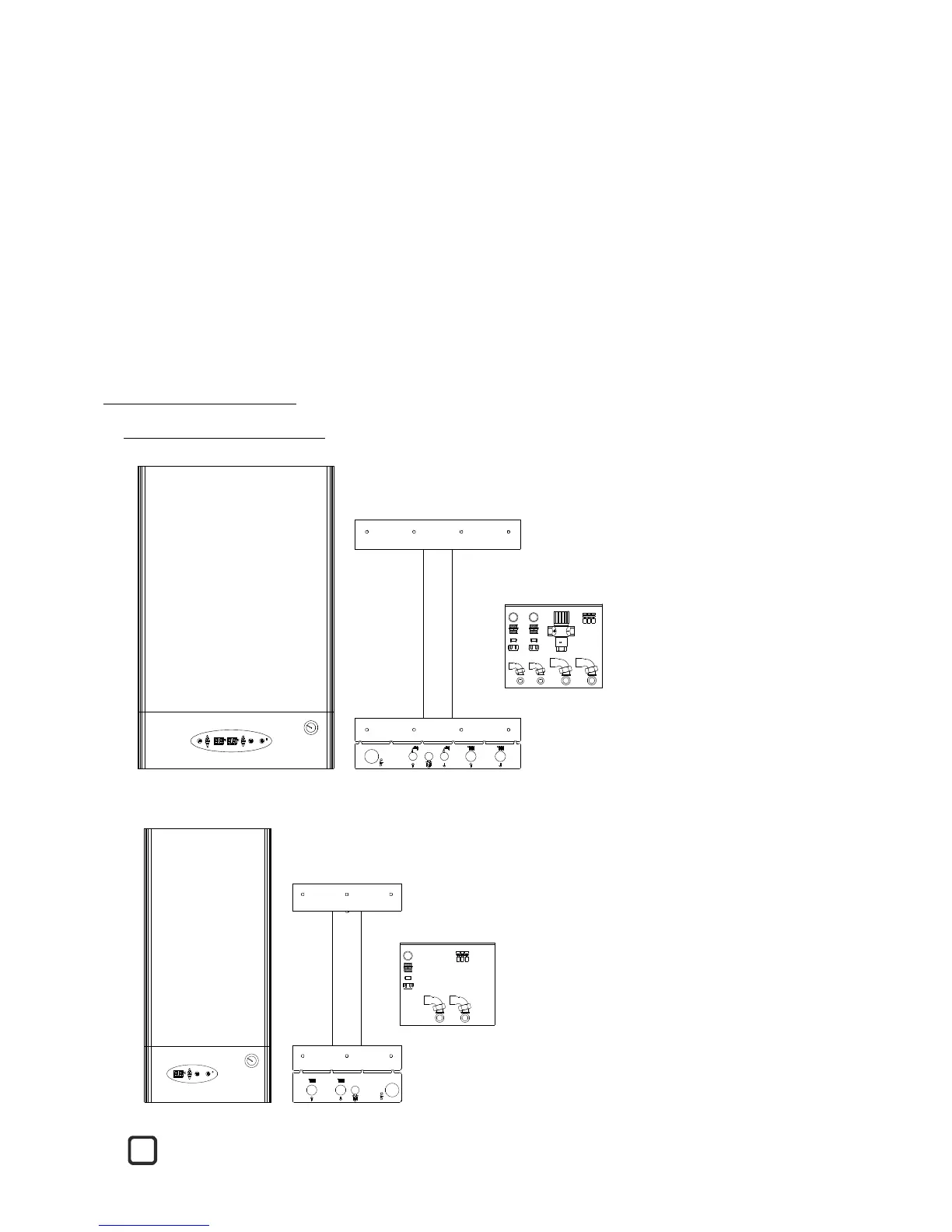
4.2 UNPACKING & CONTENTS
- Wall bracket with template.
- Boiler.
- Documentation.
- Bag with parts and fittings.
!
!
!
!
!
!
!
!
!
- Wall bracket with template.
- Boiler.
- Documentation.
- Bag with parts and fittings.
Dispose of the cardboard packaging at a cardboard recycling site. Observe national regulations.
i

Related product manuals