EasyManua.ls Logo

GE 845 - Page 56

GE 845
552 pages
Print Icon
To Next Page IconTo Next Page
To Next Page IconTo Next Page
To Previous Page IconTo Previous Page
To Previous Page IconTo Previous Page
Loading...
2–12 845 TRANSFORMER PROTECTION SYSTEM – INSTRUCTION MANUAL
ELECTRICAL INSTALLATION CHAPTER 2: INSTALLATION
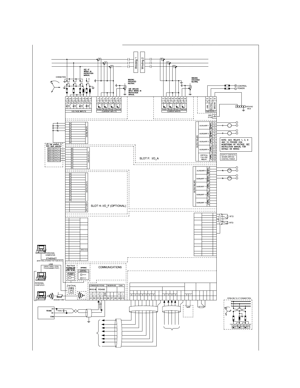
Figure 2-14: Typical Wiring Diagram for a 2-Winding Transformer with VTs on HV Side
WYE VT
845 Transformer Protection System
PHASE CTs
W1 BREAKER
Phase C
Phase B
Phase A
TRANSFORMER
W2 BREAKER
SLOT J
Typical auxiliary
contacts connection
SLOT K
+24 V
F21
COMMON
DIGITAL INPUT 7
DIGITAL INPUT 6
DIGITAL INPUT 5
DIGITAL INPUT 4
DIGITAL INPUT 3
DIGITAL INPUT 2
DIGITAL INPUT 1
F20
F19
F18
F17
F16
F15
F14
F13
SLOT D
SLOT E
G1 G2 G3 G4 G5 G6 G7 G8 G9 G10 G11 G12 G13 G14 G15 G16 G17 G18 G19 G20 G21 G22 G23 G24
DCmA I/O
ANALOG OUTPUT
ANALOG INPUT
RTD
1
12
34567
11
2
34
SHIELD
SHIELD
SHIELD
RETURN
HOT
COMP
RESER VED
RESER
VED
RETURN
RETURN
AMBIENT
TEMPERATURE
H9
DIGITAL INPUT 7
DIGITAL INPUT 6
DIGITAL INPUT 5
DIGITAL INPUT 4
DIGITAL INPUT 3
DIGITAL INPUT 2
DIGITAL INPUT 1
H8
H7
H6
H5
H4
H3
H2
H1
+24 V
H12
COMMON
DIGITAL INPUT 10
H11
H10
DIGITAL INPUT 9
DIGITAL INPUT 8
SLOT G: I/O_L (OPTIONAL)
CH1
CH4
CH3
CH2
FIBER INPUT 1
FIBER INPUT 2
FIBER INPUT 3
FIBER INPUT 4
C9
C8
C7
C6
C5
C4
C3
C2
C1
C12
C11
C10
C15
C14
C13
C18
C17
C16
SHIELD
RETURN
COMP
HOT
COMP
HOT
RETURN
COMP
HOT
HOT
RESERVED
SHIELD
COMP
RETURN
COMP
HOT
COMP
HOT
RTD 7
RTD 7/8
RTD 8
RTD 9
RTD 10
RTD 11
RTD 12
RTD 9/10
B9
B8
B7
B6
B5
B4
B3
B2
B1
B12
B11
B10
B15
B14
B13
B18
B17
B16
SHIELD
RETURN
COMP
HOT
COMP
HOT
RETURN
COMP
HOT
HOT
RESERVED
SHIELD
COMP
RETURN
COMP
HOT
COMP
HOT
RTD 1
RTD 1/2
RTD 2
RTD 3
RTD 4
RTD 5
RTD 6
RTD 3/4
RTD 5/6
SLOT B OR C: I/O_R OR I/O_S* (OPTIONAL)
* SUPPORTS 10 OHM COPPER RTD AS WELL
G/H2
G/H1
G/H24
G/H23
G/H22
G/H12
G/H11
G/H10
G/H9
G/H8
G/H7
G/H6
G/H5
G/H4
G/H3
+24 V
G/H21
COMMON
DIGITAL INPUT 7
DIGITAL INPUT 6
DIGITAL INPUT 5
DIGITAL INPUT 4
DIGITAL INPUT 3
DIGITAL INPUT 2
DIGITAL INPUT 1
G/H20
G/H19
G/H18
G/H17
G/H16
G/H15
G/H14
G/H13
SLOT G OR H: I/O_A* (OPTIONAL)
ANY MEASURED
OR METERED
ANALOG PARAMETER
OUTPUTS
* SLOT H I/O_A IS AVAILABLE WHEN SLOT G IS WITH I/O_L
ANY MEASURED OR
METERED ANALOG PARAMETER
INPUTS
SLOT A
TRIP W1 BKR
TRIP
COIL
52a
52a
+
-
-
+
CIRCUIT
TRIP W2 BKR
CIRCUIT
TRIP
COIL
52b
52a
52b
52a
W1 BREAKER
W2 BREAKER
BCD DECODER
CLOSE W1 BKR
COIL
52b
52b
+
-
-
+
CIRCUIT
CLOSE W2 BKR
CIRCUIT
COIL
OHMS
INPUT
CABLE SHIELD TO BE GROUNDED
AT PLC/COMPUTER END ONLY
A
C
B
LTC TAP
POSITION
IF OHMS
INPUT
SHIELD
PHASE CTs
892841A2

Table of Contents

Related product manuals