EasyManua.ls Logo

GE CT ProSpeed Series

GE CT ProSpeed Series
184 pages
To Next Page IconTo Next Page
To Next Page IconTo Next Page
To Previous Page IconTo Previous Page
To Previous Page IconTo Previous Page
Loading...
*( 0(',&$/ 6<67(06 &7 35263((' 6(5,(6 ,167$//$7,21

5(9
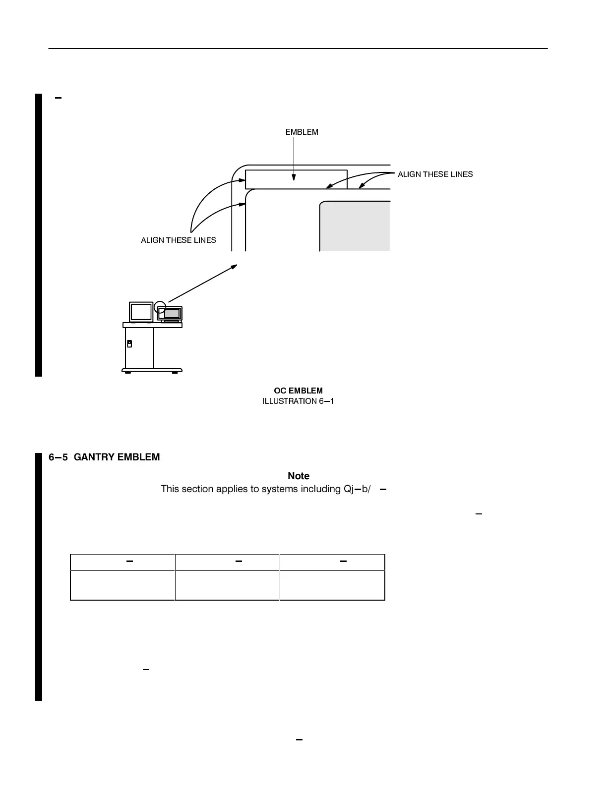
2& (0%/(0 FRQWLQXHG
$/,*1 7+(6( /,1(6
$/,*1 7+(6( /,1(6
(0%/(0
2& (0%/(0
,//8675$7,21
*$175< (0%/(0
1RWH
7KLV VHFWLRQ DSSOLHV WR V\VWHPV LQFOXGLQJ 4M E=M D 7\SH 2&
$WWDFK WKH *DQWU\ HPEOHP ZKLFK FRPHV ZLWK WKH V\VWHP WR WKH ORFDWLRQ VKRZQ LQ ,OOXVWUDWLRQ  )RU V\VWHPV
ZKLFK SURYLGH WKUHH GLIIHUHQW HPEOHPV k3UR6SHHGl k3UR6SHHG 6 )DVWl DQG k3UR6SHHG 6; 3RZHUlFKRRVH
WKH DSSURSULDWH RQH DFFRUGLQJ WR WKH IROORZLQJ WDEOH
*(06 $0 *(06 ( *(06 $
3UR6SHHG 3UR6SHHG 6 )DVW RU
3UR6SHHG 6; 3RZHU
3UR6SHHG
7R FRUUHFWO\ DWWDFK WKH HPEOHP
FOHDQ WKH VXUIDFH RQ WKH *DQWU\
UHPRYH WKH EDFNLQJ SDSHU
FDUHIXOO\ SRVLWLRQ WKH ODEHO DOLJQ WKH OHIW DQG ERWWRP VLGHOLQHV RI WKH ODEHO WR WKH SRVLWLRQLQJ WDSH
VHH ,OOXVWUDWLRQ 
UXE DGHTXDWHO\ RQ WKH ODEHO VXUIDFH VR WKDW WKH OHWWHUV SURSHUO\ DGKHUH WR WKH *DQWU\ VXUIDFH
DQG WKHQ FDUHIXOO\ UHPRYH WKH IURQW SDSHU DQG SRVLWLRQLQJ WDSH

Related product manuals