EasyManua.ls Logo

GE EV - Safety Features; Dimensions; Wall and Pole Mounted Units Dimensions; Single and Double Pedestal Units Dimensions

GE EV
8 pages
Print Icon
To Next Page IconTo Next Page
To Next Page IconTo Next Page
To Previous Page IconTo Previous Page
To Previous Page IconTo Previous Page
Loading...
Safety Features
• Ground Fault Protection
— 4 automatic retries before station lockout
— CCID 20- charging circuit interrupting device 20mA per UL2231
• Automatic self tests of CCID
• Vehicle Ground monitoring per UL 2231
• Contactor monitoring designed to alert the customer when the contactor fails to open or close
• Secondary overload protection to prevent breaker tripping on vehicle faults
• Automatic energizing and de-energizing of charging circuit per NEC 625 and SAE J1772
• Support for personal lock on EVSE connector; enabling driver to lock the connector when charging their EV
• Secured key entry on service door of EVSE
• Control user authorization with RFID option
• Handle holder securely locks EVSE connector into place when not being used
• Visible Vacuum Fluorescent Display and light indicator to communicate fault alerts
• Instruction displayed on VFD to return plug to the EVSE socket when not in use to prevent damage to the plug
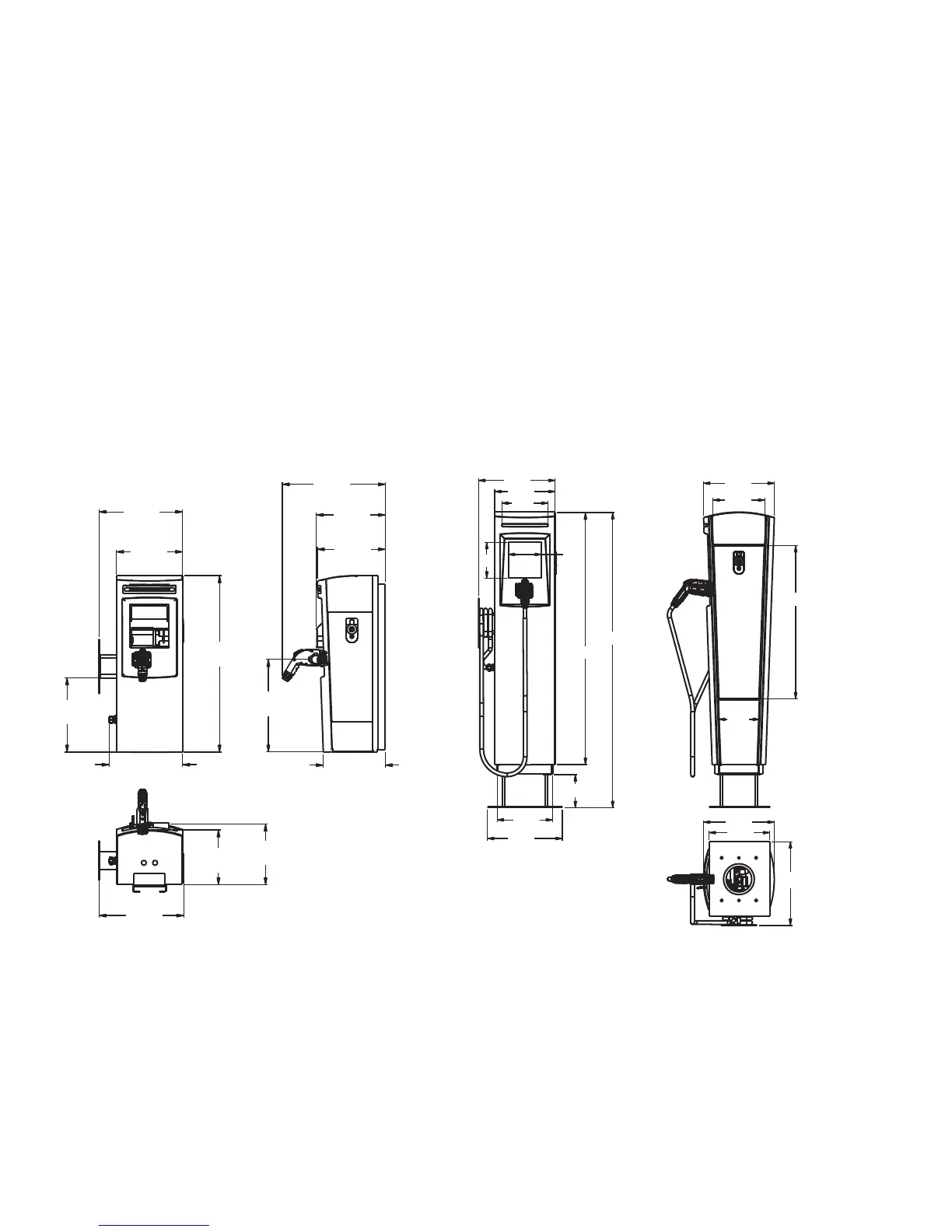
Dimensions
Wall and Pole Mounted Units Single and Double Pedestal Units
14.9
14.6
10.8
11.8
13.8
13.8
11.8
29.8
16.3
8.0
10.1
9.0
7.0
6.5
6.4
57.5
49.0
14.91
(378,7)
11.81
(300,0)
13.27
(337,0)
13.11
(333,0)
15.11
(383,7)
9.76
(248,0)
10.83
(275,1)
11.08
(281,5)
16.52
(419,6)
18.37
(466,7)
12.31
(312,8)
12.15
(308,6)
31.53
(800,7)

Related product manuals