EasyManua.ls Logo

GE GBE10ESJSB - Funciones del Refrigerador

GE GBE10ESJSB
52 pages
Print Icon
To Next Page IconTo Next Page
To Next Page IconTo Next Page
To Previous Page IconTo Previous Page
To Previous Page IconTo Previous Page
Loading...
41
Instrucciones de instalación
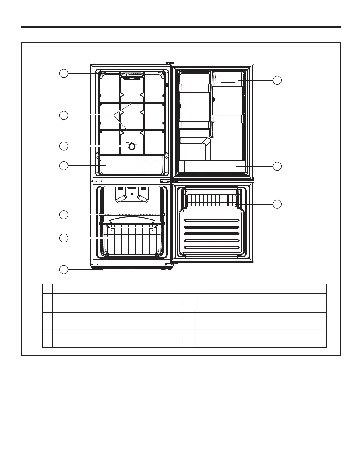
FUNCIONES DEL REFRIGERADOR
1
2
3
4
5
6
7
10
9
8
1
Control de temperatura del refrigerador
6 Freezer – Canasta de Almacenamiento
2 Estantes del refrigerador 7 Pies ajustables
3 Control de temperatura del freezer 8 Cestos de la Puerta
4 Cajón de Verduras con Tapa de Vidrio y
Control de la Humedad
9 Cesto de la Puerta para Almacenamiento de
Botellas de un Galón/ 2 Litros
5 Estante del Freezer 10 Puerta del Freezer con Espacio de
Almacenamiento

Related product manuals