EasyManua.ls Logo

GE GTS22 - Electrical System; Door Switches; Schematic

GE GTS22
55 pages
Print Icon
To Next Page IconTo Next Page
To Next Page IconTo Next Page
To Previous Page IconTo Previous Page
To Previous Page IconTo Previous Page
Loading...
– 36 –
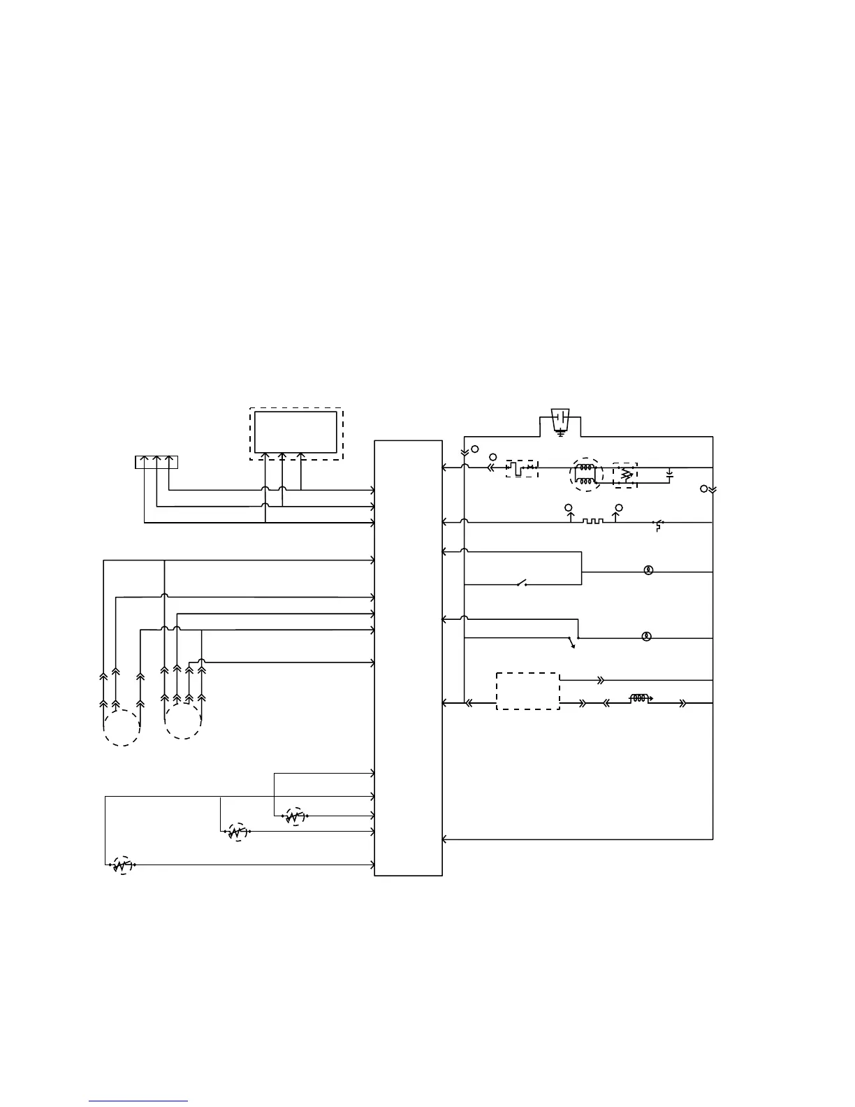
ELECTRICAL SYSTEM
Door Switches
The door switch (fresh food or freezer) closes when the door is open. When the door switch is
closed, L1 is provided to the compartment light(s). The main control board receives L1 input on
pin 6, J7 when the fresh food door switch is closed (door open). The main control board receives
L1 input on pin 4, J7 when the freezer door switch is closed (door open).
Schematic
TEMPERATURE
CONTROL
(SEE INDIVIDUAL DIAGRAM)
J3-5
J3-3 J3-1
J4-1J4-2J4-3J2-8
TEMPERATURE CONTROL BOARD IN
CONTROL HOUSING, FF COMPARTMENT
SMART TROLLEY
1
23
BLUE/YELLOW
WHITE/BROWN
RED/BLACK
YELLOW
YELLOW/BLACK
WIHTE (COMM)
BLUE (RPM)
MOD 2
+5V BLUE
BLUE/WHITE
THERMISTOR EVAP.
THERMISTOR FZ.
THERMISTOR FF1
RED/WHITERED/WHITE
BLUE/RED
BLUE/RED
EVAP. FAN
COND. FAN
(SEE
INDIVIDUAL
DIAGRAM)
(SEE
INDIVIDUAL
DIAGRAM)
+ 12V RED
J2-5J2-4J2-3J2-1
WHITE
WHITE
BLUE
BLUE
BLUE
BLUE
YELLOW
YELLOW
RED
RED
J1-7J1-5J1-4J1-3J1-1
J6-9
J6-6
TAB 1TAB 2TAB 4 J6-7J6-4
MAIN CONTROL PWB
(SEE INDIVIDUAL DIAGRAM)
ORANGE
ORANGE
BROWN
BROWN
BROWN
BROWN
BROWN
PURPLE
PURPLE
RED
RED
PURPLE
ORANGEORANGEORANGEORANGE
BROWN
OVERLOAD
COMPRESSOR
RELAY
WHITE
CAPACITOR
BLACK
(SEE INDIVIDUAL
DIAGRAM)
6
5
4
1
3
ORANGE
ORANGE
ORANGE
ORANGE
ORANGE
ORANGE
ORANGE ORANGEWHITEWHITEWHITE
DEFROST
THERMOSTAT
PINK
DEFROST HEATER
BLUE
FRESH FOOD LIGHT
FREEZER LIGHT
FZ SWITCH
FF SWITCH
WATER VALVE
ICE MAKER

Related product manuals