EasyManua.ls Logo

GE Profile 42 - Alimentation Deau; Dimensions Et Espaces Libres; Espace Pour Linstallation

GE Profile 42
100 pages
Print Icon
To Next Page IconTo Next Page
To Next Page IconTo Next Page
To Previous Page IconTo Previous Page
To Previous Page IconTo Previous Page
Loading...
ESPACE POUR L’INSTALLATION
Emplacements de l’arrivée d’eau et d’électricité
L’ouverture doit être préparée avec les
alimentations d’électricité et d’eau aux endroits
indiqués.
L’espace doit avoir une profondeur
de 610 mm (24 po)
Le réfrigérateur doit dépasser légèrement
devant les armoires adjacentes, en fonction
de l’installation.
Spécifications supplémentaires
Il doit y avoir une alimentation en 120 V, 60 Hz,
15 ou 20 A. Il est recommandé d’avoir un circuit
individuel correctement mis à la terre ou
un disjoncteur séparé. Installez une prise de
courant encastrée, correctement mise à la terre,
ou un coupe-circuit. La prise de courant doit
être sur le mur arrière, comme montré.
Note : Un disjoncteur differentiel (GFI) n’est pas
recommandé.
La conduite d’eau peut entrer dans l’ouverture
à travers le sol ou le mur arrière. La conduite
d’eau doit être en tube de cuivre de 1/4 po de
diamètre externe ou en tube GE SmartConnect
,
entre la conduite d’eau froide et l’emplacement
du branchement d’eau. La conduite doit être
suffisamment longue pour s’étendre jusqu’à
l’avant du réfrigérateur. Il est recommandé
d’installer un robinet de coupure sur la conduite
d’eau dans un endroit d’accès facile.
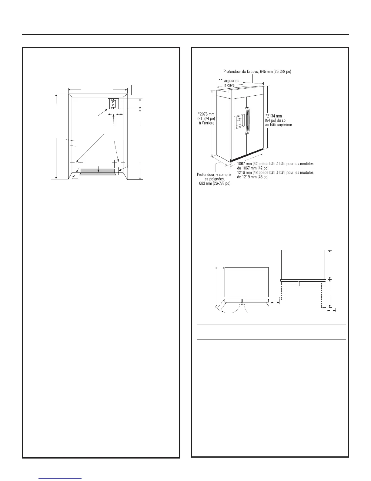
DIMENSIONS ET ESPACES LIBRES
Il faut prévoir l’espace minimal pour la porte
de congélateur (dimension A) et la porte du
compartiment pour aliments frais (dimension B) pour
une ouverture totale de la porte de 130° et permettre
la sortie du tiroir.
Il faut un espace d’au moins 102 mm (4 po) quand
l’ouverture de la porte est réglée à 90°. Quand la butée
de porte est réglée à 90°, l’accès au tiroir est maintenu,
mais la sortie du tiroir est limitée.
Consultez les illustrations aux pages 67 et 68 pour
déterminer l’interaction des portes avec les placards
et les comptoirs adjacents.
*L’ouverture doit avoir une largeur finie
de 1054 mm (41-1/2 po) pour les modèles
de 1067 mm (42 po) et 1206.5 mm (47-1/2 po) pour
les modèles de 1219 mm (48 po)
*Largeur nie
Zone
électrique
Ouverture nie,
2146 mm maxi
et 2121 mm mini
(84-1/2 po maxi
et 83-1/2 po mini)
1880 mm (74 po)
du sol au bas
de la prise
de courant
610 mm
(24 po)
Alimentation
d‘eau
89 mm (3-1/2 po)
76 mm (3 po)
178 mm (7 po)
127 mm
(5 po)
89 mm (3-1/2 po)
Espace pour le réfrigérateur
Ces réfrigérateurs sont équipés d’une butée de porte à
deux positions. Le réglage d’usine à 130° peut être réglé
à 90° si l’espace entre le réfrigérateur et les armoires ou
les murs adjacents est restreint.
Ouverture de porte de 130° Ouverture de porte de 90°
130° Door Swin
A
606 mm
(23-7/8 p
o
derrière
le bâti
C
D
D
Modèles A B C D
1067 mm 310 mm 406 mm 610 mm 127 mm
(42 po) (12-3/16 po) (16 po) (24 po) (5 po)
1219 mm 342 mm 472 mm 713 mm 127 mm
(48 po) (13-7/16 po) (18-9/16 po) (28 po) (5 po)
Instructions d’installation
66
*Hauteur d’expédition
Il est possible de régler
la hauteur avant de 2121 à
2146 mm (83-1/2 à
84-1/2 po), en réglant d’un
maximum de 25 mm (1 po)
les pieds de mise
à niveau avant et arrière.
** Largeur de la cuve est 1041
mm (41 po) pour
les modèles de 1067 mm (42
po) et 1194 mm (47 po) pour
les modèles de
1219 mm (48 po)

Related product manuals