EasyManua.ls Logo

GE PSCF3TGXAFWW - Service, Parts, and Filter Performance Data

GE PSCF3TGXAFWW
132 pages
To Next Page IconTo Next Page
To Next Page IconTo Next Page
To Previous Page IconTo Previous Page
To Previous Page IconTo Previous Page
Loading...
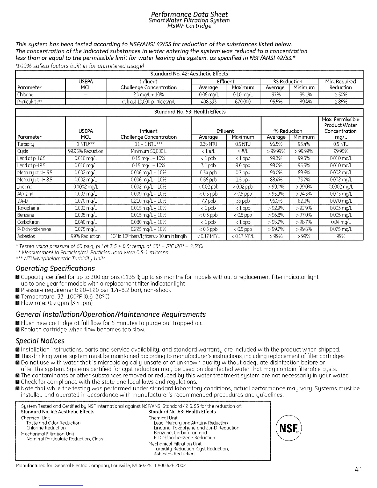
Performance Data Sheet
SmartWater Filtration System
t4SWF Cartridge
This system has been tested according to NSF/ANSI 42/53 for reduction of the substances listed below.
The concentration of the indicated substances in water entering the system was reduced to a concentration
less than or equal to the permissible limit for water leaving the system, as specified in NSF/ANSI 42/53.*
(100% safety factors built in for unmetered usage)
Standard No. 42:Aesthetic Effects
USEPA Influent Effluent
Parameter MCL Challenge Concentration Average Maximum
Chlorine - 2.0mg/L+ 10% 0.06mg/L 0.10mg/L
Particulate** - atleast10,000particlesimL 408,333 670,000
Standard No. 53: Health Effects
Parameter
Turbiditg
Cgsts
Lead at pH 6.5
Lead at pH 8.5
Hercurg atpH 6.5
Hercurg at pH 8.5
Lindane
Atrazine
2,4-D
Toxaphene
Benzene
Carbofuran
P-Dichlorabenzene
Asbestos
% Reduction Min. Required
Average Minimum Reduction
97% 95.1% _>50%
95.5% 89.4% _>85%
USEPA
MCL
1NTU***
99.95% Reduction
0.010 mg/L
0.010 mg/L
0.002 mg/L
0.002 mg/L
0.0002 mg/L
0.003 mg/L
0.070 mg/L
0.003 mg/L
0.005 mg/L
0.040 mg/L
0.075 mg/L
99% Reduction
Influent
Challenge Concentration
11+ 1 NTU***
Minimum 50,000 L
0.15 mg/L + 10%
0.15 mg/L + 10%
0.006 mg/L + 10%
0.006 mg/L + 10%
0.002 mg/L + 10%
0.009 mg/L + 10%
0.210 mg/L + 10%
0.015 mg/L + 10%
0.015 mg/L + 10%
0.080 mg/L + 10%
0.225 mg/L + 10%
107to 108fibers/L;fibers> !01Jmin length
Effluent
Average Maximum
0.38NTU 0.5NTU
<! #/L 4 #/L
<! ppb < ! ppb
3.1ppb 9.0ppb
0.34ppb 0.7ppb
0.66ppb 1.5ppb
<0.02ppb <0.02ppb
<0.5ppb < 0.5ppb
7.7ppb 35ppb
<i ppb <i ppb
<0.5ppb < 0.5ppb
<i ppb <i ppb
<0.5ppb < 0.5ppb
<0.!7 MF/L < 0.!7 MF/L
% Reduction
Average Minimum
96.5% 95.4%
> 99.99% > 99.99%
99.3% 99.3%
98.0% 95.5%
94.0% 89.6%
88.4% 73.7%
> 99.0% > 99.0%
> 93.9% > 94.3%
96.0% 82.0%
> 92.9% > 92.9%
> 96.8% > 97.0%
> 98.7% > 98.7%
> 99.7% > 99.8%
>99% > 99%
* Tested using pressure of 60 psig; pH of 7.5 +_0.5; temp. of 68 ° _+5°F (20° _+2.5°C)
** Measurement in Particles/ml. Particles used were 0.5-1 microns
*** NTU=Nephelometric Turbiditg Units
Operating Specifications
[] Capacitg: certified for up to 300 gallons (1135 I);up to six months for models without a replacement filter indicator light;
up to one gear for models with a replacement filter indicator light
[] Pressure requirement: 20-120 psi (1.4-8.2 bar), non-shock
[] Temperature: 33-100% (0.6-38°C)
[] Flow rate: 0.9 gpm (3.4 Ipm)
General Installation/Operation/Maintenance Requirements
[] Flush new cartridge at full flow for 5 minutes to purge out trapped air.
[] Replace cartridge when flow becomes too slow.
Max. Permissible
Product Water
Concentration
mg/L
0.5 NTU
99.95%
0.010 mg/L
0.010 mg/L
0.002 mg/L
0.002 mg/L
0.0002 mg/L
0.003 mg/L
0.070 mg/L
0.003 mg/L
0.005 mg/L
0.04mg/L
0.075 mg/L
99%
Special Notices
[] Installation instructions, parts and service availabilitg, and standard warrantg are included with the product when shipped.
[] This drinking water sgstem must be maintained according to manufacturer's instructions, including replacement of filter cartridges.
[] Do not use with water that is microbiologicallg unsafe or of unknown qualitg without adequate disinfection before or
after the sgstem. Sgstems certified for cgst reduction mag be used on disinfected water that mag contain filterable cgsts.
[]The contaminants or other substances removed or reduced bg this water treatment sgstem are not necessarilg in gour water.
[] Check for compliance with the state and local laws and regulations.
[] Note that while the testing was performed under standard laboratorg conditions, actual performance mag varg. Sgstems must be
installed and operated in accordance with manufacturer's recommended procedures and guidelines.
Standard No. 42: Aesthetic Effects
Chemical Unit
Taste and Odor Reduction
Chlorine Reduction
Mechanical Filtration Unit
Nominal Particulate Reduction, Class I
Sgstem Tested and Certified bg NSF International against NSF/ANSI Standard 42 & 55 for the reduction of:
Standard No. 53: Health Effects
Chemical Unit
Lead, Hercurg and Atrazine ReductJon
Lindane, Toxaphene and 2,4-D Reduction
Benzene, Carbofuran and
P-Dichlorobenzene Reduction
Mechanical Filtration Unit
Turbiditg Reduction, Cgst Reduction,
Asbestos Reduction
Manufactured for: General Electric Compang, Louisville, KY 40225 1.800.626.2002 /41

Related product manuals