EasyManua.ls Logo

GEA FX5 - Page 29

GEA FX5
44 pages
Print Icon
To Next Page IconTo Next Page
To Next Page IconTo Next Page
To Previous Page IconTo Previous Page
To Previous Page IconTo Previous Page
Loading...
D
GB
F
E
29
09702-09.2013-DGbF
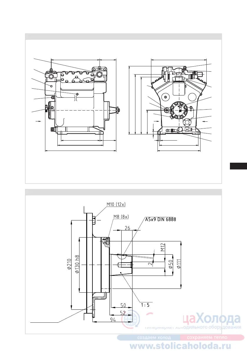
10| Dimensions and connections F
Compressor type F14 F14/1166 F14/1366
Shaft end F14
Fig. 31
Dimensions in mm
Dimensions in () = with elevated base plate
Woodruff key
Cone
362
124
4xØ13.5
290
320
ca.510 (560)
448 (498)
432 (482)
180 (230)
20
ca.415
121.5290
342
ca.530
X Y Y
SV
DV
L
A
B2
D
B
H
D1
A1
P
B1
B
C
E
K
F
J
ÖV1
Fig. 32
Dimensions in mm
Dimensions for view X, Y see page 32
Leak oil
drain hose

Related product manuals