EasyManua.ls Logo

GEA FX5 - Page 37

GEA FX5
44 pages
Print Icon
To Next Page IconTo Next Page
To Next Page IconTo Next Page
To Previous Page IconTo Previous Page
To Previous Page IconTo Previous Page
Loading...
D
GB
F
E
37
09702-09.2013-DGbF
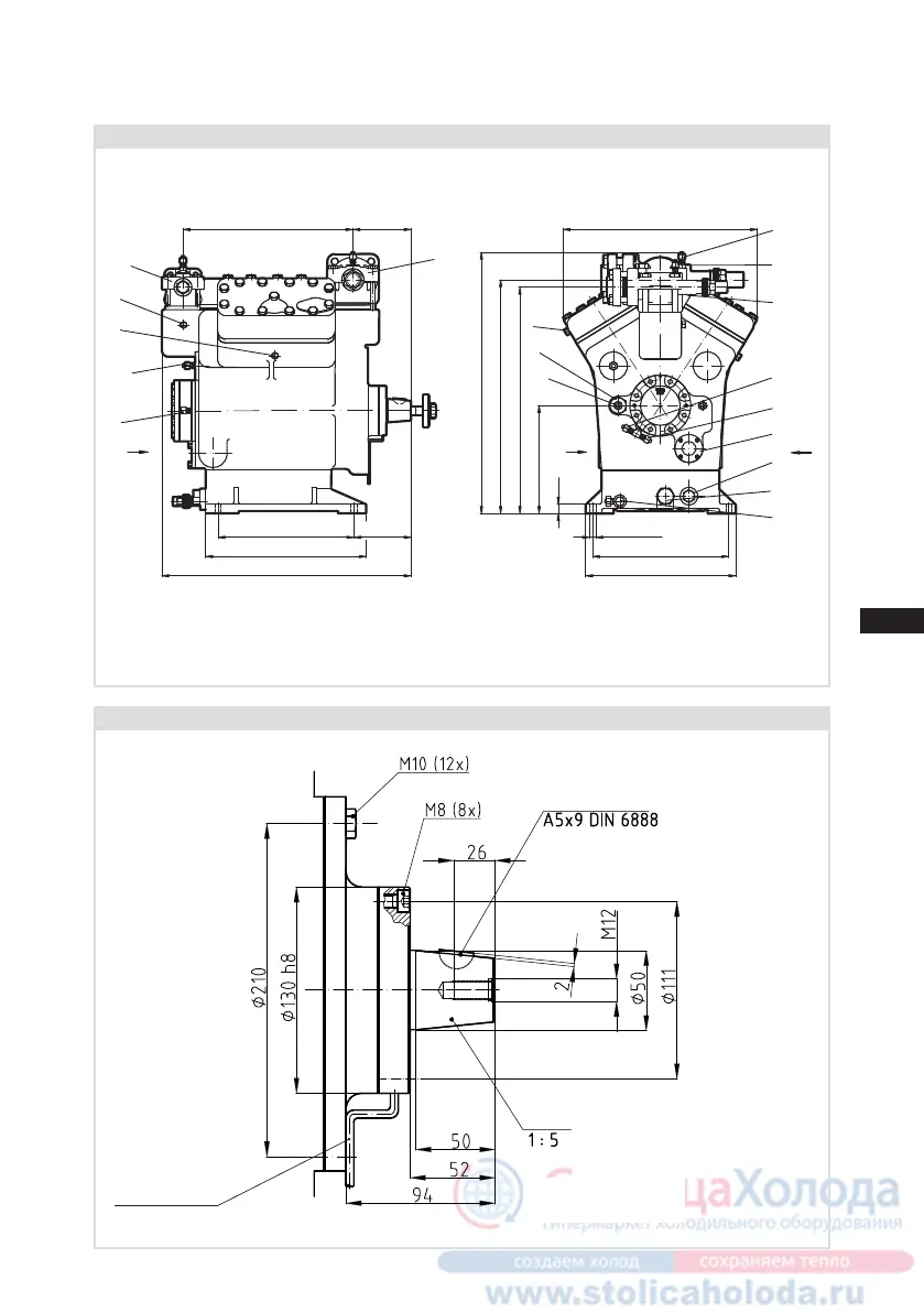
11| Dimensions and connections F-NH
3
Compressor type F14 NH
3
F14/1166 NH
3
F14/1366 NH
3
Shaft end F14 NH
3
Fig. 44
Dimensions in mm
Woodruff key
Cone
290
121.5
342
ca.530
DV
L
A
B2
D
SV
4xØ13.5
290
320
A1
B1
B
E
C
K
G
F
ÖV1
B
H
D1
362
124
ca.415
230
482
498
ca.560
20
X YY
290
121.5
342
ca.530
DV
L
A
B2
D
SV
4xØ13.5
290
320
A1
B1
B
E
C
K
G
F
ÖV1
B
H
D1
362
124
ca.415
230
482
498
ca.560
20
X YY
Fig. 45
Dimensions in mm
Dimensions for view X, Y see page 40
Leak oil
drain hose

Related product manuals