EasyManua.ls Logo

geminox EBS 300 - Technical Information; Connections; Maintenance

geminox EBS 300
16 pages
Print Icon
To Next Page IconTo Next Page
To Next Page IconTo Next Page
To Previous Page IconTo Previous Page
To Previous Page IconTo Previous Page
Loading...
We reserve the right to modify the characteristics of the equipment supplied without notice or as part of the continued development of our products.
3
EBS WRc APPROVAL AMENDMENT TO MANUAL
WRc Approval No : 0210132
**NOTE TO INSTALLER** :
Please read fully prior to commencing installation. Leave manual with householder after
installation.
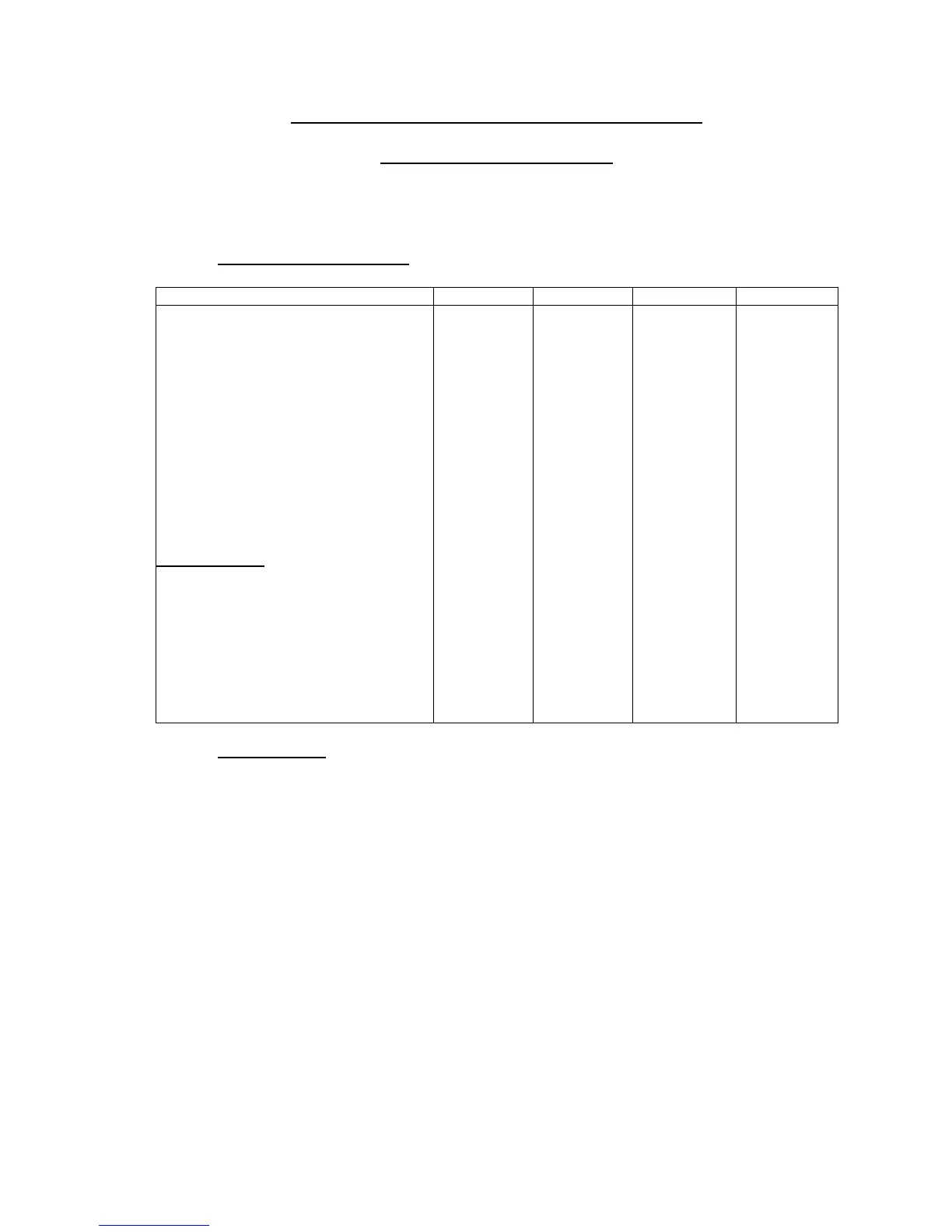
1 TECHNICAL INFORMATION
Table 1
MODEL EBS 100 EBS 150 EBS 200 EBS 300
Operating Pressure 3.5 Bar 3.5 Bar 3.5 Bar 3.5 Bar
Max Water Supply Pressure 12 Bar 12 Bar 12 Bar 12 Bar
Exp Relief Valve Setting 6 Bar 6 Bar 6 Bar 6 Bar
Nominal Storage Capacity 100 litres 150 litres 200 litres 300 litres
Pressure & Temperature Relief Valve 7 Bar/90
o
C 7 Bar/90
o
C 7 Bar/90
o
C 7 Bar/90
o
C
Expansion Vessel Charge Pressure 3.5 Bar 3.5 Bar 3.5 Bar 3.5 Bar
Weight without water 35 kg 45 kg 55 kg 70 kg
CONNECTIONS
Cold Water Inlet ¾” ¾” ¾” ¾”
Domestic Hot Water Flow ¾” ¾” ¾” ¾”
Hot Water Secondary Returns ¾” ¾” ¾” ¾”
Primary Flow from Boiler ¾” ¾” ¾” ¾”
Primary Return to Boiler ¾” ¾” ¾” ¾”
2 MAINTENANCE
WARNING : BEFORE COMMENCING ANY MAINTENANCE WORK, ISOLATE ALL MAINS
ELECTRICITY SUPPLIES TO THE SYSTEM
The Cylinder and Cold Water Supply Kit should be inspected annually.
Close mains supply cock.
Drain down hot water system including the cylinder. (Use drain cock and/or the expansion relief
valve).
Check pressure in expansion vessel(s) and recharge to 3.5 Bar, if necessary.
Remove filter in line strainer. Clean or replace. Re-assemble. Refill system.
Check all pipework for leaks.
Open P & T valve and check that it discharges water.
Open expansion relief valve and check that it discharges water.
Check operation of all controls.
Every two years, the following additional maintenance should also be carried out after draining
down.
Remove Electric Immersion Heater cover (if fitted).
Disconnect wiring to Immersion Heater Boss (if fitted).

Related product manuals