EasyManua.ls Logo

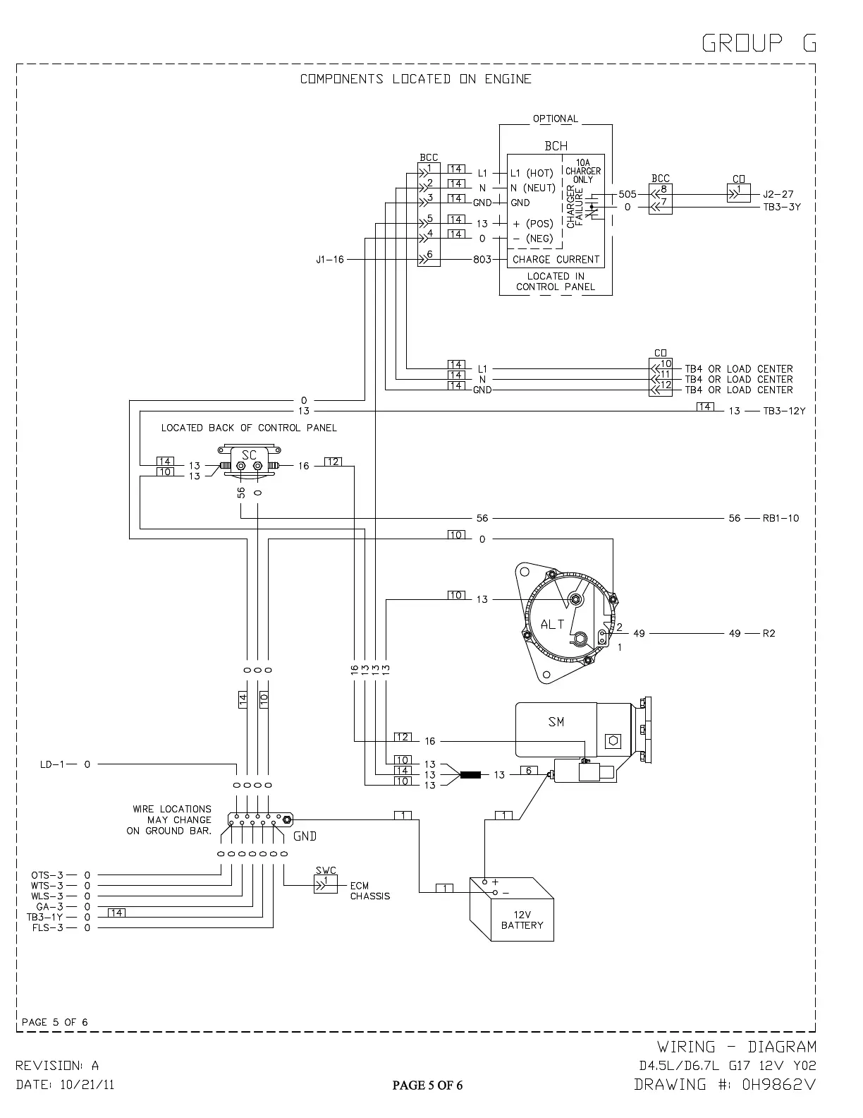
Generac Power Systems SD050 - Components Located on Engine

Generac Power Systems SD050
112 pages
Print Icon
To Next Page IconTo Next Page
To Next Page IconTo Next Page
To Previous Page IconTo Previous Page
To Previous Page IconTo Previous Page
Loading...

Table of Contents

Related product manuals