EasyManua.ls Logo

General ABG54FBAG - CIRCUIT DIAGRAMS; INDOOR UNIT SCHEMATICS; OUTDOOR UNIT SCHEMATICS

General ABG54FBAG
28 pages
Print Icon
To Next Page IconTo Next Page
To Next Page IconTo Next Page
To Previous Page IconTo Previous Page
To Previous Page IconTo Previous Page
Loading...
2005.08.23
- 5 -
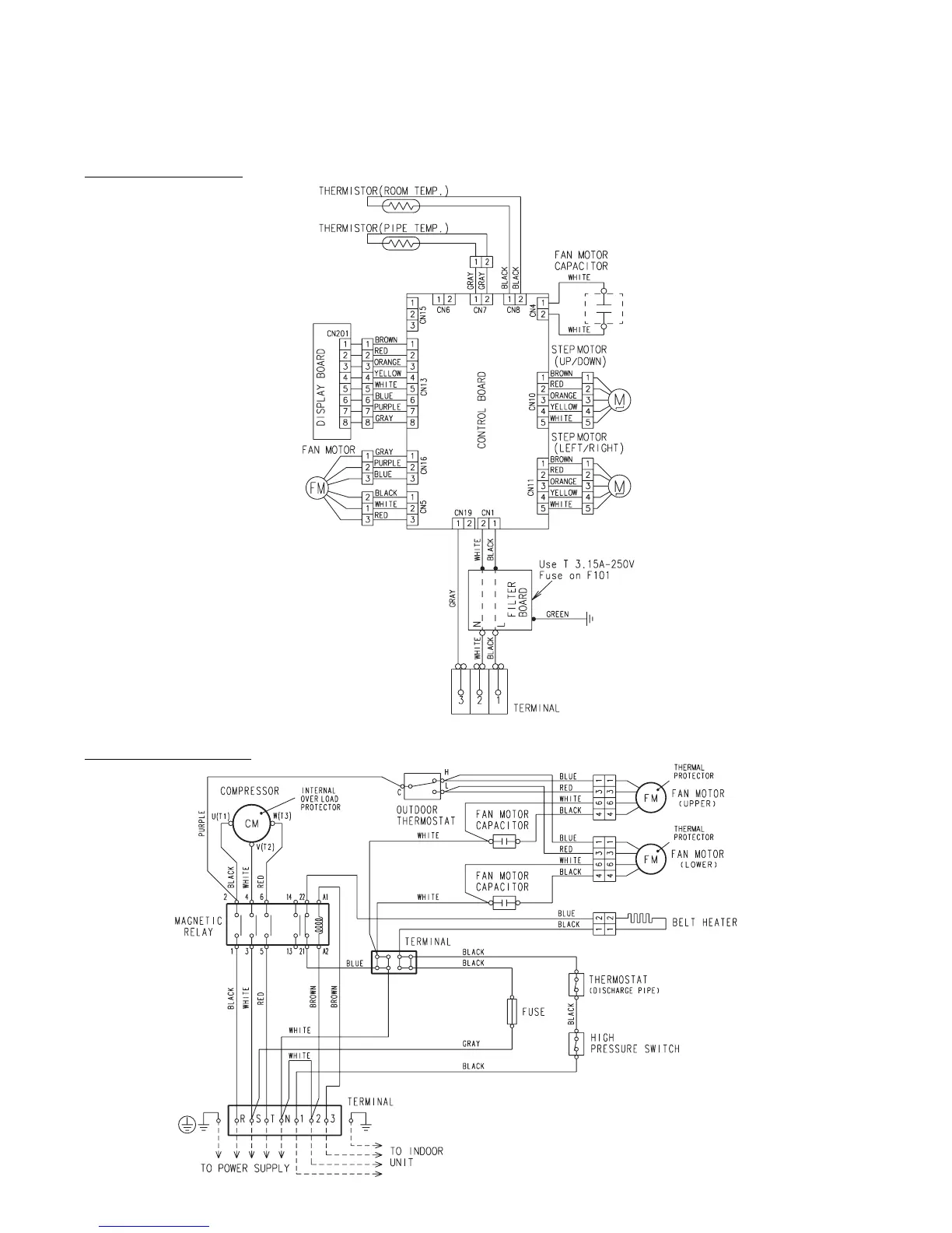
CIRCUIT DIAGRAM
Models : ABG54FBAG
ABY54FBAG
Models :AOG54FMAYT
AOY54FMAY T

Related product manuals