EasyManua.ls Logo

General AOH24LMAM2 - Indoor Printed Circuit Board Diagram

General AOH24LMAM2
24 pages
Print Icon
To Next Page IconTo Next Page
To Next Page IconTo Next Page
To Previous Page IconTo Previous Page
To Previous Page IconTo Previous Page
Loading...
5V
5V
+
+
+
5V
C7
10/25V
C32
0.1
<F>
C6
0.1 <F>
12V
JM1
JM5
JM4
JM3
JM2
R34
R4
R5
R3
R35
10K <1/10W> x 5
C1
0.1 <F>
CN8
S3P-VH
Q1
DTC124EUA
Q3
DTC124EUA
Q4
DTC124EUA
12 5
11 6
2
1 3
5V
R38
10K
<1/10W>
R8
10K
<1/10W>
5V
5V
C9
0.01
<B>
C30
0.01
<B>
R6 390 <1/10W>
R33
10K
<1/10W>
R12
10K
<1/10W>
5V
C11
0.1
<F>
5V
5V
I C2
BR93LC46
EEPROM
VCC
D0
TEST
GND
CS
SK
D1
NC 7
3
2
18
4
6
5
L3
BLm11
<A601>
5V
5V
R7 330
<1/10W>
I C6
PS2561-1
R9 10K
<1/10W>
C31
0.01
<B>
R39
10K
<1/10W>
R10 1.0K
<1/10W>
C8
0.01
<B>
L2
BLm11
<A601>
I C7
PS2561-1
R31 330
<1/10W>
Q5
DTC124EUA
CN7
B3B-XH-AM
B2B-XH-AM
CN10
CN6
B8B-PH-K-S
5V
5V
12V
BZ1
PST1240P02A-T
B Z
R14 10K
<1/10W>
R1
10K
<1/10W>
R2 1.0K
<1/10W>
Q2
DTC124EUA
2
3
1
C2
0.1 <F>
I C 1
uPD78F0034BSGB-X39-8ET-01
or
uPD780024ASGB-X39-8ET
44
37
14
15
16
43
23
27
10
20
26
30
9
34
21
22
4
36
2
3
42
41
40
39
17
18
31
19
1
33 32
X1 X2
49
50
51
52
5
6
7
35
11
12
38
13
29
25
24
28
8
P57
RESET
P11
P10
XT2
P36
P03
P35
P34
P00
P56
P55
P54
P47
P46
P45
P44
P75
P02
P20
P21
P22
P74
P12
AVDD
VDD0
VDD1
AVREF
XT1
GND0
GND1
AGND
P12
P53
P01
P51
P52
P73
P72
P71
P70
P23
P24
I C
P25
P54
R36
X1
CST8.38MHz
L1
1 3
2
FAN MOTOR
F M
12V
5V
CN101
B3P5-VH-B
12V
12V
C104
0.1
VA102
470V
1
43
2
CN101-1
BLACK
CN101-3
YELLOW
CN101-5
WHITE
W106W105
POWER SUPPLY PCB
EZ-00307HSE-P
CN103
B2B-XASK-1-A
B2B-XH-AM
CN104
B2P3-VH-B
CN102
POWER TRANSFORMER
EZ-030HSE-T
THERMAL FUSE
PRIMARY
SECONDARY
CN102-3 PURPLE
CN102-1 PURPLE
CN104-1 RED
CN104-2 RED
CN103-1 GRAY
CN103-2 GRAY
THERMAL FUSE
(103 )
R103
C107
0.01
W101
E
GREEN
UL1015 AWG22
GREEN
C102
4700P
C101
4700P
C103
0.1
VA101
470V
FH101
FH102
F101
T
3.15A
250V
W102
BLACK
W103
WHITE
W104
RED
UL1015 AWG22 BLACK
UL1015 AWG22 WHITE
UL1015 AWG22 RED
TERMINAL
L
N
3
OUTDOOR UNIT
VA103
470V
18
10
14
3
2
5
4
1
5V
C110
0.1
<F>
I C102
H I 2002
CN105
PHR-8
UL1061 AWG26 x 8
CN105-8 WHITE
CN6-8
CN105-7 WHITE
CN6-7
CN105-6 WHITE
CN6-6
CN105-5 WHITE
CN6-5
CN105-4 WHITE
CN6-4
CN105-3 WHITE
CN6-3
CN105-2 WHITE
CN6-2
CN105-1 BLUE
CN6-1
O
I
G
+
C111
100/
25V
C108
0.1
<F>
I C101
7805
+
C106
2200
/25V
D103
1SR139
D102
MTZJ15B
+
Q101
KSD880
D101
S1VB20
R101 10K
<1/4W>
C105
2200
/35V
R102 1.0K
<1/2W>
+
C109
10/
50V
SSR101
G3MC-201PL-VD DC12V
L101
SS11V-10062
UL1015 AWG20
ORANGE
ORANGE
FAN CAPACITOR
7.0uF
CN7-1 RED
CN7-2 WHITE
CN7-3 BLACK
12V
12V
I C5-1 uLN2003
I C5-4 uLN2003
I C5-3 uLN2003
I C5-2 uLN2003
8
13
15
14
16
9
4
2
1
3
CN5-1 RED
CN5-2 ORANGE
CN5-3 YELLOW
CN5-5 BLUE
CN5-4 PINK
UL1061 AWG26 x 5
CN5
53325-0510
UL1061 AWG26 x 6
LOUVER
M
CN4-6 WHITE
6
CN4-4 WHITE
CN4-5 WHITE
5
4
3
2
1
CN4-2 WHITE
CN4-3 WHITE
CN4-1 RED
5V CN4
B6B-PH-K-S
CN1 B5P-SHF-1AA
CHECKER
CN1-1
CN1-5
CN1-4
CN1-3
CN1-2
5V
5V
CN201
INDICATOR PCB
EZ-00307HSE-D
+
X201
GP1UM261RK
C202
0.1 <F>
R201 47
<1/4W>
C201
47/10V
VCC (+5V)
DATA
GND
OPERATE
TIMER
DEFROST
RED
GREEN
ORANGE
D201 SLR-325 <VC>
D202 SLR-325 <DC>
D203 SLR-325 <MC>
CN2-1 BLACK
CN2-1 BLACK
CN3-1 GRAY
CN3-2 GRAY
5V
CN2
CN3
R27 10K
<1/10W>
(1%)
R26 49.9K
<1/10W>
(1%)
ROOM TEMPERATURE THERMISTOR
PIPE TEMPERATURE THERMISTOR
C27
0.1 <F>
5V
R28 10K
<1/10W>
MANUAL AUTO
SWITCH
SW1
RESET
1
2
5
3
4
I C3
BD4742G
C25
0.1 <F>
C22
0.1 <F>
C21
0.1 <F>
R24 390
<1/10W>
R25 390
<1/10W>
5V
R22
R23
R20
R21
10K <1/10W> x 4
5V
R19
10K
<1/10W>
C16
1000P
<R>
R18 47 <1/10W>
R17 330 <1/10W>
R16 330 <1/10W>
R15 330 <1/10W>
5V
R29
10K
<1/10W>
R30 1.0K
<1/10W>
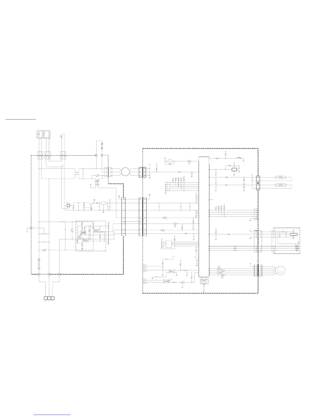
CONTROLLER PCB ASSEMBLY ( MAIN PCB )
ASH7LMACW : EZ-00307HSE-C
ASH9LMACW : EZ-00308HSE-C
ASH12LMACW : EZ-00309HSE-C
HEATING TEMPERATURE
CORRECTION 1
HEATING TEMPERATURE
CORRECTION 2
REMOTE CONTROL
CUSTOM CODE
HA SWITCHING
SERIAL SWITCHING
Models : ASH7LMACW
ASH9LMACW
ASH12LMACW
8
2004.04.20
INDOOR PRINTED CIRCUIT BOARD
CIRCUIT DIAGRAM

Related product manuals