EasyManua.ls Logo

Gerus GERUTEST NTB5 - Page 9

Gerus GERUTEST NTB5
Print Icon
To Previous Page IconTo Previous Page
To Previous Page IconTo Previous Page
Loading...
A-A
1
1
2
2
3
3
4
4
5
5
6
6
7
7
8
8
A A
B B
C C
D D
E E
F F
Status
modification
Date
Name
Date Name
Bearb.
Gepr.
Norm
M: 1:5
material:
Zeichnung ist Eigentum der Fa. GERUS GmbH & Co.KG. Gebrauch durch Dritte u. Vervielfälltigung nur mit schriftlicher Einwilligung.
Urspr.
Ers. f.:
Ers. d.:
Maße ohne Toleranzangabe: B, mittel, nach DIN ISO 2768
Kanten nach DIN 6784
Oberfl. n. DIN ISO 1302
GmbH & Co.KG
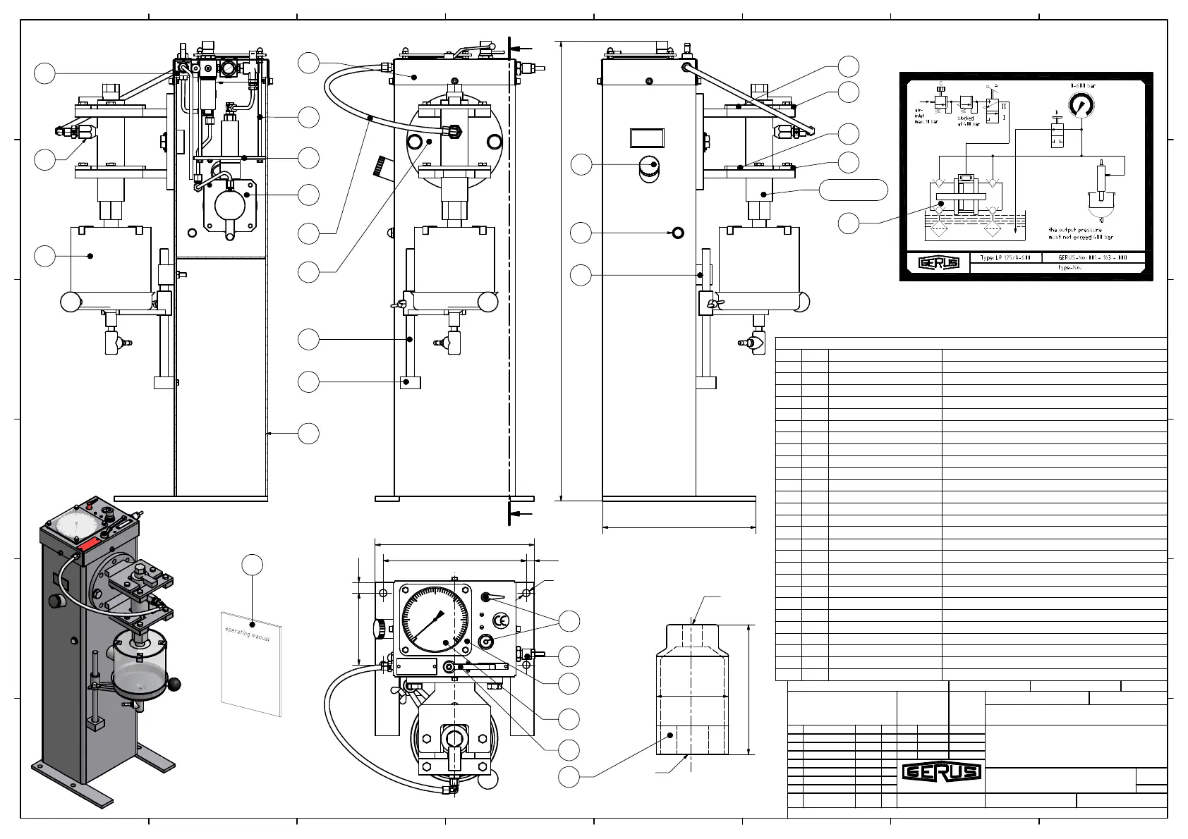
001-163-000
ass. nozzle test bed
GERUTEST
22.07.2008
Völk
1
A2
1
1 001-162-002
nozzle test bed body
2 1 001-162-009 ass. injector body
4 1 001-162-018 ass. bank of valves
5
1 001-162-027
ass. oil collection container w.prot. pipe+cover
6 1 001-163-003 ass. upper support rail
7
1 001-163-005 ass. lower support rail
8 1 001-100-001 pressure gauge 0-600 bar
9 1 001-162-001 covering hood
10 4 DIN976-M8x285 threaded rod M8x285 lg
11 1 001-162-020
perspex protection cover
12 1 001-100-010 high pressure pump LP125/8
13 1 001-162-014 plate
14 1 001-100-004
air coupling
15 1 001-162-024
mounting shaft
16 1 001-162-023 mounting plate
17 1 001-150-021
rubber buffer M10x30-D50-H40 Type D
18 1 001-162-013
closing cover G1 1/4, D=49, L=26,5
19 1 001-162-025 decompression valve G1/4 BKH DIN ISO 228
20 1 001-162-012
oil sight glas, G 1/2, D=28, SW 24
21 1 001-162-026 angle support
22 1 001-100-026 connection socket 32/40
23 1 001-163-001 upper support injector body
24 1 001-163-004 lower support injector body
25 1 612-005-000 socket spanner SW55 for nozzle cap nut
26 1 001-102-031 high pressure hose L=800
27 1 001-163-100
functional diagram
28 1 001-162-103 operating manual
parts list
item
no.
no. of component designation
A
A
398
384
NTB5
32/40 + CD
1
1
5
2
9
2
4
14
11
19
23
24
7
injection valve
6
15
16
1
8
0
2
7
358 20
n
18
(4x)
17
18
20
10
13
12
5
22
1
21
A item 20 + 18 16.07.09 Völk
26
8
27
o
3/4"
SW55
(1:2)
B modification 16.09.09 Völk
device blocked
at 400 bar
relief
0
100
200
300
400
500
600
bar
max. tightening torque = 750 Nm
1.10.2009 Schroll
1
3
0
72
n
25
28
C + CE + item 29 19.10.09 Völk
D item 3 deleted 20.12.09 Völk