EasyManua.ls Logo

GF EA31 - Positioner

GF EA31
38 pages
Print Icon
To Next Page IconTo Next Page
To Next Page IconTo Next Page
To Previous Page IconTo Previous Page
To Previous Page IconTo Previous Page
Loading...
62
During this run, the LED (6) will blink. While the LED (6) is blinking, the
actuator is in the learning mode. The learning run is only nished when the
LED lights continuously.
If the position signalization is combined with the monitoring print, the
output signal 4 – 20 mA can be processed on the terminals 18, 19 (7) on the
board of the monitoring print. (4 mA > CLOSED / 20 mA > OPEN).
If the position signalization is connected to the positioner, the latter will
process the signal.
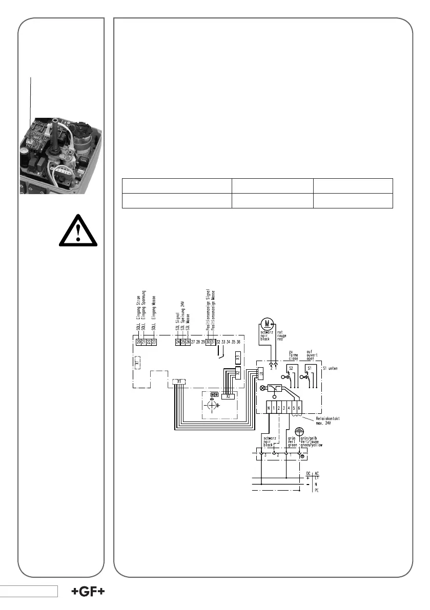
7.7 Positioner
Description Technical data Code
Positioner type PE 25 199 190 100
The positioner type PE 25 controls a user-dened valve position proportio-
nal to a given set value. This can be 0-10V or 4-20mA.
Power supply needs to be galvanically isolated.
The return of the valve position (actual value) is realized with the position
signalization.
The control parameters are pre-set ex factory and do not need to be chan-
ged.
7

Related product manuals