EasyManua.ls Logo

Ghisalba VFD-E Series - Page 32

Default Icon
268 pages
Print Icon
To Next Page IconTo Next Page
To Next Page IconTo Next Page
To Previous Page IconTo Previous Page
To Previous Page IconTo Previous Page
Loading...
Chapter 3 Start Up
_
VFD-E Series
Revision August 2006, 01EE, SW--PW V1.03/CTL V2.03 2-17
DANGER!
Damaged insulation of wiring may cause personal injury or damage to circuits/equipment if it comes
in contact with high voltage.
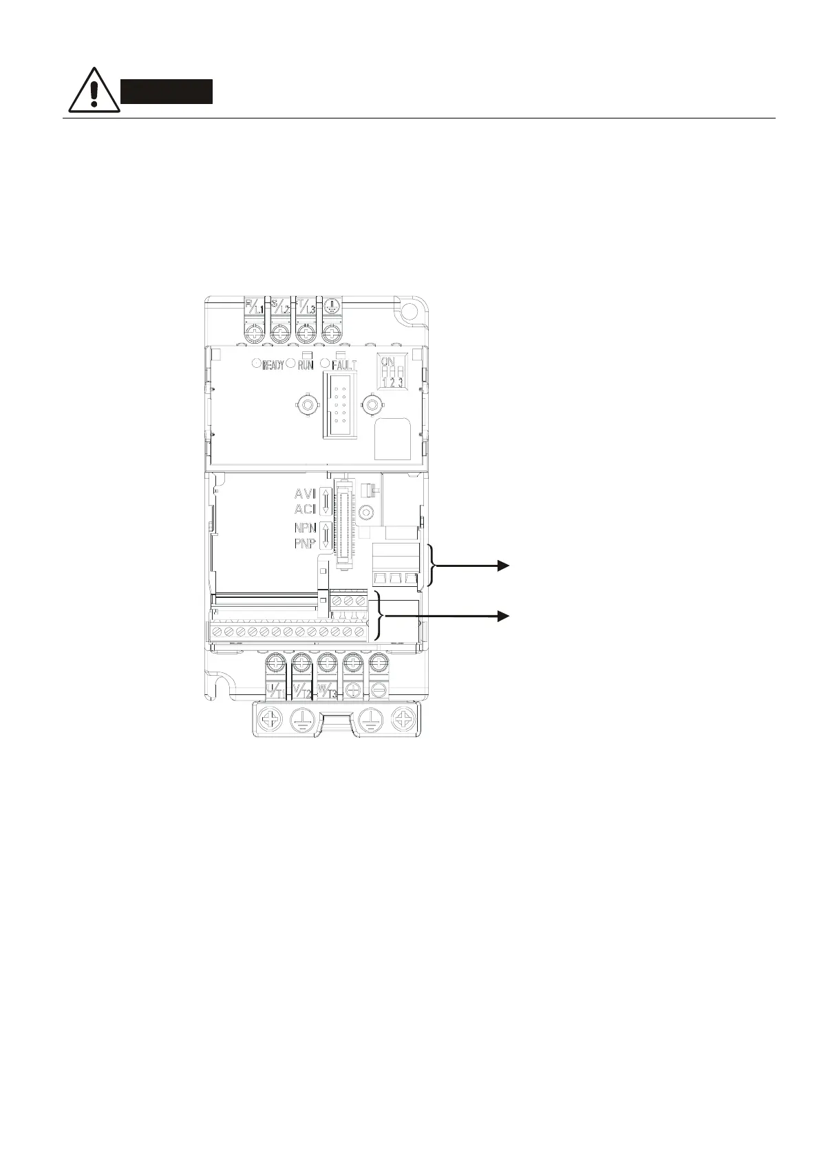
2.4.5 Main Circuit Terminals
Frame A: VFD002E11A/21A/23A, VFD004E11A/21A/23A/43A, VFD007E21A/23A/43A,
VFD015E23A/43A
Control Terminal 1
Control Terminal 2
Control Terminal 1:
Torque: 5kgf-cm (4.4 lbf-in)
Wire Gauge: 12-24 AWG (3.3-0.2mm
2
)
Control Terminal 2:
Torque: 2kgf-cm (2 lbf-in)
Wire Gauge: 16-24 AWG (1.3-0.2mm
2
)
Power Terminal:
Torque: 14 kgf-cm (12 lbf-in)
Wire Gauge: 12-14 AWG (3.3-2.1mm
2
)
Wire Type: Copper only, 75
o
C
NOTE: No T/L3 terminal on 1-phase models