EasyManua.ls Logo

Global 761221 - Rough-In Guide

Global 761221
13 pages
Print Icon
To Next Page IconTo Next Page
To Next Page IconTo Next Page
To Previous Page IconTo Previous Page
To Previous Page IconTo Previous Page
Loading...
Instruction Manual
4
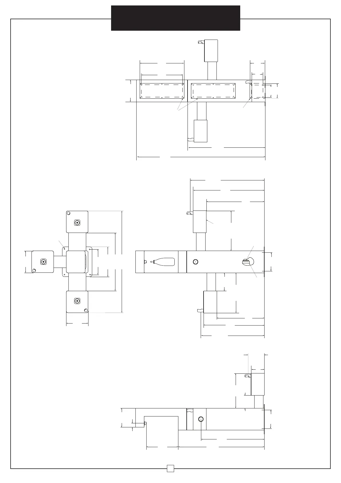
LEGEND:
A = 3/8” O.D. UNPLATED COPPER TUBE CONNECT - SHUT-OFF VALVE BY OTHERS
B = ACESS PANEL (7” X 20”)
C = REMOVABLE BOTTOM COVER
Rough-In Guide
• See Page 13 for Draining and Winterization
Actual product configuration may vary based on model ordered.
Outdoor Bi-Level Drinking Fountain
w/ Bottle Filler & Pet Station
9''
225mm
16''
376mm
40''
1023mm
29''
753mm
16''
412mm
6''
152mm
6''
158mm
7-1/2''
191mm
ORIFICE
HEIGHT
29''
755mm
ORIFICE
HEIGHT
28-1/2''
723mm
18-1/2''
475mm
8-1/2''
215mm
22''
565mm
60-1/4''
1531mm
36-1/2''
922mm
10-1/4''
260mm
10''
260mm
10''
260mm
14''
355mm
27''
691mm
47-1/2''
1211mm
1.8''
46mm
18-1/2''
475mm
27''
689mm
33-1/4''
847mm
34-1/2''
880mm
ORIFICE
HEIGHT
1/2''
12mm HOLES (4)
FINISHED FLOOR
1-1/2''
WASTE
A
C
11-1/2''
300mm
7''
177mm
5-1/2''
146mm
B
B-2
20''
511mm
20-1/2''
526mm
5-1/2''
133mm
7''
177mm
8-1/4''
210mm
INSIDE OPENING
8-1/4''
210mm
INSIDE OPENING