EasyManua.ls Logo

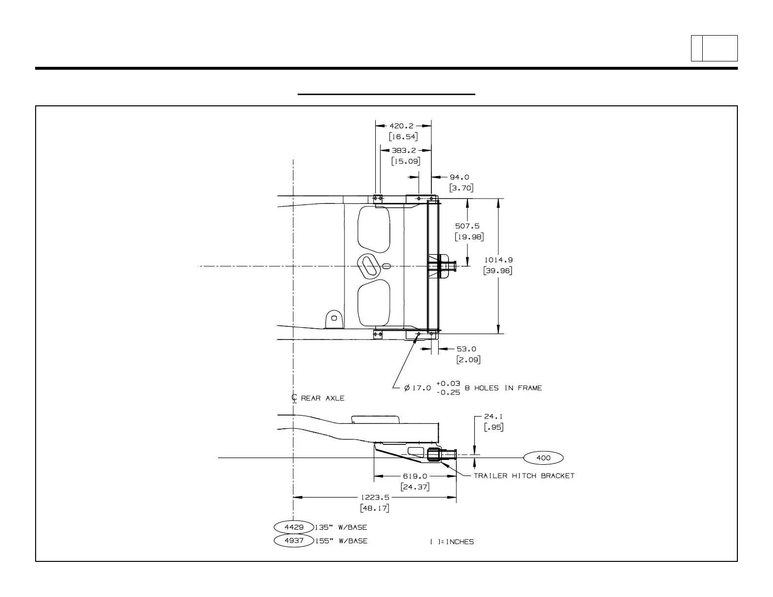
GMC G/H Van - Platform Trailer Hitch

GMC G/H Van
90 pages
Print Icon
To Next Page IconTo Next Page
To Next Page IconTo Next Page
To Previous Page IconTo Previous Page
To Previous Page IconTo Previous Page
Loading...
G/H Van 2007 – Rev. 5-07
G/H Va n
60
PAGE
TD006052a
Platform Trailer Hitch

Table of Contents