EasyManua.ls Logo

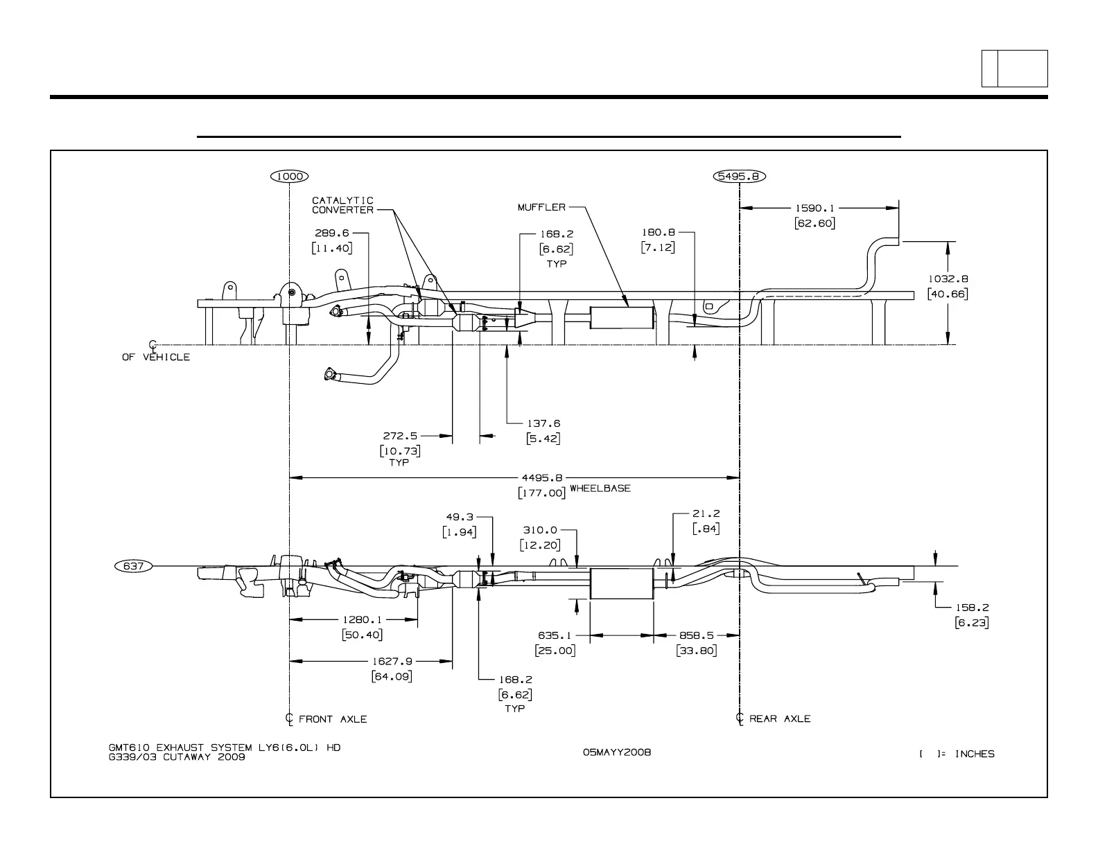
GMC G/H Van - Exhaust System, G33903, 177 WB - W;Vortec 6.0 L V8 (LY6)

GMC G/H Van
90 pages
Print Icon
To Next Page IconTo Next Page
To Next Page IconTo Next Page
To Previous Page IconTo Previous Page
To Previous Page IconTo Previous Page
Loading...
G/H Van 2009 Rev. 5-08
G/H Va n
79
PAGE
ANF62088.5
Exhaust System, G33903, 177 WB w/Vortec 6.0L V8 (LY6)

Table of Contents