EasyManua.ls Logo

Golden Technologies PR-401 - Maxicomfort

Golden Technologies PR-401
54 pages
Print Icon
To Next Page IconTo Next Page
To Next Page IconTo Next Page
To Previous Page IconTo Previous Page
To Previous Page IconTo Previous Page
Loading...
REVA_082012
21
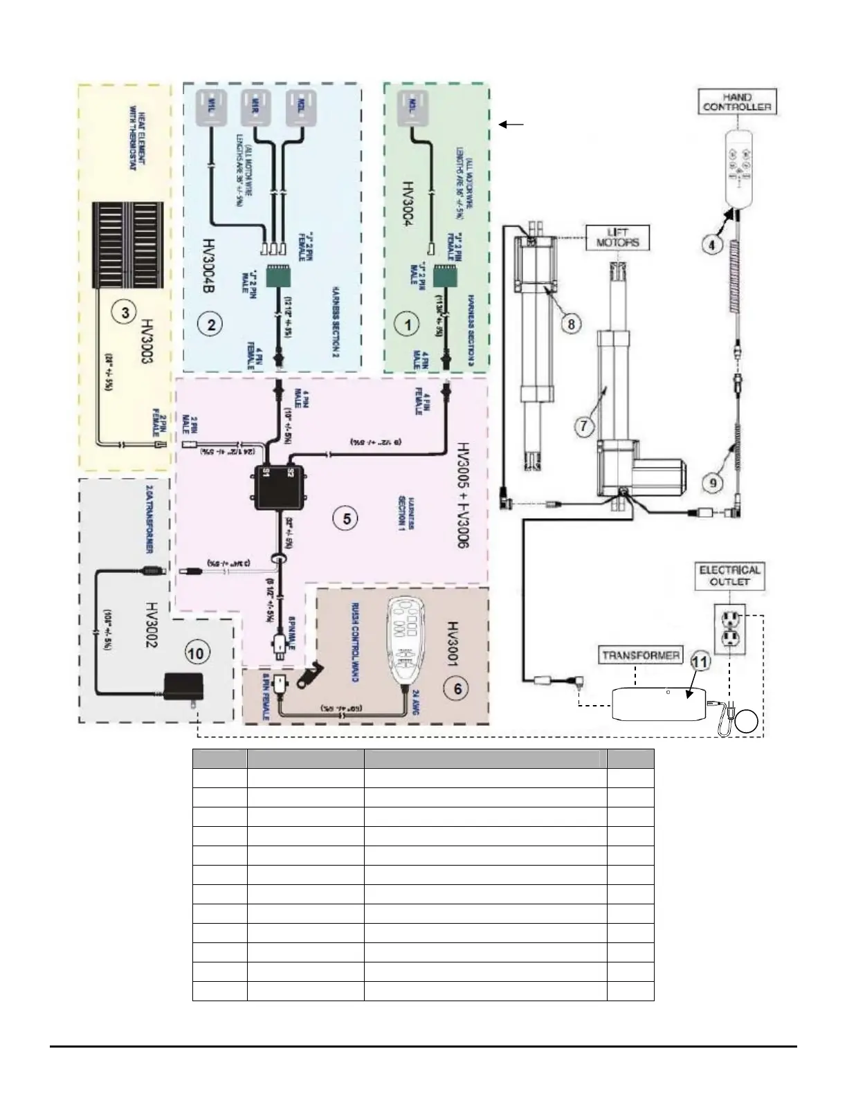
MaxiComfort Electrical Diagram
REF # PART NUMBER DESCRIPTION QTY.
1 HV3004 Massage Unit Assembly, Seat 1
2 HV3004B Massage Unit Assembly, Back 3
3 HV3003 Heat Pad 1
4 ZKAD-1 Hand Wand Auto Drive for Lift Chairs 1
5 HV3005 Control Box 1
6 HV3001 Heat Massage Deluxe Hand Control 1
7 GM1500-LM Motor Chair Okin Maxi Lift Motor 1
8 GM756R Motor Chair Okin Maxi Recline Motor 1
9 ZK1100-EXT Hand Control Extension 1
10 HV3002-2 Box Transformer 3 x 3 1/2 x 10 1
11 GM1501-A Motor Chair Transformer 1
12 GM1501-APUS Transformer Cord 1
Upper-back in middle
Lower-back
In-Seat
behind
knee
HV3000 COMPLETE
RELAXOR DHV SYSTEM
LED Light
DC Powe
r
12
Smart Tek System
Models: PR-756MC, PR-756L, PR-506, PR-505JP, PR-505S, PR-505M, PR-505L, PR-510

Related product manuals