EasyManua.ls Logo

Goodman CPG SERIES - Page 40

Goodman CPG SERIES
56 pages
Print Icon
To Next Page IconTo Next Page
To Next Page IconTo Next Page
To Previous Page IconTo Previous Page
To Previous Page IconTo Previous Page
Loading...
40
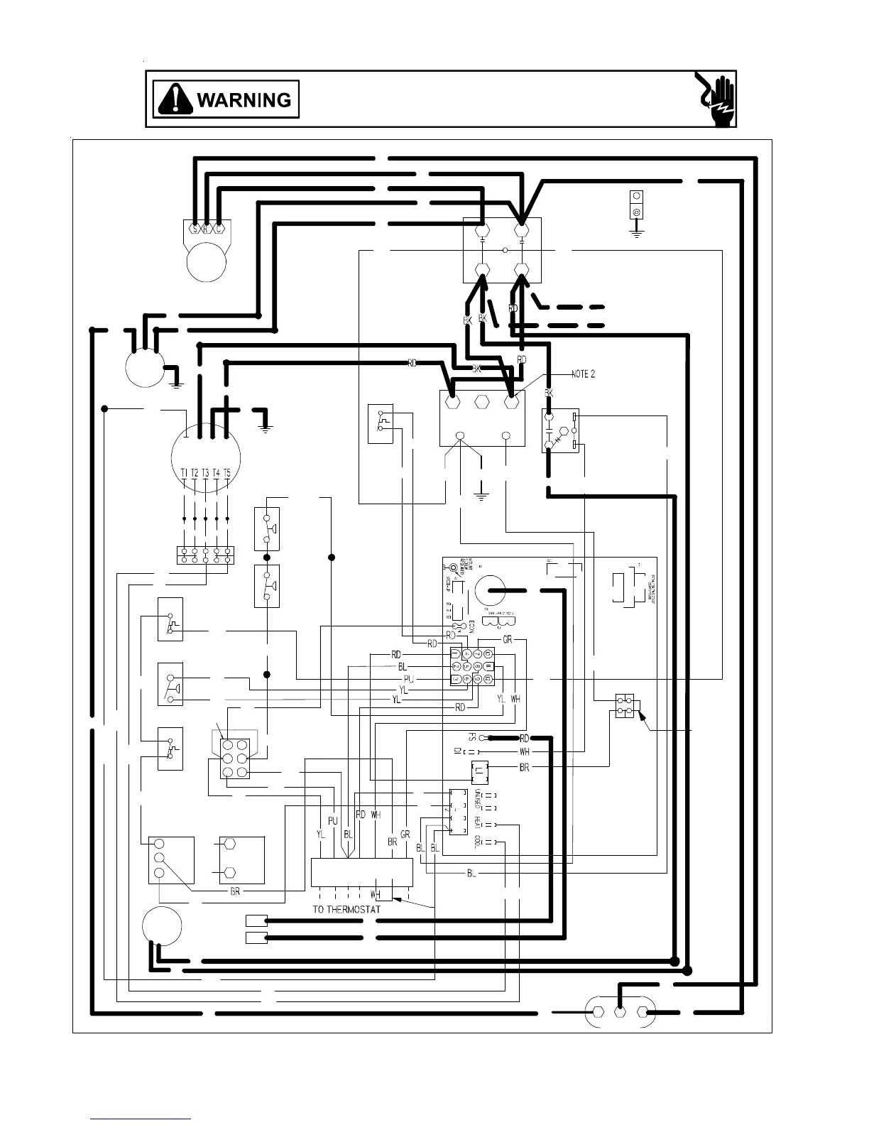
Wiring is subject to change. Always refer to the wiring diagram on the unit for the most up-to-date wiring.
HIGH VOLTAGE!
DISCONNECT ALL POWER BEFORE SERVICING OR INSTALLING THIS
UNIT. MULTIPLE POWER SOURCES MAY BE PRESENT. FAILURE TO
DO SO MAY CAUSE PROPERTY DAMAGE, PERSONAL INJURY OR DEATH.
CPG0060*1D SINGLE PHASE 240V/60HZ DIRECT DRIVE
GND
YL
POWER SUPPLY
240/1/60
RD
YL
WH
BL
RD
RCCF
RD
YL
L2
C
T2
L1
T1
BL
BK
BK
PU
RD
COMP
BK
PU
CM
BR
PK
24
0
PK
VMR
BL
C
24V
TR
BL
20
8
OR
LS
RD
RD
NOTE 6
SEE
BL
BL
GR
ALS
GR
PS
RS
PLF
YL
YL
NOTE 4
GAS VALVE
MV
2
1 4
5
YL
BL
W. R.
GAS VALVE
PU
(ALT.) HONEYWELL
3 6
YL
BR WH
BL
YL
PU
PU
PU
1 23
BR
OR
RD
MV
FS
IGN
VM
BL
BL
YL
WH
BR
BL
GV
GV
SMOKE/FIRE
DETECTOR
REPLACES
JUMPER
WIRE
TB1
TB1
PU
YL
F
WH
HC
YL
LPS
HPS
YL/PK
BK
240/1/60 0140L00429 REV B
S1
S2
YL
PU
BR
WH
OR
1
5
BL
NOTE 3 & 7
G
EM
LC
RD
BK
N
YL
WH
TB1
YL/PK
GR
3
1
2
SEE
NOTE 8
Y
Y1
R
C
W
G
W2
BK
YL
PU
BR
WH
OR
WH
SEE NOTE 6