EasyManua.ls Logo

Goodman GMEC960403ANAA - Wiring Diagrams; Furnace Wiring Diagrams

Goodman GMEC960403ANAA
64 pages
Print Icon
To Next Page IconTo Next Page
To Next Page IconTo Next Page
To Previous Page IconTo Previous Page
To Previous Page IconTo Previous Page
Loading...
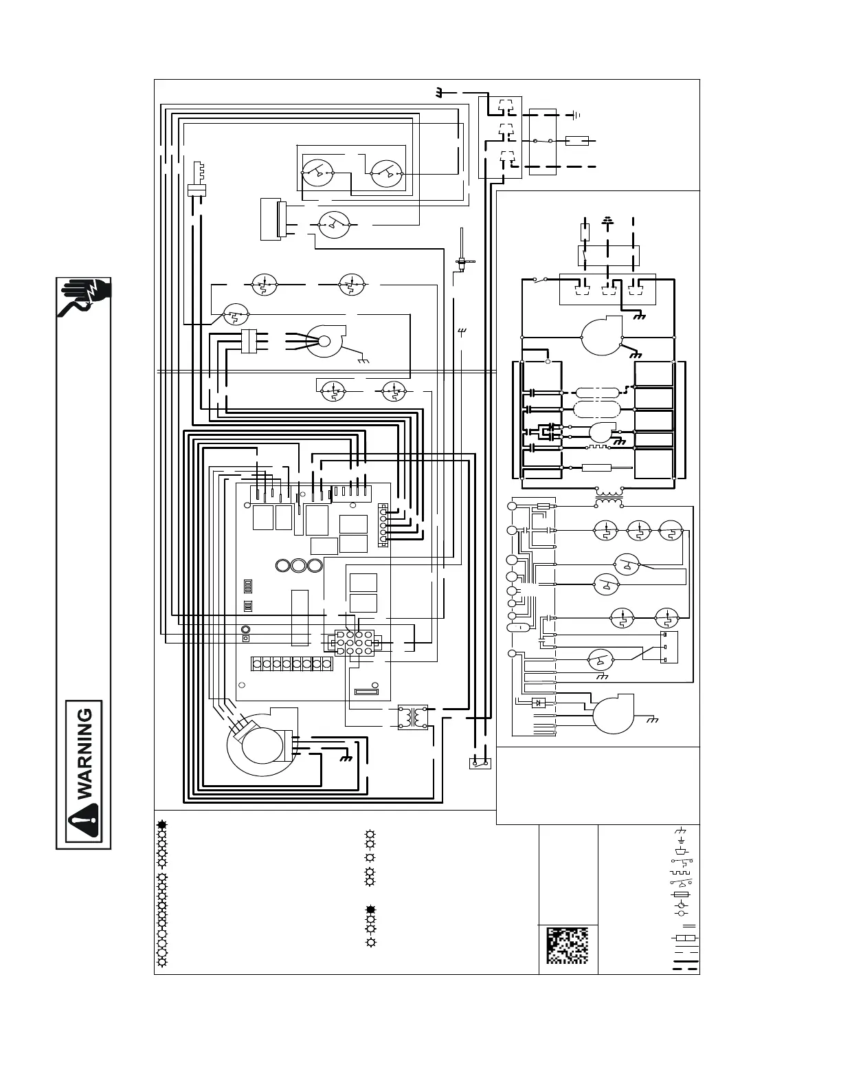
WIRING DIAGRAMS
Wiring is subject to change. Always refer to the wiring diagram on the unit for the most up-to-date wiring.
HIGH VOLTAGE!
DISCONNECT ALL POWER BEFORE SERVICING OR INSTALLING THIS
UNIT. MULTIPLE POWER SOURCES MAY BE PRESENT. FAILURE TO
DO SO MAY CAUSE PROPERTY DAMAGE, PERSONAL INJURY OR DEATH.
61
*MEC96 - REV AA
G
N
G
N
D
C
O
L
O
R
C
O
D
E
S
:
G
N
G
R
E
E
N
R
D
R
E
D
G
Y
G
R
A
Y
P
U
P
U
R
P
L
E
P
K
P
I
N
K
B
K
B
L
A
C
K
B
L
B
L
U
E
W
H
W
H
I
T
E
B
R
B
R
O
W
N
Y
L
Y
E
L
L
O
W
O
R
O
R
A
N
G
E
G
N
D
B
K
RD
RD
GN
GN
24
VAC
115
VAC
G
N
D
GRD
BK
Y
L
O
Y
W
1
W
2
R
G
C
T
W
I
N
N
.E
.
C
.
C
L
A
S
S
2
W
I
R
E
0140F
02011-
A
BR
PK
GY
OR
GN
BL
YL
S
2
S
1
BK
HUM
X-FMR
L1
CIRC-H
EAC-H
5
2
1
4
3
2
4
V
3
A
F
U
S
E
N
E
U
T
R
A
L
D
I
A
G
N
O
S
T
I
C
L
E
D
'S
5 CIRCUIT CONNECTOR
1
0
6
3
4
5
2
7
1
1
1
1
2
8
9
F
R
O
N
T
C
O
V
E
R
P
R
E
S
S
U
R
E
S
W
I
T
C
H
N
O
C
F
U
S
E
3
A
M
I
C
R
O
T
O
P
S
2
(
2
)
T
R
(
9
)
G
H
I
C
T
H
(
5
)
24V THERMOSTAT CONNECTIONS
V
A
L
V
E
G
A
S
W
2
T
R
A
N
S
F
O
R
M
E
R
H
L
I
(
6
)
Y
2
Y
1
H
L
O
(
1
1
)
G
N
D
(
4
)
O
M
V
L
(
7
)
N
O
W
1
C
R
C
O
N
T
R
O
L
S
A
U
T
O
R
E
S
E
T
A
U
X
I
L
I
A
R
Y
L
I
M
I
T
L
I
M
I
T
C
O
N
T
R
O
L
S
M
A
N
U
A
L
R
E
S
E
T
R
O
L
L
O
U
T
P
R
E
S
S
.
S
W
T
I
C
H
H
I
G
H
F
I
R
E
C
S
W
I
T
C
H
L
O
W
F
I
R
E
P
R
E
S
S
M
V
H
(
1
)
D
E
H
U
M
G
N
D
P
S
1
(
1
2
)
L
I
M
I
T
C
O
N
T
R
O
L
A
U
T
O
R
E
S
E
T
P
R
I
M
A
R
Y
2
4
V
A
C
N
O
P
M
M
V
C
(
8
)
I
N
T
E
G
R
A
T
E
D
C
O
N
T
R
O
L
M
O
D
U
L
E
C
B
L
W
R
A
I
R
I
N
D
O
O
R
C
IR
C
U
L
A
T
O
R
R
T
O
M
I
C
R
O
T
O
T
O
+
V
D
C
E
A
C
H
U
M
I
D
I
F
I
E
R
I
D
N
E
U
T
R
A
L
W
I
R
I
N
G
T
O
U
N
I
T
L
INTEGRATED CONTROL MODULE
H
O
T
S
U
R
F
A
C
E
G
N
D
B
L
W
R
N
E
U
T
R
A
L
W
A
R
N
I
N
G
:
G
R
O
U
N
D
E
D
.
O
V
E
R
C
U
R
R
E
N
T
P
R
O
T
E
C
T
I
O
N
D
E
V
I
C
E
M
U
S
T
B
E
P
R
O
P
E
R
L
Y
S
W
I
T
C
H
N
E
U
T
R
A
L
E
L
E
C
T
R
O
N
I
C
A
I
R
I
G
N
I
N
D
H
I
D
IS
C
O
N
N
E
C
T
F
S
P
O
L
A
R
I
Z
E
D
A
N
D
N
E
U
T
R
A
L
L
I
N
E
N
E
U
T
R
A
L
J
U
N
C
T
I
O
N
B
O
X
B
L
W
R
I
N
D
L
O
N
I
N
D
O
O
R
A
I
R
C
L
E
A
N
E
R
H
U
M
D
O
O
R
N
E
U
T
R
A
L
INTEGRATED CONTROL MODULE
T
O
1
1
5
V
A
C
/
1
Ø
/
6
0
H
Z
P
O
W
E
R
S
U
P
P
L
Y
W
I
T
H
1
1
5
V
A
C
H
U
M
-
O
U
T
I
G
N
I
T
E
R
C
IR
C
U
L
A
T
O
R
B
E
F
O
R
E
S
E
R
V
I
C
I
N
G
.
F
L
A
M
E
S
E
N
S
O
R
D
I
S
C
O
N
N
E
C
T
P
O
W
E
R
L
I
N
E
G
N
D
T4
T1
T2
OR
BR
BK
WH
WH
WH
WH
PU
GY
YL
OR
BR
PK
RD
WH
BK
PU
GY
BR
OR
RD
BK
OR
BL
RD
WH
WH
T3
COM
L
I
N
E
N
O
L
I
M
I
T
C
O
N
T
R
O
L
A
U
X
I
L
I
A
R
Y
A
U
T
O
R
E
S
E
T
PK
WARNING:DISCONNECT
TRANSFORMER
40 VA
PU
G
Y
N
N
O
3
1
S
W
I
T
C
H
P
R
E
S
S
U
R
E
L
O
W
F
I
R
E
S
E
N
S
O
R
F
L
A
M
E
P
R
E
S
S
U
R
E
S
W
I
T
C
H
F
R
O
N
T
C
O
V
E
R
C
TO UNIT MUST BE
BL
RD
AND GROUNDED.
1
JUNCTION BOX
WH
SWITCH (PRESS.)
FIELD SPLICE
FIELD GND
3
GN
BL
B
R
WH
N
O
L
I
M
I
T
C
O
N
T
R
O
L
A
U
T
O
R
E
S
E
T
P
R
I
M
A
R
Y
WH
1
OR
3
0
k
B
T
U
A
N
D
4
0
k
B
T
U
)
C
O
N
T
R
O
L
S
(
S
I
N
G
L
E
C
O
N
T
R
O
L
O
N
M
A
N
U
A
L
R
E
S
E
T
R
O
L
L
O
U
T
L
I
M
I
T
W
H
L
PU
GY
BK
S
W
I
T
C
H
A
S
S
E
M
B
L
Y
I
D
B
L
O
W
E
R
T
W
O
-
S
T
A
G
E
P
R
E
S
S
U
R
E
OR
WH
SERVICING. WIRING
EQUIPMENT GND
INT
E
RNAL TO
S
W
I
T
C
H
P
R
E
S
S
U
R
E
H
I
G
H
F
I
R
E
PROT. DEVICE
INTEGRATED CONTROL
PK
PU
PLUG CONNECTION
2
4
B
K
C
D
O
O
R
O
P
E
N
)
(
O
P
E
N
W
H
E
N
D
O
O
R
S
W
I
T
C
H
C
O
M
P
A
R
T
M
E
N
T
B
L
O
W
E
R
SWITCH (TEMP.)
G
N
D
1
BLOWER
CIRCULATOR
JUNCTION
OR
4
0
V
A
Ø
/
6
0
H
Z
D
I
S
C
O
N
N
E
C
T
(
W
H
I
T
E
R
O
D
G
E
R
S
)
G
A
S
V
A
L
V
E
T
W
O
S
T
A
G
E
O
V
E
R
C
U
R
R
E
N
T
C
O
N
N
E
C
T
O
R
2
C
I
R
C
U
I
T
LOW VOLTAGE (24V)
YL
G
N
D
WH
CHASSIS GROUND
2
3
I
G
N
I
T
E
R
S
U
R
F
A
C
E
H
O
T
2
YL
PU
C
2
C
B
L
O
W
E
R
D
R
A
F
T
I
N
D
U
C
E
D
BK
PM
BK
B
L
O
W
E
R
C
O
M
P
A
R
T
M
E
N
T
1
1
5
V
A
C
/
1
OVERCURRENT
BK
HARNESS
ECM MTR
HI
TERMINAL
OR
POWER BEFORE
IGNITER
R
D
BK
T
O
RD
P
O
W
E
R
S
U
P
P
L
Y
W
I
T
H
B
U
R
N
E
R
C
O
M
P
A
R
T
M
E
N
T
P
R
O
T
E
C
T
I
O
N
D
E
V
IC
E
PROPERLY POLARIZED
R
D
B
K
O
R
B
L
LOW VOLTAGE F
I
ELD
HI VOLTA
GE (
115V)
HI VOLTA
GE
FIELD
R
A
P
I
D
=
T
W
I
N
N
I
N
G
E
R
R
O
R
S
T
E
A
D
Y
O
N
=
IN
T
E
R
N
A
L
G
V
E
R
R
O
R
,
M
I
C
R
O
A
N
D
F
R
E
Q
U
E
N
C
Y
C
H
E
C
K
1
F
L
A
S
H
=
F
L
A
M
E
S
E
N
S
E
D
W
H
E
N
N
O
F
L
A
M
E
S
H
O
U
L
D
B
E
P
R
E
S
E
N
T
4
F
L
A
S
H
E
S
=
O
P
E
N
L
I
M
IT
S
W
I
T
C
H
0
4
3
2
1
R
E
D
L
E
D
F
L
A
S
H
C
O
D
E
2
F
L
A
S
H
E
S
=
P
R
E
S
S
U
R
E
S
W
IT
C
H
S
T
U
C
K
C
L
O
S
E
D
/
I
N
D
U
C
E
R
E
R
R
O
R
3
F
L
A
S
H
E
S
=
1
S
T
S
T
A
G
E
P
R
E
S
S
U
R
E
S
W
I
T
C
H
S
T
U
C
K
C
L
O
S
E
D
/
I
N
D
U
C
E
R
E
R
R
O
R
5
F
L
A
S
H
E
S
=
O
P
E
N
R
O
L
L
O
U
T
/O
P
E
N
F
U
S
E
D
E
T
E
C
T
E
D
6
F
L
A
S
H
E
S
=
P
R
E
S
S
U
R
E
S
W
I
T
C
H
C
Y
C
L
E
L
O
C
K
O
U
T
7
F
L
A
S
H
E
S
=
E
X
T
E
R
N
A
L
L
O
C
K
O
U
T
(
R
E
T
R
I
E
S
)
9
6
5
7
8
8
F
L
A
S
H
E
S
=
E
X
T
E
R
N
A
L
L
O
C
K
O
U
T
(
R
E
C
Y
C
L
E
S
)
9
F
L
A
S
H
E
S
+
G
R
O
U
N
D
I
N
G
O
R
R
E
V
E
R
S
E
D
P
O
L
A
R
I
T
Y
1
0
F
L
A
S
H
E
S
=
G
A
S
F
L
O
W
W
I
T
H
N
O
C
A
L
L
F
O
R
H
E
A
T
1
1
F
L
A
S
H
E
S
=
L
I
M
I
T
S
W
I
T
C
H
O
P
E
N
-
B
L
O
W
E
R
F
A
I
L
U
R
E
1
2
F
L
A
S
H
E
S
=
I
G
N
I
T
O
R
R
E
L
A
Y
F
A
I
L
U
R
E
1
1
1
0
1
2
3
D
O
U
B
L
E
F
L
A
S
H
E
S
=
2
N
D
S
T
A
G
E
P
R
E
S
S
U
R
E
S
W
I
T
C
H
S
T
U
C
K
O
P
E
N
/
I
N
D
U
C
E
R
E
R
R
O
R
3
F
L
A
S
H
E
S
=
W
2
P
R
E
S
E
N
T
W
I
T
H
N
O
W
1
2
F
L
A
S
H
E
S
=
N
O
R
M
A
L
O
P
E
R
A
T
I
O
N
W
I
T
H
C
A
L
L
F
O
R
2
N
D
S
T
A
G
E
H
E
A
T
1
F
L
A
S
H
=
N
O
R
M
A
L
O
P
E
R
A
T
I
O
N
W
I
T
H
C
A
L
L
F
O
R
1
S
T
S
T
A
G
E
H
E
A
T
(
W
1
)
2
4
3
1
4
F
L
A
S
H
E
S
=
Y
P
R
E
S
E
N
T
W
I
T
H
N
O
G
C
A
L
L
,
Y
L
O
P
R
E
S
E
N
T
W
I
T
H
N
O
G
C
A
L
L
A
M
B
E
R
L
E
D
F
L
A
S
H
C
O
D
E
R
A
P
I
D
=
L
O
W
F
L
A
M
E
S
E
N
S
E
C
U
R
R
E
N
T
R
A
P
I
D
=
N
O
R
M
A
L
O
P
E
R
A
T
I
O
N
W
I
T
H
C
A
L
L
F
O
R
F
A
N
(
G
)
S
T
E
A
D
Y
O
N
=
S
T
A
N
D
B
Y
1
F
L
A
S
H
=
N
O
R
M
A
L
O
P
E
R
A
T
I
O
N
W
I
T
H
C
A
L
L
F
O
R
L
O
W
S
T
A
G
E
C
O
O
L
(
Y
L
O
+
G
)
0
2
1
G
R
E
E
N
L
E
D
F
L
A
S
H
C
O
D
E
2
F
L
A
S
H
E
S
=
N
O
R
M
A
L
O
P
E
R
A
T
I
O
N
W
I
T
H
C
A
L
L
F
O
R
H
I
G
H
S
T
A
G
E
C
O
O
L
/
O
R
S
I
N
G
L
E
S
T
A
G
E
C
O
O
L
I
N
G
(
Y
+
G
)
0
1
.
S
E
T
H
E
A
T
A
N
T
I
C
I
P
A
T
O
R
O
N
R
O
O
M
T
H
E
R
M
O
S
T
A
T
A
T
0
.
7
A
M
P
S
.
N
O
T
E
S
:
$
2
.
M
A
N
U
F
A
C
T
U
R
E
R
'S
S
P
E
C
I
F
I
E
D
R
E
P
L
A
C
E
M
E
N
T
P
A
R
T
S
M
U
S
T
B
E
U
S
E
D
W
H
E
N
S
E
R
V
I
C
IN
G
.
M
U
S
T
B
E
R
E
P
L
A
C
E
D
I
T
M
U
S
T
B
E
R
E
P
L
A
C
E
D
W
I
T
H
W
I
R
I
N
G
M
A
T
E
R
I
A
L
H
A
V
I
N
G
A
T
E
M
P
E
R
A
T
U
R
E
R
A
T
IN
G
O
F
A
T
L
E
A
S
T
1
0
5
C
.
U
S
E
C
O
P
P
E
R
C
O
N
D
U
C
T
O
R
S
O
N
L
Y
.
4
.
U
N
I
T
M
U
S
T
B
E
P
E
R
M
A
N
E
N
T
L
Y
G
R
O
U
N
D
E
D
A
N
D
C
O
N
F
O
R
M
T
O
N
.
E
.
C
.
A
N
D
L
O
C
A
L
C
O
D
E
S
.
5
.
T
O
R
E
C
A
L
L
T
H
E
L
A
S
T
6
F
A
U
L
T
S
,
M
O
S
T
R
E
C
E
N
T
T
O
L
E
A
S
T
R
E
C
E
N
T
,
D
E
P
R
E
S
S
S
W
I
T
C
H
F
O
R
M
O
R
E
T
H
A
N
2
S
E
C
O
N
D
S
W
H
IL
E
I
N
S
T
A
N
D
B
Y
(
N
O
T
H
E
R
M
O
S
T
A
T
I
N
P
U
T
S
)
3
.
I
F
A
N
Y
O
F
T
H
E
O
R
I
G
I
N
A
L
W
I
R
E
A
S
S
U
P
P
L
I
E
D
W
I
T
H
T
H
E
F
U
R
N
A
C
E
N.E.C. CLASS 2 WIRE

Table of Contents

Related product manuals