EasyManua.ls Logo

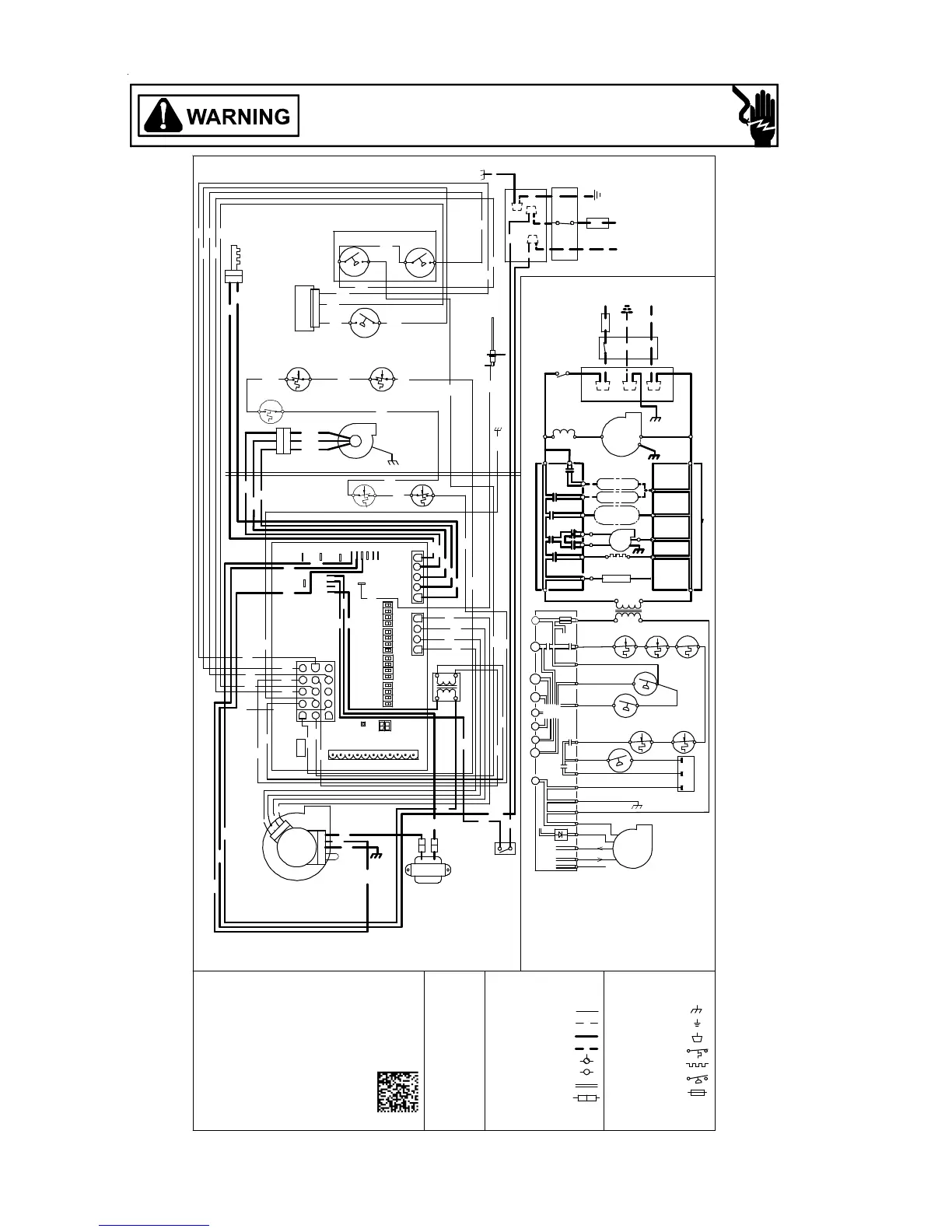
Goodman GMVC960403BNAA - Wiring Diagrams and Safety; High Voltage Wiring Safety; Integrated Control Module Diagram; Blower and Thermostat Wiring

Goodman GMVC960403BNAA
14 pages
Print Icon
To Previous Page IconTo Previous Page
To Previous Page IconTo Previous Page
Loading...
HIGH VOLTAGE!
DISCONNECT ALL POWER BEFORE SERVICING OR INSTALLING THIS
UNIT. MULTIPLE POWER SOURCES MAY BE PRESENT. FAILURE TO
DO SO MAY CAUSE PROPERTY DAMAGE, PERSONAL INJURY OR DEATH.
14
WIRING DIAGRAMS
Wiring is subject to change. Always refer to the wiring diagram on the unit for the most up-to-date wiring.
DM96VC/DC96VC
0
1
4
0
F
0
2
0
0
6
-
A
F
R
O
N
T
C
O
V
E
R
P
R
E
S
S
U
R
E
S
W
I
T
C
H
N
O
C
S
E
E
N
O
T
E
6
A
U
X
F
U
S
E
3
A
M
I
C
R
O
T
O
P
S
2
(
1
2
)
T
R
(
1
1
)
G
H
I
C
T
H
(
4
)
24V THERMOSTAT CONNE CTIONS
V
A
L
V
E
G
A
S
W
2
T
R
A
N
S
F
O
R
M
E
R
H
L
I
(
1
)
Y
2
Y
1
H
L
O
(
1
0
)
G
N
D
(
5
)
O
M
V
L
(
1
3
)
N
O
W
1
C
R
C
O
N
T
R
O
L
S
A
U
T
O
R
E
S
E
T
A
U
X
I
L
I
A
R
Y
L
I
M
I
T
L
I
M
I
T
C
O
N
T
R
O
L
S
M
A
N
U
A
L
R
E
S
E
T
R
O
L
L
O
U
T
P
R
E
S
S
.
S
W
T
I
C
H
H
I
G
H
F
I
R
E
C
P
S
O
(
7
)
S
W
I
T
C
H
L
O
W
F
I
R
E
P
R
E
S
S
.
M
V
H
(
1
4
)
D
E
H
U
M
G
N
D
P
S
1
(
2
)
L
I
M
I
T
C
O
N
T
R
O
L
A
U
T
O
R
E
S
E
T
P
R
I
M
A
R
Y
2
4
V
A
C
N
O
P
M
M
V
C
(
8
)
I
N
T
E
G
R
A
T
E
D
C
O
N
T
R
O
L
M
O
D
U
L
E
C
B
L
W
R
A
I
R
I
N
D
O
O
R
C
I
R
C
U
L
A
T
O
R
T
X
(
3
)
R
X
(
2
)
+
V
D
C
(
1
)
G
N
D
(
4
)
R
T
O
M
I
C
R
O
T
O
T
O
+
V
D
C
E
A
C
H
U
M
I
D
I
F
I
E
R
H
U
M
-
I
N
I
D
N
E
U
T
R
A
L
W
I
R
I
N
G
T
O
U
N
I
T
L
INTEGRATED CONTROL M ODULE
H
O
T
S
U
R
F
A
C
E
I
N
D
U
C
T
O
R
C
O
I
L
G
N
D
B
L
W
R
N
E
U
T
R
A
L
W
A
R
N
I
N
G
:
G
R
O
U
N
D
E
D
.
O
V
E
R
C
U
R
R
E
N
T
P
R
O
T
E
C
T
I
O
N
D
E
V
I
C
E
M
U
S
T
B
E
P
R
O
P
E
R
L
Y
S
W
I
T
C
H
N
E
U
T
R
A
L
E
L
E
C
T
R
O
N
I
C
A
I
R
(
O
N
S
O
M
E
M
O
D
E
L
S
)
I
G
N
I
N
D
H
I
D
I
S
C
O
N
N
E
C
T
F
S
P
O
L
A
R
I
Z
E
D
A
N
D
N
E
U
T
R
A
L
L
I
N
E
N
E
U
T
R
A
L
J
U
N
C
T
I
O
N
B
O
X
B
L
W
R
I
N
D
L
O
N
H
U
M
I
D
I
F
I
E
R
I
N
D
O
O
R
A
I
R
C
L
E
A
N
E
R
H
U
M
D
O
O
R
N
E
U
T
R
A
L
INTEGRATED CONTROL M ODULE
T
O
1
1
5
V
A
C
/
1
Ø
/
6
0
H
Z
P
O
W
E
R
S
U
P
P
L
Y
W
I
T
H
1
1
5
V
A
C
H
U
M
-
O
U
T
I
G
N
I
T
E
R
C
I
R
C
U
L
A
T
O
R
B
E
F
O
R
E
S
E
R
V
I
C
I
N
G
.
F
L
A
M
E
S
E
N
S
O
R
D
I
S
C
O
N
N
E
C
T
P
O
W
E
R
L
I
N
E
G
N
D
OUT
HUM-
IN
HUM-
W
H
/
P
U
C
O
N
T
F
A
N
C
O
O
L
A
F
C
O
O
L
P
R
F
L
T
-
S
T
A
T
D
E
H
U
M
E
N
A
B
L
E
H
E
A
T
A
F
T
R
I
M
%
DIP SWITCHES
T
R
I
M
E
N
A
B
L
E
H
E
A
T
O
F
F
D
L
Y
OR
BR
BK
WH
WH
WH
WH
PU
GY
YL
OR
BR
PK
PK
W
H
W
H
W
H
BK
BK
RD
WH
BK
BR
P
U
G
Y
Y
L
GY
GY
B
R
O
R
P
K
GN
OR
OR
OR
R
D
B
K
G
Y
B
L
RD
WH
WH
9
8
1
2
1
1
5
1
1
1
4
7
2
5
4
1
3
3
6
1
0
DEH UM
W2
C
1
Y1
2
R
W1
MODU LE
CONTROL
INTEGRATED
TWO- S TAGE
EAC
HUM
Y2
CONNECTOR
4 CIRCUIT MOTOR
5 CIRCUIT CONNECTOR
G
N
O
T
E
5
S
E
E
B
L
O
L
E
D
'
S
D
I
A
G
N
O
S
T
I
C
4
F
S
1
BK
5
3
2
4
V
T
H
E
R
M
O
S
T
A
T
C
O
N
N
E
C
T
I
O
N
S
N
E
U
T
R
A
L
1
3
2
L
I
N
E
F
U
S
E
4
2
3
A
2
4
V
N
O
2
1
.
S
E
T
H
E
A
T
A
N
T
I
C
I
P
A
T
O
R
O
N
R
O
O
M
T
H
E
R
M
O
S
T
A
T
A
T
0
.
7
A
M
P
S
.
L
I
M
I
T
C
O
N
T
R
O
L
A
U
X
I
L
I
A
R
Y
A
U
T
O
R
E
S
E
T
P
K
W
A
R
N
I
N
G
:
D
I
S
C
O
N
N
E
C
T
T
R
A
N
S
F
O
R
M
E
R
4
0
V
A
PU
G
Y
N
N
O
3
BR
4
.
U
N
I
T
M
U
S
T
B
E
P
E
R
M
A
N
E
N
T
L
Y
G
R
O
U
N
D
E
D
A
N
D
C
O
N
F
O
R
M
T
O
N
.
E
.
C
.
A
N
D
L
O
C
A
L
C
O
D
E
S
.
C
O
L
O
R
C
O
D
E
S
:
1
E
S
W
I
T
C
H
P
R
E
S
S
U
R
L
O
W
F
I
R
E
S
E
N
S
O
R
F
L
A
M
E
G
N
G
R
E
E
N
G
R
P
R
E
S
S
U
R
E
S
W
I
T
C
H
F
R
O
N
T
C
O
V
E
R
C
V
A
C
T
O
U
N
I
T
M
U
S
T
B
E
1
B
L
RD
A
N
D
G
R
O
U
N
D
E
D
.
1
1
1
5
W
H
S
W
I
T
C
H
(
P
R
E
S
S
.
)
F
I
E
L
D
S
P
L
I
C
E
F
I
E
L
D
G
N
D
L
O
W
V
O
L
T
A
G
E
F
I
E
L
D
3
GN
BL
B
R
WH
N
O
L
I
M
I
T
C
O
N
T
R
O
L
A
U
T
O
R
E
S
E
T
P
R
I
M
A
R
Y
W
H
1
O
R
R
D
R
E
D
G
Y
G
R
A
Y
4
0
k
B
T
U
)
C
O
N
T
R
O
L
S
(
S
I
N
G
L
E
C
O
N
T
R
O
L
O
N
M
A
N
U
A
L
R
E
S
E
T
R
O
L
L
O
U
T
L
I
M
I
T
W
H
L
P
U
N
O
T
E
S
:
G
Y
P
K
B
K
5
S
W
I
T
C
H
A
S
S
E
M
B
L
Y
I
D
B
L
O
W
E
R
T
W
O
-
S
T
A
G
E
P
R
E
S
S
U
R
E
O
R
W
H
S
E
R
V
I
C
I
N
G
.
W
I
R
I
N
G
E
Q
U
I
P
M
E
N
T
G
N
D
(
O
N
S
O
M
E
M
O
D
E
L
S
)
I
N
T
E
R
N
A
L
T
O
S
W
I
T
C
H
P
R
E
S
S
U
R
E
H
I
G
H
F
I
R
E
P
R
O
T
.
D
E
V
I
C
E
I
N
T
E
G
R
A
T
E
D
C
O
N
T
R
O
L
PK
C
.
U
S
E
C
O
P
P
E
R
C
O
N
D
U
C
T
O
R
S
O
N
L
Y
.
$
A
T
L
E
A
S
T
1
0
5
I
T
M
U
S
T
B
E
R
E
P
L
A
C
E
D
W
I
T
H
W
I
R
I
N
G
M
A
T
E
R
I
A
L
H
A
V
I
N
G
A
T
E
M
P
E
R
A
T
U
R
E
R
A
T
I
N
G
O
F
3
.
I
F
A
N
Y
O
F
T
H
E
O
R
I
G
I
N
A
L
W
I
R
E
A
S
S
U
P
P
L
I
E
D
W
I
T
H
T
H
E
F
U
R
N
A
C
E
M
U
S
T
B
E
R
E
P
L
A
C
E
D
,
P
U
P
L
U
G
C
O
N
N
E
C
T
I
O
N
2
4
B
K
C
D
O
O
R
O
P
E
N
)
(
O
P
E
N
W
H
E
N
D
O
O
R
S
W
I
T
C
H
C
O
M
P
A
R
T
M
E
N
T
B
L
O
W
E
R
S
W
I
T
C
H
(
T
E
M
P
.
)
G
N
D
1
B
L
O
W
E
R
C
I
R
C
U
L
A
T
O
R
P
U
P
U
R
P
L
E
J
U
N
C
T
I
O
N
O
R
4
0
V
A
P
K
P
I
N
K
Ø
/
6
0
H
Z
D
I
S
C
O
N
N
E
C
T
(
W
H
I
T
E
R
O
D
G
E
R
S
)
G
A
S
V
A
L
V
E
T
W
O
S
T
A
G
E
2
.
M
A
N
U
F
A
C
T
U
R
E
R
'
S
S
P
E
C
I
F
I
E
D
R
E
P
L
A
C
E
M
E
N
T
P
A
R
T
S
M
U
S
T
B
E
U
S
E
D
W
H
E
N
S
E
R
V
I
C
I
N
G
.
O
V
E
R
C
U
R
R
E
N
T
H
I
V
O
L
T
A
G
E
(
1
1
5
V
)
C
O
N
N
E
C
T
O
R
2
C
I
R
C
U
I
T
L
O
W
V
O
L
T
A
G
E
(
2
4
V
)
Y
L
G
N
D
V
A
C
CHASSIS GROUND
2
3
4
I
G
N
I
T
E
R
S
U
R
F
A
C
E
H
O
T
2
G
N
D
B
K
B
L
A
C
K
S
E
T
U
P
I
S
D
O
N
E
W
I
T
H
I
N
C
O
M
M
U
N
I
C
A
T
I
N
G
T
H
E
R
M
O
S
T
A
T
)
L
E
G
A
C
Y
M
O
D
E
)
O
R
I
N
D
E
P
E
N
D
E
N
T
L
Y
F
R
O
M
H
E
A
T
C
A
L
L
(
C
O
M
M
U
N
I
C
A
T
I
N
G
M
O
D
E
O
N
L
Y
-
T
E
R
M
I
N
A
L
S
T
O
R
U
N
H
U
M
I
D
I
F
I
E
R
D
U
R
I
N
G
H
E
A
T
C
A
L
L
(
C
O
M
M
U
N
I
C
A
T
I
N
G
M
O
D
E
O
R
H
E
A
T
C
A
L
L
(
C
O
M
M
U
N
I
C
A
T
I
N
G
O
R
L
E
G
A
C
Y
M
O
D
E
S
)
.
U
S
E
H
U
M
-
I
N
A
N
D
H
U
M
-
O
U
T
6
.
H
U
M
I
D
I
F
I
E
R
I
N
S
T
A
L
L
A
T
I
O
N
O
P
T
I
O
N
S
:
U
S
E
H
U
M
T
E
R
M
I
N
A
L
T
O
R
U
N
H
U
M
I
D
I
F
I
E
R
D
U
R
I
N
G
F
O
R
M
O
R
E
T
H
A
N
2
S
E
C
O
N
D
S
W
H
I
L
E
I
N
S
T
A
N
D
B
Y
(
N
O
T
H
E
R
M
O
S
T
A
T
I
N
P
U
T
S
)
5
.
T
O
R
E
C
A
L
L
T
H
E
L
A
S
T
6
F
A
U
L
T
S
,
M
O
S
T
R
E
C
E
N
T
T
O
L
E
A
S
T
R
E
C
E
N
T
,
D
E
P
R
E
S
S
S
W
I
T
C
H
YL
P
U
C
I
N
D
U
C
T
O
R
C
O
I
L
B
L
B
L
U
E
2
C
B
L
O
W
E
R
D
R
A
F
T
I
N
D
U
C
E
D
BK
W
H
W
H
I
T
E
P
M
B
K
2
4
B
L
O
W
E
R
C
O
M
P
A
R
T
M
E
N
T
1
1
5
V
A
C
/
1
O
V
E
R
C
U
R
R
E
N
T
BK
B
R
B
R
O
W
N
Y
L
Y
E
L
L
O
W
3
H
I
V
O
L
T
A
G
E
F
I
E
L
D
H
A
R
N
E
S
S
E
C
M
M
T
R
O
R
O
R
A
N
G
E
H
I
T
E
R
M
I
N
A
L
OR
P
O
W
E
R
B
E
F
O
R
E
I
G
N
I
T
E
R
R
D
B
K
T
O
RD
P
O
W
E
R
S
U
P
P
L
Y
W
I
T
H
B
U
R
N
E
R
C
O
M
P
A
R
T
M
E
N
T
P
R
O
T
E
C
T
I
O
N
D
E
V
I
C
E
P
R
O
P
E
R
L
Y
P
O
L
A
R
I
Z
E
D
B
K
B
L
G
Y
R
D
W
H
B
K
JUNCTION BOX
GR
GND
GND

Related product manuals