EasyManua.ls Logo

GORBEL GLC Series - Page 11

Default Icon
28 pages
Print Icon
To Next Page IconTo Next Page
To Next Page IconTo Next Page
To Previous Page IconTo Previous Page
To Previous Page IconTo Previous Page
Loading...
STEP 5 - BRIDGE AND END TRUCK INSTALLATION (CONTINUED)
Standard End Trucks (continued)
250# - 500# Aluminum Bridges
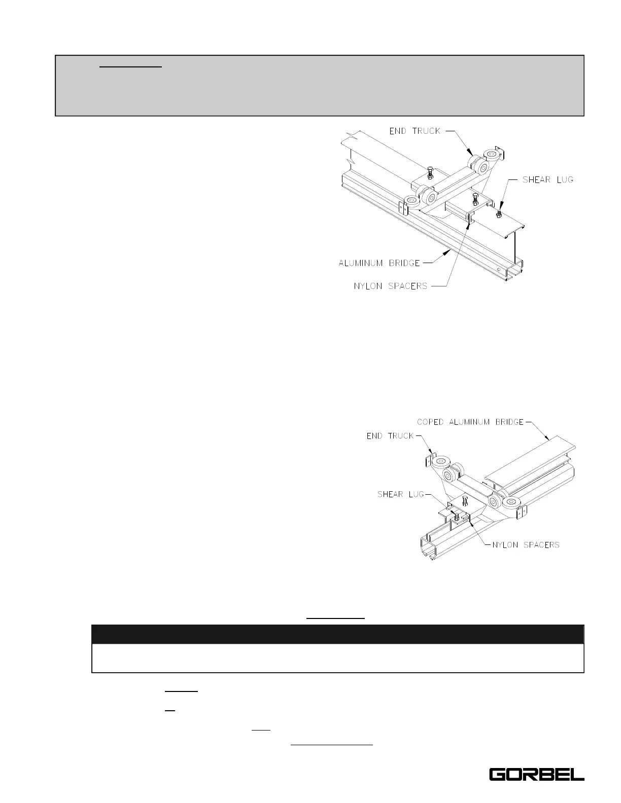
5.7 Slide an end truck over festooning end of
bridge (refer to the General Arrangement
Drawing for exact end truck location) and
clamp into place (diagram 5B).
Note: The festooning end of the bridge will
have a hole that is inset the same or greater
distance from the end of the bridge than the
hole in the opposite end of the bridge.
5.8 Slide and position the non-clamping end
truck on the other end of bridge (refer to the
General Arrangement Drawing for exact
location).
5.9 Go to Step 5.12.
1000# - 2000# Aluminum Bridges & 250# - 500# Coped Aluminum Bridges
5.10 Slide an end truck over coped brackets on the
festooning end of bridge (refer to the General
Arrangement Drawing for exact end truck
location) and clamp into place (diagram 5C).
Note: The festooning end of the bridge will have
an end stop hole that is inset the same or greater
distance from the end of the bridge than the end
stop hole in the opposite end of the bridge.
5.11 Slide and position the non-clamping end truck on
the other end of bridge (refer to the General
Arrangement Drawing for exact location).
5.12 At both ends of bridge, install a shear lug bolt in
hole at top of bridge (or in the coped brackets)
to prevent bridge from sliding out of end trucks
(diagrams 5B & 5C).
Note: Install bolts with head of bolt on underside of top flange with threads pointing up.
5.13 If a tow arm is not being utilized on the end truck, go to Step 5.37, on page 13.
If a tow arm is being utilized on the end truck, go to Step 5.14, on page 10.
Note: Festoon tow arms are not recommended for use on 4000# systems or systems
with extended end trucks. They are not necessary on systems with festoon trolleys.
TIP: ONLY ONE
end truck is clamped to the bridge: the other is not. The clamping end truck
must be oriented with the festooning side of the track (refer to Step 8, on page 18 for
festooning). The non-clamping end truck allows adjustment for any runway misalignment.
TIP:
Make sure nylon spacers are attached to end truck before installing end truck on bridge.
Æ
Æ
Æ
Diagram 5B. Installing clamping end truck on aluminum
bridge. See TIP.
Diagram 5C. Installing clamping end truck on
coped aluminum bridge. See TIP.
Æ
WARNING
Failure to install shear lug bolt assemblies may result in the bridge, hoist, and load falling
to the floor.
9
9/05