EasyManua.ls Logo

GORBEL GLC Series - Step 8 - Festooning Installation

Default Icon
28 pages
Print Icon
To Next Page IconTo Next Page
To Next Page IconTo Next Page
To Previous Page IconTo Previous Page
To Previous Page IconTo Previous Page
Loading...
STEP 8 - FESTOONING INSTALLATION
8.1 If you are using:
Festoon Gliders (Steel Bridges / Runways only)
If you have a monorail go to Step 8.4.
8.2 Slide festoon gliders through end
of bridge that corresponds with
festooning on runway. Space
festoon gliders every 3’-0” along
bridge.
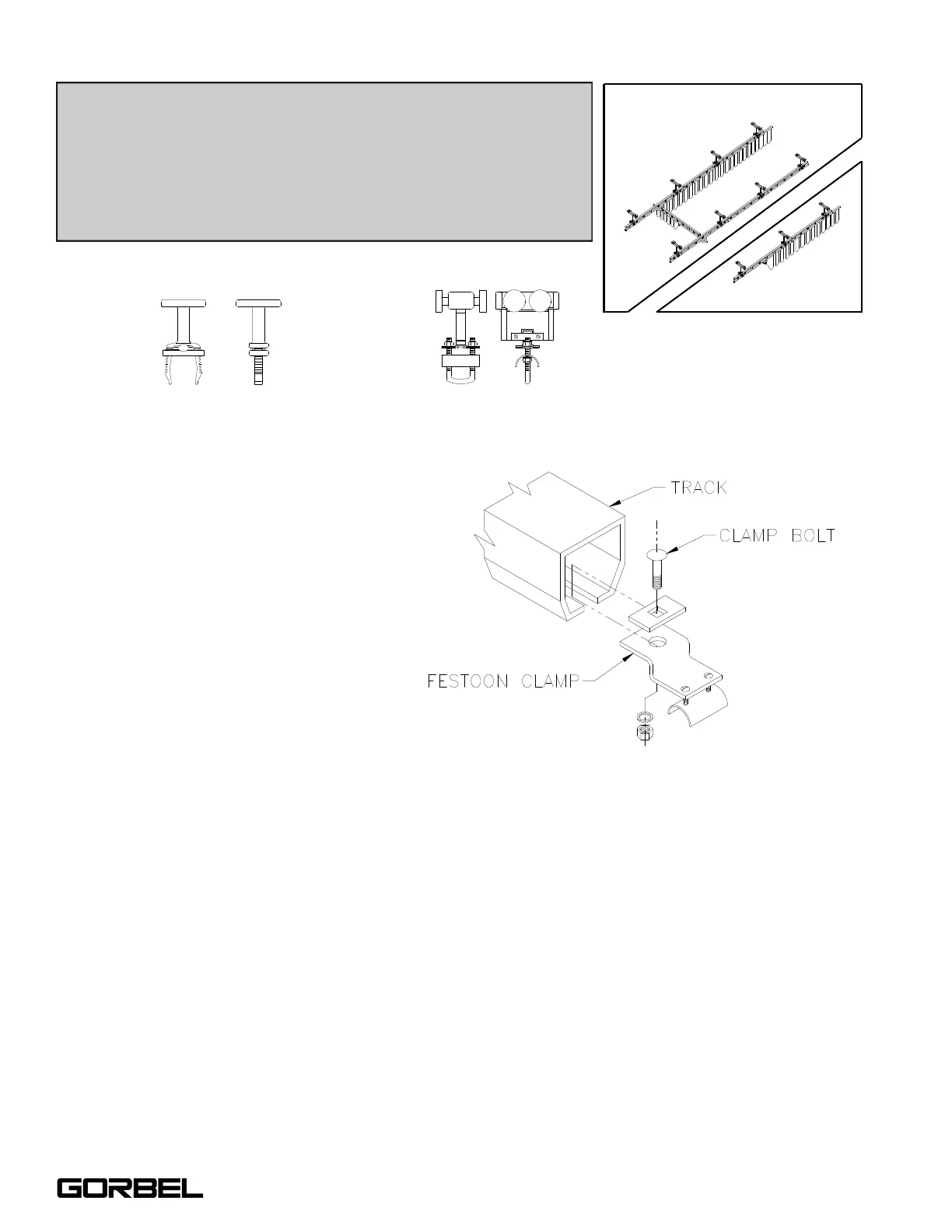
8.3 Slide festoon clamp into place at
festooning end of bridge and
tighten clamp bolt (diagram 8A).
8.4 Slide festoon gliders into festoon
stack section end of
runway/monorail track (on
festooning side of
runway/monorail). Space festoon
gliders every 6’-0” along
runway/monorail, between bridge
and festoon stack section.
8.5 Slide festoon clamp into end of runway/monorail/festoon stack section (diagram 8A).
Tighten clamp bolt until lockwasher is flat.
8.6 Proceed to Step 8.15, on page 20.
festoon gliders, go to Step 8.2 festoon trolleys, go to Step 8.7
Diagram 8A. Installing festoon clamp on runway or bridge.
18
9/05
Bridge Crane
TIP: Festoon gliders are comprised of a glider body (with
upper saddle) and lower saddle (a separate piece that
clips onto the glider body).
TIP: Enough carriers (festoon gliders or festoon trolleys are
supplied to support festoon conductor every 6’ on
runway/monorail and every 3’ on bridges.
Note: Every 6’ on vacuum hose trolley.
Monorail
Æ
Æ