EasyManua.ls Logo

GRE 777590 - Page 44

GRE 777590
188 pages
Print Icon
To Next Page IconTo Next Page
To Next Page IconTo Next Page
To Previous Page IconTo Previous Page
To Previous Page IconTo Previous Page
Loading...
- 41 -
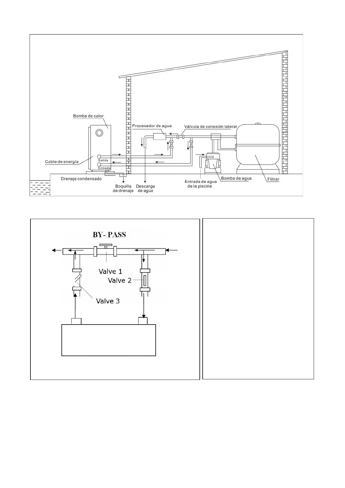
3.5 Disposición típica
Nota: Esta disposición es sólo un ejemplo ilustrativo.
3.6 Ajuste del bypass
El funcionamiento óptimo de la bomba de calor se produce cuando la presión del gas es de 22 ±2 bar.
Esta presión se puede leer en el medidor de presión junto al panel del controlador. Bajo estas condiciones,
el flujo de agua a través de la unidad también es óptimo.
Nota: El funcionamiento sin bypass o con un ajuste incorrecto del bypass puede resultar en un
funcionamiento subóptimo de la bomba de calor y posiblemente daños en la bomba de calor, lo
que hace que la garantía nula.
Salida Entrada
Bomba de calor
Utilice el siguiente procedimiento para
ajustar el bypass:
Válvulas completamente abiertas
Cerrar lentamente la válvula 1
hasta que la presión del agua se
incremente en aproximadamente
100 a 200 g
Cierre la válvula 3
aproximadamente a la mitad para
ajustar la presión del gas en el
sistema de refrigeración
Si la pantalla muestra "ON" o
código de error EE3, cierre paso a paso
la válvula 1, para aumentar el flujo de
agua y parar
cuando el código
desaparezca
A la piscina De la piscina

Related product manuals