EasyManua.ls Logo

Gree FP-51XD/A-K

Gree FP-51XD/A-K
28 pages
To Next Page IconTo Next Page
To Next Page IconTo Next Page
To Previous Page IconTo Previous Page
To Previous Page IconTo Previous Page
Loading...
Cassette Type FCU
8
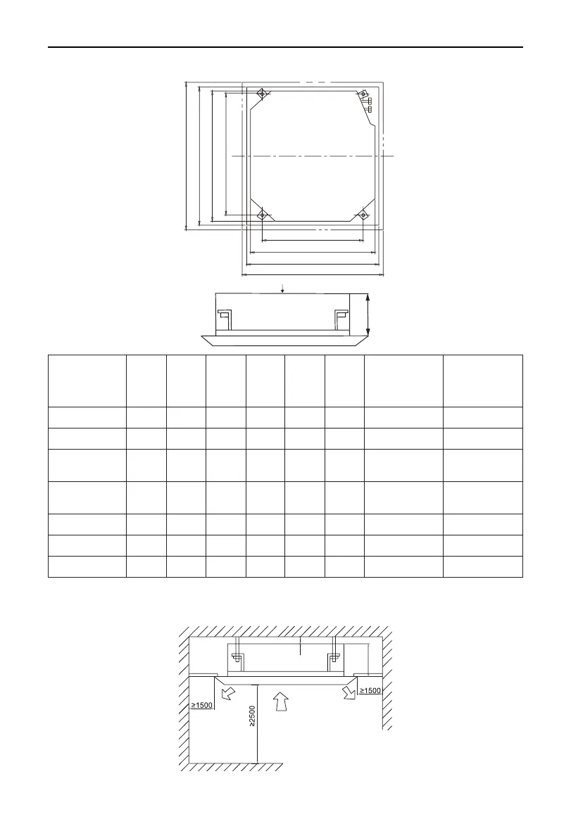
2.3 Outline Dimensions
C (Indoor unit)
E (Bolts spacing)
B (Ceiling opening)
A (Decarative front panel)
C (Indoor unit)
D (Bolts spacing)
B (Ceiling opening)
A (Decarative front panel
More than 20mm
F
Models
A
(mm)
B
(mm)
C
(mm)
D
(mm)
E
(mm)
F
(mm)
Size of
Condensate
Pipe
(mm)
Size of Inlet/
Outlet Pipe
(mm)
FP-51XD/A-K
FP-68XD/A-K
670 596 592 570 570 240 Φ26x3 G3/4
FP-85XD/B-T
FP-102XD/B-T
950 890 840 680 780 190 Φ26x3 G3/4
FP-125XD/B-T
FP-140XD/B-T
FP-160XD/B-T
950 890 840 680 780 240 Φ26x3 G3/4
FP-180XD/B-T
FP-200XD/B-T
FP-200XD/D-K
950 890 840 680 780 320 Φ26x3 G3/4
FP-68XDT/B-K
FP-85XDT/B-K
950 890 840 680 780 190 Φ26x3 G3/4
FP-125XDT/
B-K
950 890 840 680 780 240 Φ26x3 G3/4
FP-180XDT/
B-K
950 890 840 680 780 320 Φ26x3 G3/4
Notes:
(E)Models applicable to EU.
2.4 Installation and Maintenance Space
H
>20
Unit:mm
H indicates the depth of the unit.

Other manuals for Gree FP-51XD/A-K

Related product manuals