EasyManua.ls Logo

Gree GKH42K3FI - Page 124

Gree GKH42K3FI
186 pages
To Next Page IconTo Next Page
To Next Page IconTo Next Page
To Previous Page IconTo Previous Page
To Previous Page IconTo Previous Page
Loading...
U-Match Series DC Inverter Service Manual
121
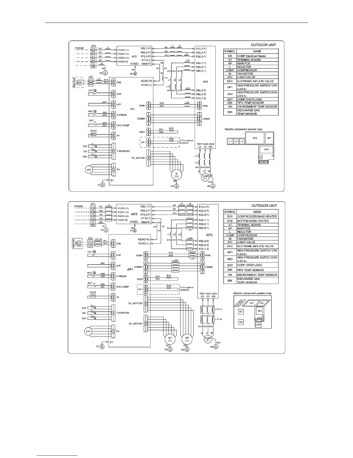
Model: GUHD36NM3FO
Model: GUHD42NM3FO

Table of Contents

Other manuals for Gree GKH42K3FI

Related product manuals