EasyManua.ls Logo

Gree GMV-N36G/A3A-K - Page 101

Gree GMV-N36G/A3A-K
276 pages
To Next Page IconTo Next Page
To Next Page IconTo Next Page
To Previous Page IconTo Previous Page
To Previous Page IconTo Previous Page
Loading...
GREE GMV5 INDOOR UNIT SERVICE MANUAL
96
Model:
GMV-ND71PLS/A-T~GMV-ND140PLS/A-T
hua
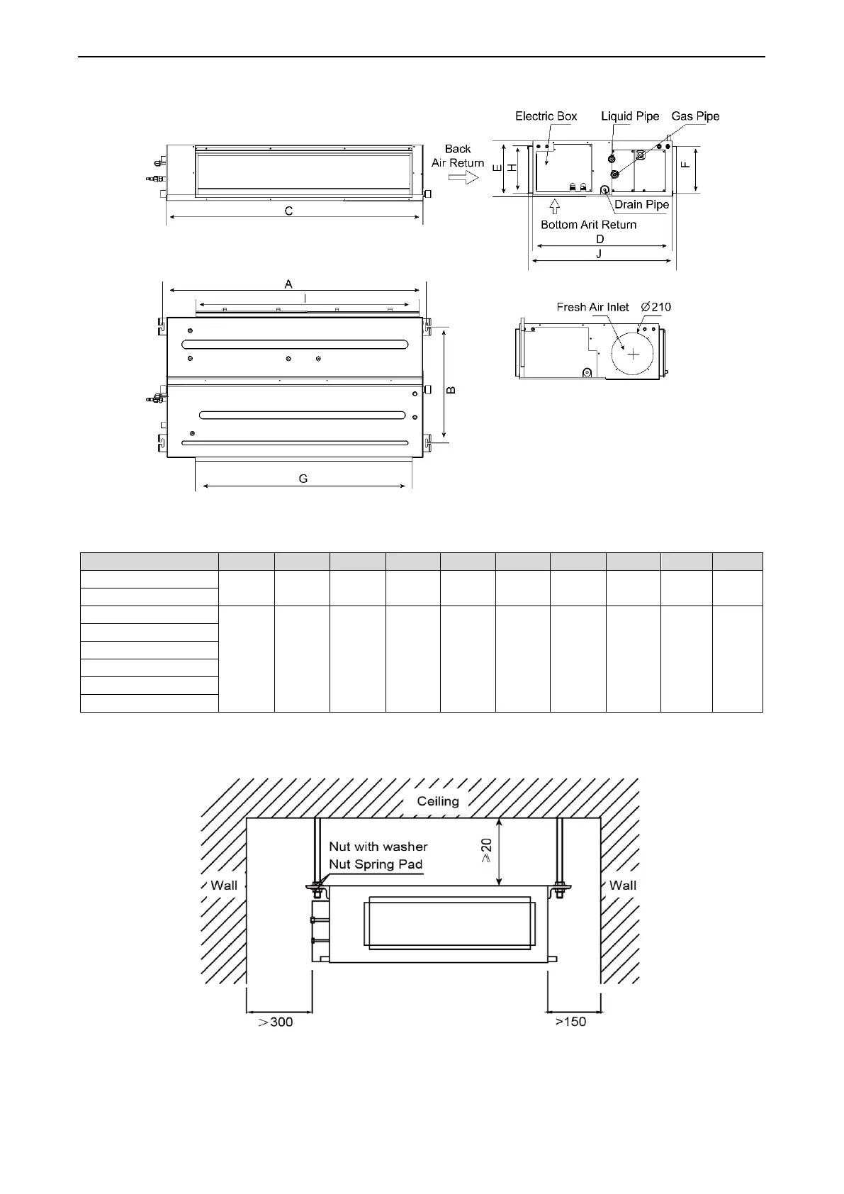
Below are dimensions of A, B, C etc. for different models:
Unit:mm
Model
A
B
C
D
E
F
G
H
I
J
GMV-ND71PLS/A-T
1236
565
1200
655
260
222
1016
220
1050
695
GMV-ND80PLS/A-T
GMV-ND90PLS/A-T
1379
565
1340
655
260
207
1153
220
1188
716
GMV-ND100PLS/A-T
GMV-ND112PLS/A-T
GMV-ND125PLS/A-T
GMV-ND140PLS/A-T
GMV-ND63PLS/A-T
3.3.2 Installation space
Unit: mm
3.3.3 Installation notice
The unit shall be installed by the professional personnel according to this installation instruction to
ensure proper use.

Table of Contents

Other manuals for Gree GMV-N36G/A3A-K

Related product manuals