EasyManua.ls Logo

Gree GMV-N36G/A3A-K - Page 125

Gree GMV-N36G/A3A-K
276 pages
To Next Page IconTo Next Page
To Next Page IconTo Next Page
To Previous Page IconTo Previous Page
To Previous Page IconTo Previous Page
Loading...
GREE GMV5 INDOOR UNIT SERVICE MANUAL
120
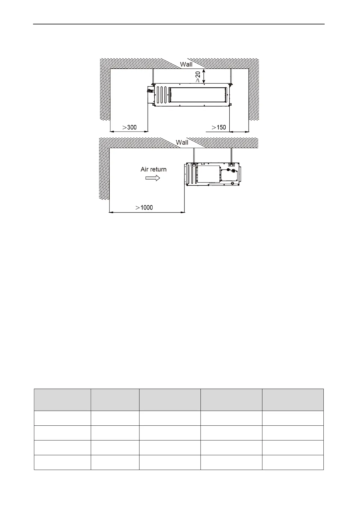
3.13.2 Installation space
Model:
GMV-ND22PHS/B-T~ GMV-ND160PHS/B-T
3.13.3 Installation notice
The unit shall be installed by the professional personnel according to this installation instruction
to ensure proper use.
Please contact the local Gree appointed service center before installation. Any
malfunctioncaused by the unit that is not installed by the Gree appointed service center would
probably not be dealt with on time because of the inconvenience of the business contact.
It should be guided under the professional personnel when the air conditioner unit is moved to
other place.
Installation of the unit must be in accordance with National Electric Codes and local regulations.
Improper installation will affect unit’s performance, so do not install the unit by yourself. Please
contact local dealer to arrange professional technicians for the installation.
Do not connect power until all installation work is finished.
If the supply cord is damaged, it must be replaced by the manufacturer or its service agent or a
similarly qualified person in order to avoid a hazard.
3.13.4 Selection of air switch and power cord
Model
Power Cord Size
Air Switch apacity
(A)
Minimum Sectional Area
of Ground Wire
(mm
2
/AWG)
Minimum Sectional Area
of Power Cord
(mm
2
/AWG)
GMV-ND22PHS/B-T
220-240V/50Hz
208-230V/60Hz
6
1.0/AWG18
1.0/AWG18
GMV-ND25PHS/B-T
220-240V/50Hz
208-230V/60Hz
6
1.0/AWG18
1.0/AWG18
GMV-ND28PHS/B-T
220-240V/50Hz
208-230V/60Hz
6
1.0/AWG18
1.0/AWG18
GMV-ND32PHS/B-T
220-240V/50Hz
208-230V/60Hz
6
1.0/AWG18
1.0/AWG18

Table of Contents

Other manuals for Gree GMV-N36G/A3A-K

Related product manuals