EasyManua.ls Logo

GrowSpan 2000 Series - End Frame Diagram: Door Frame (B)

Default Icon
17 pages
Print Icon
To Next Page IconTo Next Page
To Next Page IconTo Next Page
To Previous Page IconTo Previous Page
To Previous Page IconTo Previous Page
Loading...
6
GK2EW24120B_G Revision date: 12.06.19
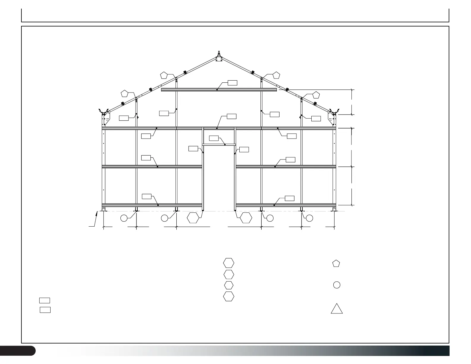
End Frame Diagram: Door Frame (B)
3'-5" 4'-2" 8'-10" 4'-2" 3'-5"
4'-0"
4'-0"
1'-5"
2'-7"
B B BB
GT
T
T
C1
OPENING
ROUGH
DOOR
VERIFY
J1
T
DB
H1
J1
TOP OF POST
GROUND LEVEL
GT
GT
GT
C2
C1
C2
GT
GT
GT
DB
T
GT
NOTES:
A
LL DIMENSIONS ARE FROM CENTER TO CENTER UNLESS
OTHERWISE NOTED.
SEE DOOR KIT INSTRUCTIONS FOR ADDITIONAL INSTALLATION
INFORMATION (IF APPLICABLE).
GIRTS/FRAMING CHANNEL MAY REQUIRE FIELD CUTTING TO FIT.
111635
(14 GA PROFILE)
GT
GIRT/DOOR FRAME
ENDWALL COLUMNS:
H1
105488072
(2" C-CHANNEL)
DB
QH1330
(FRAME BRACKET)
C1
C2
PG2X2EC14L16200
(2" x 2" 14 GA 1-PLY SQUARE TUBE)
PG2X2EC14L13800
(2" x 2" 14 GA 1-PLY SQUARE TUBE)
105488120
(2" C-CHANNEL)
J1
COLUMN BOTTOM BASE PLATE:
B 111817
(BASE PLATE)
COLUMN TOP CONNECTION PLATE:
T
PGBRKAAS01
(CONNECTION PLATE)
QH1070
(PIPE STRAP)
LB
LATERAL BRACING BRACKET:
GRT2X2G16L144 (16 GA PROFILE)

Other manuals for GrowSpan 2000 Series