EasyManua.ls Logo

hager HR534 - Page 6

hager HR534
6 pages
Print Icon
To Previous Page IconTo Previous Page
To Previous Page IconTo Previous Page
Loading...
Ajuste dos parâmetros do relé principal
(t
d
,/
d
and std/+)
-
AJUSTE DO ATRASO DE DISPARO, t
d
.
Ao pressionar o botão td aparece no ecrã a
mensagem
AI1_HR534_T3_01.eps
PROGREC
+
NO
e dois valores. O mais pequeno
indica o valor actualmente congurado e o maior os
valores a congurar, que devemos ir visualizando
carregando no botã
AI1_HR534_T3_01.eps
PROGREC
+
NO
. O valor escolhido ca
validado e congurado, quando é visualizada a
mensagem SAVE.
-
AJUSTE DA SENSIBILIDADE, I
d
.
Ao carregar no botão Id, realizamos da mesma
forma as operações de ajuste anteriormente
explicadas. A mensagem OFF conrma que o canal
está desactivado.
-
AJUSTE DE CONTACTO DO RELÉ, std/+.
Ao pressionar o botão (Std), congura-se a
polaridade do contacto de disparo. Aparece (Std)
AI1_HR534_T3_01.eps
PROGREC
+
NO
display e (+)
AI1_HR534_T3_01.eps
PROGREC
+
NO
AI1_HR534_T3_01.eps
PROGREC
+
NO
(NF).
-
AJUSTE DO RESET, REC. Usar apenas no caso
da sinalização de defeito. Não se deve utilizar como
protecção diferencial. Ao pressionar o botão
AI1_HR534_T3_01.eps
PROGREC
+
NO
,
o equipamento efectua um reset automático quando
a corrente de fuga atinge um valor inferior ao do
programado.
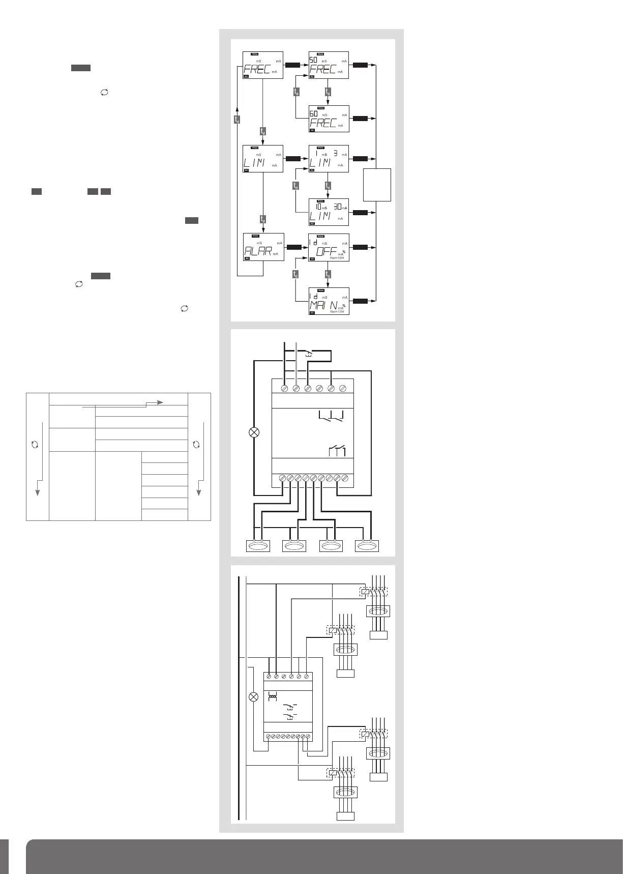
Ajustes das congurações
Ao efectuar um toque longo no botão PROG
activamos o menu
AI1_HR534_T3_01.eps
PROGREC
+
NO
. Neste menu ao premir a
tecla PROG e
AI1_HR534_T3_01.eps
PROGREC
+
NO
iremos mover e alterar as
congurações dos diferentes submenus de
programação. Ao pressionar o botão PROG
navegamos pelos submenus e ao pressionar
AI1_HR534_T3_01.eps
PROGREC
+
NO
iremos visualizar os valores que queremos escolher e
seleccionar. Para aceitar esse valor teremos que
pressionar o botão PROG.
O equipamento congura o valor ao visualizar “SAVE
no display e posteriormente sai do modo
de programação. Se o teclado car inactivo durante
um certo tempo, o equipamento sai do modo de
programação e é visualizado “EXIT” no display. A
conguração não foi alterada.
botão
AI1_HR534_T3_01.eps
PROGREC
+
NO
botão PROG
botão
AI1_HR534_T3_01.eps
PROGREC
+
NO
FREC 50 Hz
60 Hz
LIM 10 s, 30 A
1 s, 3 A
ALAR Id OFF
50
60
70
80
MAIN
No menu ALAR conguramos o valor de pré-alarme,
que está em função do valor da corrente de disparo
(Id) de cada canal (50, 60,70 e 80%). Com OFF a
função de pré-alarme é desactivada e com MAIN
o valor do pré-alarme é igual a 100% de I
d
.
Características técnicas
- Relé: Electrónico tipo A ≤ 3 A - tipo AC > 3 A. Com
ltro para correntes de alta-frequência.
- Tipo de rearme: Manual, com o pressionar do botão
RESET ou retirando a alimentação.
- Tensão de alimentação nominal:
230 V. (+/- 20% ) 50/60 Hz, 6 VA
- Temperatura de funcionamento: -10/+50 °C
- Ligações:
Secção do cabo permitida: 0,127 - 2,082 mm²
Binário de aperto: 0,5-0,6 N.m
Comprimento do cabo a descarnar: 7 mm
Chave de fendas recomendada: Plana 2,5 mm
- Características dos contactos de saída:
(13-14-15 e 7-8-9)
Corrente Nominal/Máxima instantânea: 6/10 A.
Tensão Nominal/Máxima de comutação: 230/250 V.
Carga Nominal em AC: 2500 VA
Contactos protegidos por varistores.
(Tensão máxima: 275 Va.c.)
- Características do relé de estado sólido
de sinalização: 1 - 10
Tensão Nominal Máxima: 275 V
Consumo máxima: 230Vac 5VA
- Características dos contactos de entrada para o
disparo/rearme externo: 10-12
Entrada mediante acoplador óptico
Tensão máxima: 230V; 0,7W
- Normas: IEC 60 755:2008, IEC 60947-2:2006 anexo
M, IEC 61 543, IEC 61008-1:2010,
IEC 61000-6-1:2005 & IEC 61000-6-3:2006
AI1_HR534_T1_05.eps
PROG
PROG
PROG
PROG
PROG
PROG
PROG
PROG
PROG
Gravar
Alterações
Sair do
Menu
10
S1
S2
S1
S2
S1
S2
S1
S2
T4 T3 T2 T1
11 12 13 14 15
123456789
LN
à
AI1_HR534_T2_04.eps
CHARGE
L1 L2 L3 N
CHARGE
L1 L2 L3 N
CHARGE
L1 L2 L3 N
CHARGE
L1 L2 L3 N
T4
T3
T2
T1
à Ä
Reset
Test
10 11 12 13 14 15
123456789
Disparo por BOBINA DE EMISSÃO/
RearmeAutomático mediante corte
de alimentação
LN
Sinalização de pré-alarme
ON / OFF esterno
www.hager.com 6H5058.dOCOM 1189556 Hager 02.14

Related product manuals