EasyManua.ls Logo

Haier AB09CS1ERA - Installation Procedure; WIRING; WARNING; Pay Special Care to the Following and Check After Installation

Haier AB09CS1ERA
60 pages
To Next Page IconTo Next Page
To Next Page IconTo Next Page
To Previous Page IconTo Previous Page
To Previous Page IconTo Previous Page
Loading...
>_]]VbTZR\ <Zb >_^UZdZ_^Vb
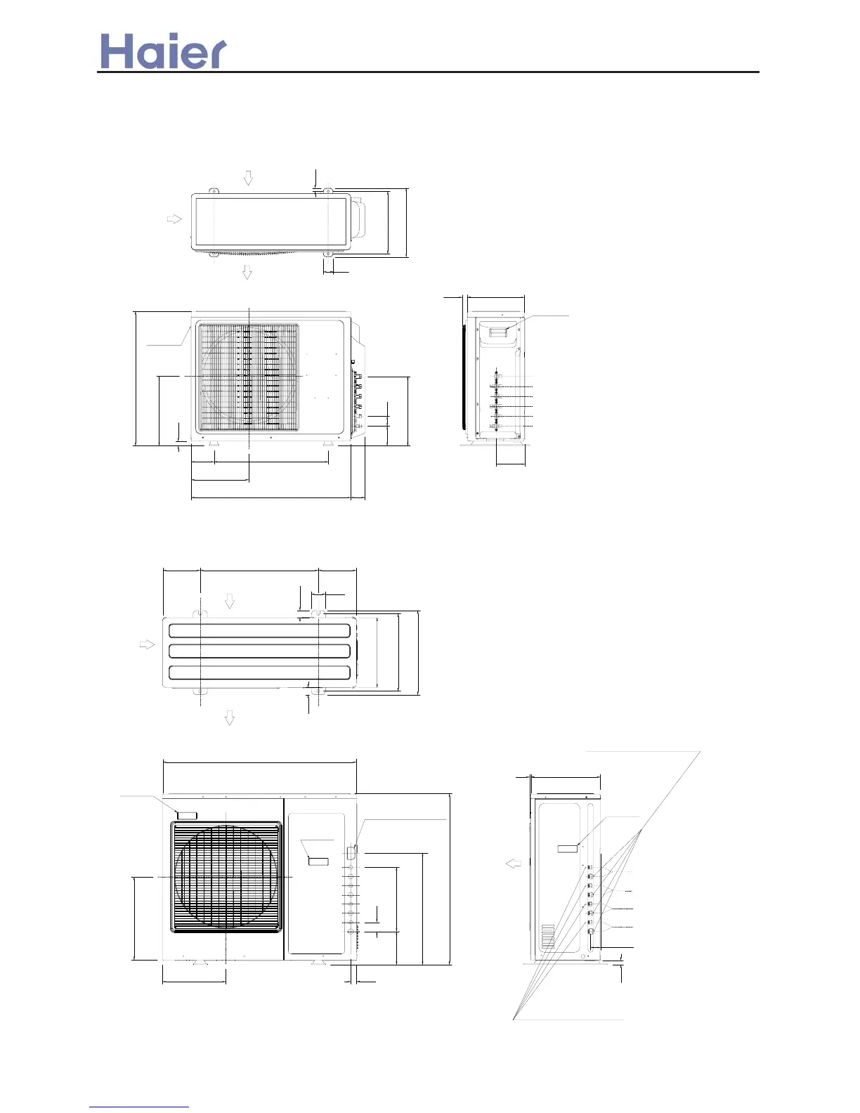
3. Dimension
3U19FS1ERA:
Air outlet
Air inlet
Air inlet
Handle
Liquid pipe:Ø6.35(flared)1/4
Gas pipe :Ø9.52(flared)3/8
Liquid pipe:Ø6.35(flared)1/4
Gas pipe :Ø9.52(flared)3/8
Liquid pipe:Ø6.35(flared)1/4
Gas pipe :Ø9.52(flared)3/8
}
}
}
A unit connection
B unit connection
C unit connection
146
28926
116
293
582
813 73
24
357
688
355
51
52
353
320
16.5
100
Handle
4U25HS1ERA, 4U30HS1ERA:
3406
21
50
Liquid pipe
Ø6.35(flared) 1/4
Gas pipe
Ø9.52(flared) 3/8(A,B,C unit)
Ø12.7(flared) 1/2(D unit)
D unit connection
C unit connection
B unit connection
A unit connection
Handle
311
408
28
163
45
315
840
948
Indoor and outdoor
connect wiring hole
537
(30*48)
Handle
Handle
Air outlet
Air inlet
Air inlet
184 580 184
70
380
413
35
35
340
-21-

Other manuals for Haier AB09CS1ERA

Related product manuals