EasyManua.ls Logo

Haier AB242AEEAA - Page 20

Haier AB242AEEAA
32 pages
Print Icon
To Next Page IconTo Next Page
To Next Page IconTo Next Page
To Previous Page IconTo Previous Page
To Previous Page IconTo Previous Page
Loading...
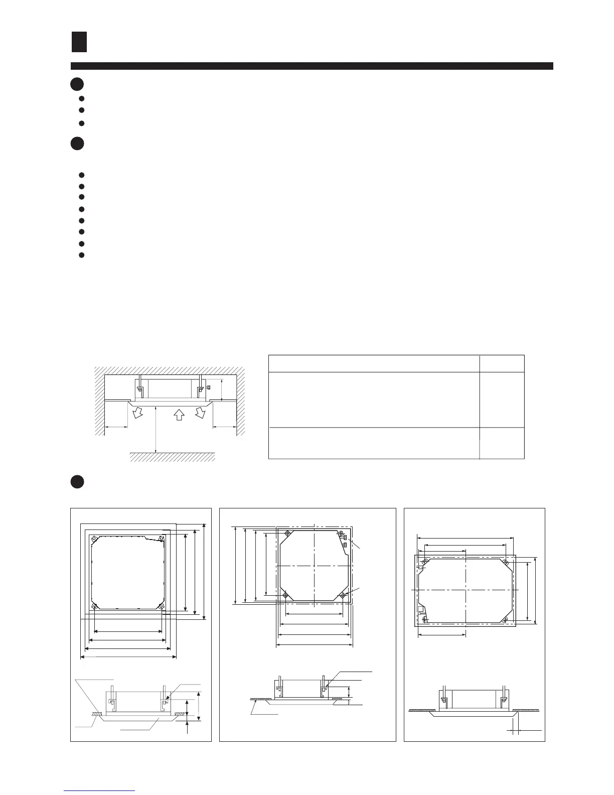
(1) Position of ceiling opening between unit and suspending bolt.
(2) Ceiling height
Indoor unit can be installed on ceiling of 2.5-3m in height. (Refer to Foeld setting and Installation Manual of
ornament panel.)
(3) Install suspending bolt. Check if the installation place is strong enough to hold weight. Take necessary
measures in case it is not safe. (Distance between holes are marked on paper pattern. Refer to paper pattern
for place need be reinforced)
Installation space
(1) Installation place shall meet the following and agreed by customers:
Place where proper air flow can be ensured.
No block to air flow.
Water drainage is smpoth.
Place strong enough to support unit weight.
Place where inclination is not evident on ceiling.
Enough space for mainenance.
Indoor and outdoor unit piping length is within limit. (Refer to Installation Manual for outdoor unit.)
Indoor and outdoor unit, power cable, inter unit cable are at least 1 m away fromT.V. radop. This is helpful
to avoid picture disturbance and noise. (Even if 1 m iskept, noise can still appear if radio wave is strong)
<Don't discard any accessories until comp>
1. BEFORE INSTALLATION
2. SELECTION OF INSTALLATION PLACE
Determine the way to carry unit to installation place.
Don't remove packing until unit reaches installation place.
If unpacking is unkavoidable, protect unit properly.
1
2
18
series 122,182 series 242 and AB282ACEAA, AB282AEEAA For series 602 and AB362ACERA,
AB482ACEAA
Distance between
suspending bolts 535mm
Indoor unit 570mm
Ceiling opening 650mm
Ornament panel 700mm
Indoor unit 570mm
Ceiling opening 650mm
Ornament panel 700mm
Overlap between ceiling and
ornament panel shall be 25mm
Suspending bolts
Ceiling
Ornament panel
150mm
320mm
60mm
Air inlet
Air outlet
2500 Over
Air outlet
1500 Over
1500 Over
H
3. PREPARATION FOR THE INSTALLATION
3
1280(Ceiling opening)
(Distance between suspending bolts)
1070
515
515
(Distance between suspending bolts)
860(Ceiling opening)
780
Note:
Dimension of ceiling opening marked with
*
can
be as large as 910mm, but the matching part of
ceiling with ornament panel shall be over 20mm.
20 Over
Series 122, 182
Series 242
AB282ACEAA,AB282AEEAA
AB282AEERA,AB362ACEAA,AB362AEERA,
AB362ACERA,AB422AEEAA,AB482ACEAA,
AB482AEERA,AB482AEEAA,AB602ACERA
H
310
280
Model
60
Suspending
bracket
Ceiling
140
950(Ornament panel)
890(Ceiling opening)
840(Indoor unit)
780
(Distance between suspending bolts)
(Distance between suspending bolts)
780
950(Ornament panel)
890(Ceiling opening)
840(Indoor unit)
Suspending
bolts
Refrigerant
pipe
Installation Procedure

Related product manuals