EasyManua.ls Logo

Haier AD18LS1ERA - Page 75

Haier AD18LS1ERA
137 pages
To Next Page IconTo Next Page
To Next Page IconTo Next Page
To Previous Page IconTo Previous Page
To Previous Page IconTo Previous Page
Loading...
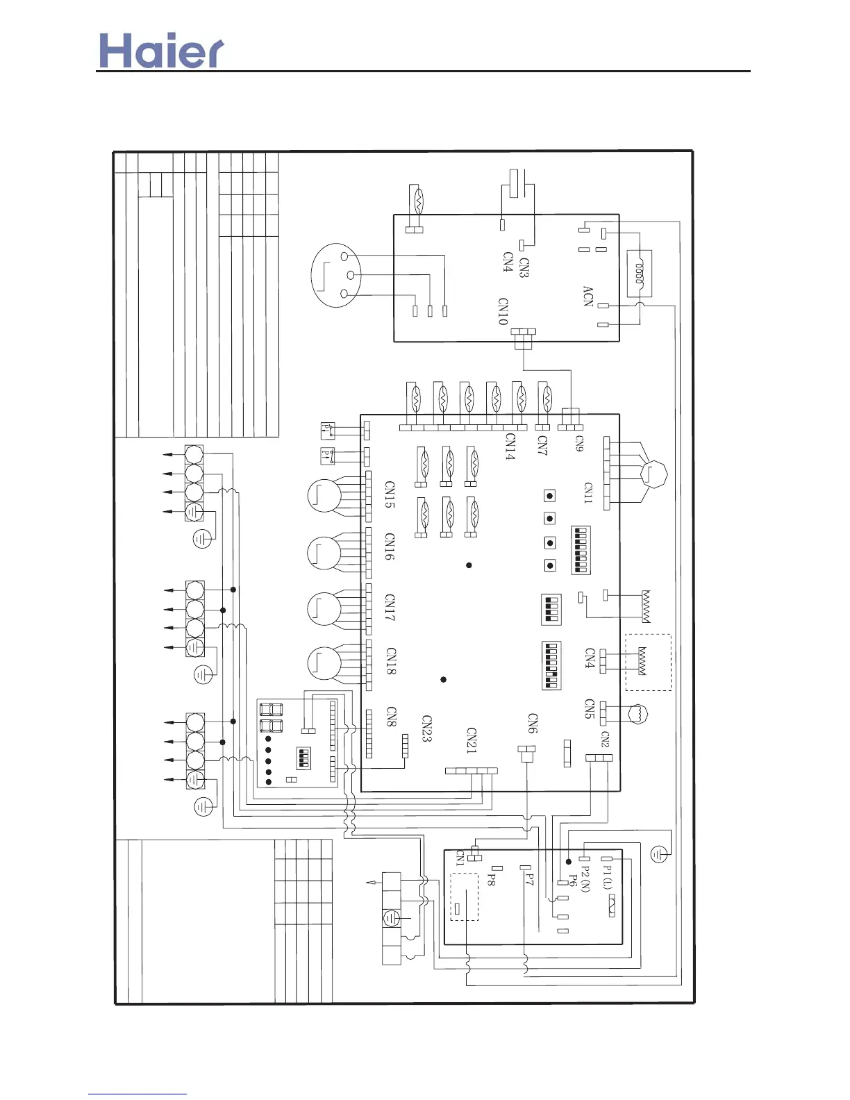
5.1.2. Wiring diagram
>_]]VbTZR\ <Zb >_^UZdZ_^Vb
3U19FS1ERA
-74-
PMV_A
PMV_B
PMV_C
PMV_RE
1 2
3
4
5
6
7
8
PTC
SW
3
SW4
SW2
SW1
CN12
CN13
GND
DISP
T
O Module
ELECTRONIC
CONTROL
UNIT
Y/G
M
Td
Te
Ts
Ta
Tc
LED_G
LED_R
DC F
AN
MO
T
OR
M
To Indoor
Units C
LP
250
V
AC T3.15A
FUSE
4-W
A
Y
V
AL
VE
Toci
M
M
FG
Vsp
Vcc
HP
ACN
ACL
W
U
COMPRESSOR
R
V
B
W
Reactor
U
V
W
MODULE
R0
ON
4
3
2
1
ON
M
DISP
COMM
2
1
3
Y/G
T
o Indoor
Units B
2
1
3
Y/G
T
o Indoor
Units A
2
1
3
CON8
CON9
HE
A
TER
Vdc
L
N
Power
SW6
SW5
CN1
CN2
CN7
CN5
CN6
CN12
Y/G
ON
4
3
2
1
3
N
C
2
N
C
CN1
CN4
SW1
OR: Orange B: Black BL: Blue
Y/G:
Y
ellow/Green R: Red
W
: White
T
oci: Piping
T
emp. Sensor
T
c: Condensing
T
emp. Sensor
T
s: Compressor Suction T
emp. Sensor
T
a: Ambient T
emp. Sensor
Td: Compressor Discharge
T
emp. Sensor
T
e: Defrosting
T
emp. Sensor
Tm: Module
T
emp. Sensor
T
c1-a-b-c:Condensing
T
emp. Sensor for
Indoor Units a/b/c (Gas Pipe)
T
c2-a-b-c:Condensing
T
emp. Sensor for
Indoor Units a/b/c (Liquid Pipe)
*
The dashed part is optional.
B
W
W
B
B
R
Definition of SW5
Defrosting Parameter: ON→6° ; OFF→8°(Default)
Restrict of Max Current: ON→Less than
11A; OFF→Adjust by machine types
3U19FS1ERA
Frequency Modify: ON→
A
vailable; OFF→Unavailable (Default)
Quiet Operation: ON→A
vailable; OFF→Unavailable (Default)
Definition of SW1 on Malfunction Display
State when out of factory (Normal Operating)
Compulsive Heating
Compulsive Cooling
Rated Operating
Definition of SW6
OFF
OFF
OFF
OFF
ON
ON
---- ---- ---- ----
CRANKCASE
HE
ATER
R
R
R
W
B
1 2
3
4
5
6 7
8
ON
SW7
4
3
2
1
5
W
CN24 A-TC1
CN25 B-TC1
CN26 C-TC1
CN29 A-TC2
CN30 B-TC2
CN31 C-TC2
OFF
OFF
OFF
ON
ON
Address=1
Address=2
------------
Address=16
1
3
2
4
Centralized Control
0150504715
1
2
3
4
OFF
OFF
OFF
OFF
ON
OFF
OFF
OFF
OFF
OFF
OFF
OFF
OFF OFF
ON
ON
OFF
1
2
3
4
5
6
7
8
OFF
OFF
ON
+
-
OR
Capacitor
BL
P(+)
N(-)
ON

Related product manuals