EasyManua.ls Logo

Haier AD28NAMBEA - 4. Net Dimensions of Indoor and Outdoor Units; Indoor Unit Dimensions Diagrams

Haier AD28NAMBEA
136 pages
To Next Page IconTo Next Page
To Next Page IconTo Next Page
To Previous Page IconTo Previous Page
To Previous Page IconTo Previous Page
Loading...
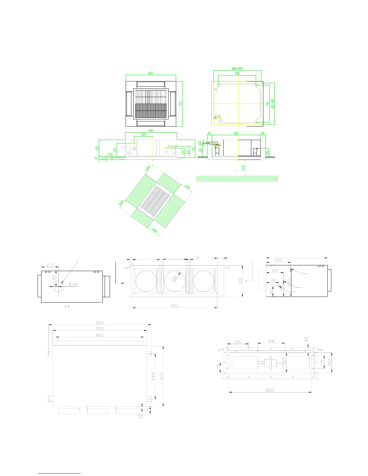
4.Net dimensions of indoor and outdoor unit
Indoor unit Models
1) AB242ACBEA AB28NACBEA
2) AD242AMBEA AD28NAMBEA
-14-
35
260
27535
A-A
A-A
drainage pipe
B-B
fresh air outlet
655
liquid pipe
gas pipe

Related product manuals