EasyManua.ls Logo

Haier AD71S2SS1FA - Installationsverfahren

Haier AD71S2SS1FA
210 pages
Print Icon
To Next Page IconTo Next Page
To Next Page IconTo Next Page
To Previous Page IconTo Previous Page
To Previous Page IconTo Previous Page
Loading...
Innengerät
17
Installationsverfahren
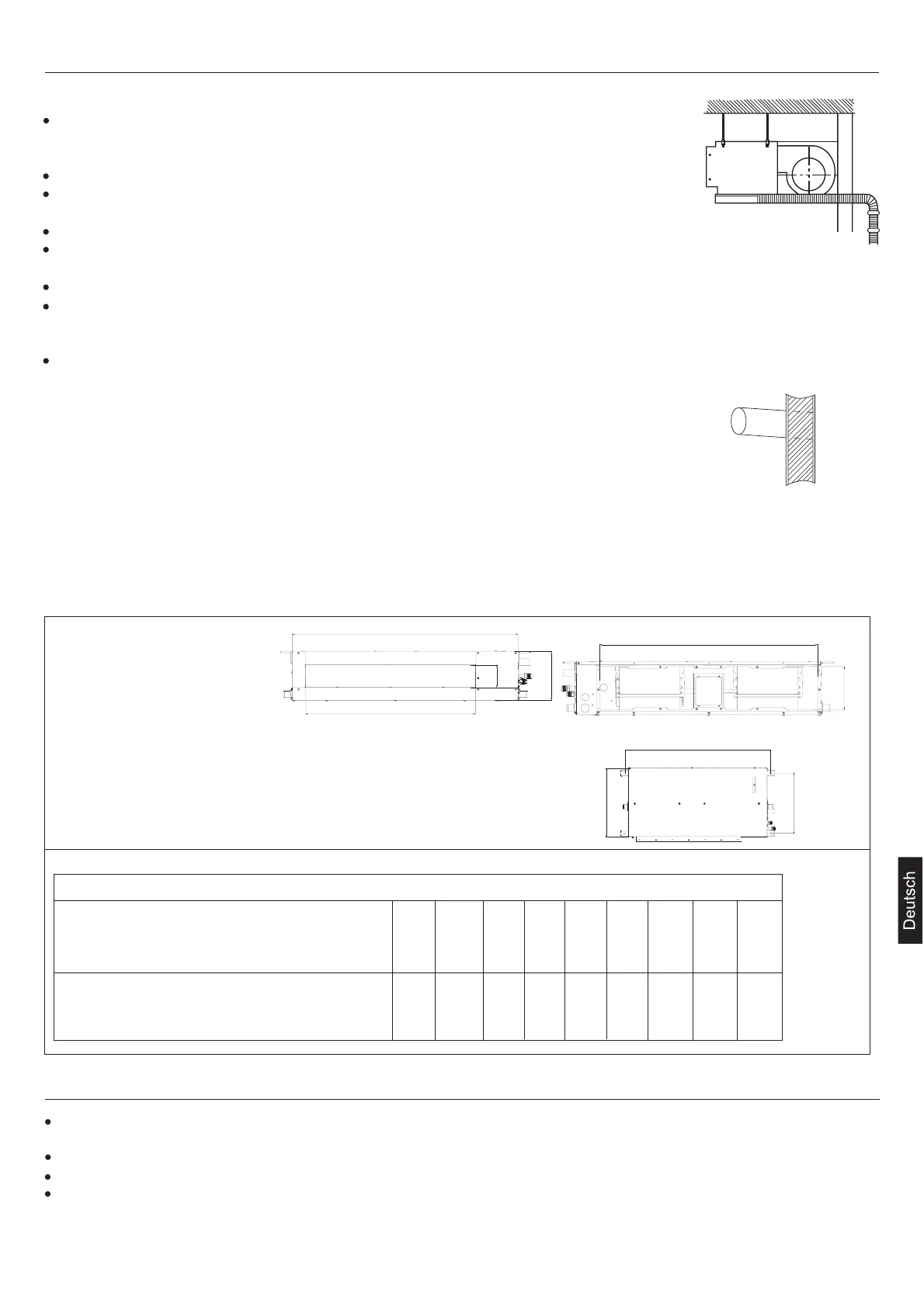
Auswahl der Montageposition für die Installation der Innengeräte
Luftkanal
Wählen Sie geeignete Stellen, an denen die Abluft in den gesamten Raum geleitet werden kann und
das Verbindungsrohr, der Anschlussdraht und das Abflussrohr bequem nach außen vergelegt
werden können.
Die Deckenstruktur muss stark genug sein, um das Gewicht der Einheit zu tragen.
Das Verbindungsrohr, das Abflussrohr und der Verbindungsdraht müssen durch die Gebäudewand
geführt werden können, um eine Verbindung zwischen den Innen- und Außengeräten herzustellen.
Das Verbindungsrohr zwischen Innen- und Außengerät sowie das Abflussrohr muss so kurz wie möglich sein.
Wenn Sie die Füllmenge des Kältemittels anpassen müssen, beachten Sie die dem Außengerät beiliegende
Installationsanleitung.
Der Anschlussflansch sollte vom Benutzer selbst zur Verfügung gestellt werden.
Das Innengerät verfügt über zwei Wasserauslässe, von denen einer werkseitig versperrt ist (mit einer Gummikappe). Nur der
Auslass, der nicht versperrt ist (Flüssigkeitseinlass und -auslassseite), wird im Allgemeinen während der Installation
verwendet. Gegebenenfalls sollten beide Auslässe zusammen verwendet werden.
Während der Installation des Innengeräts muss für die Wartung ein Zugangsport bereitgestellt werden.
Führen Sie nach der Auswahl des Installationsorts der Einheit die folgenden Schritte aus:
1. Bohren Sie ein Loch in die Wand und führen Sie das Verbindungsrohr und den Draht durch ein PVC-
Durchgangsrohr ein, das Sie vor Ort erworben haben. Das Wandloch muss eine Neigung von
mindestens 1/100 nach außen haben.
2. Prüfen Sie vor dem Bohren, dass sich hinter der Bohrposition kein Rohr oder Verstärkungsstab
befindet. Beim Bohren muss die Positionen mit elektrischem Draht oder Rohr vermieden werden.
3. Montieren Sie das Gerät auf einem starken und horizontalen Gebäudedach. Wenn die Basis nicht fest
ist, kann es zu Geräuschen, Vibrationen oder Auslaufen kommen.
4. Montieren Sie das Gerät auf einem starken und horizontalen Gebäudedach. Wenn die Basis nicht fest
ist, kann es zu Geräuschen, Vibrationen oder Auslaufen kommen.
5. Ändern Sie die Form des Verbindungsrohrs, des Verbindungskabels und des Abflussrohrs so, dass
sie leicht durch das Wandloch gehen können.
Jeder Luftführungskanal und Luftrückführungskanal werden durch die Eisenhalterung an der vorgefertigten Bodenplatte
befestigt. Der empfohlene Abstand zwischen der Kante des Luftrückführungskanals und der Wand beträgt über 150 mm.
Das Gefälle der Kondensatwasserleitung muss über 1% liegen.
Die Kondensatwasserleitung muss wärmeisoliert sein.
Bei der Installation des Kanaleinbauinnengeräts muss der Luftrückführungskanal wie in der Abbildung gezeigt konstruiert
und installiert werden.
Installationsverfahren
Abmessungen des Innengeräts (Einheit: mm)
B
A
C
H
I
D
E
F
G
Modell der Einheit
A B C D E F G H I
420 892 370 850 185 640 90 760 152
AD25S2SS1FA AD35S2SS1FA
AD25S2SS2FA AD35S2SS2FA
AD25S2SS1FA-1 AD25S2SS1FA(H)
AD35S2SS1FA-1 AD35S2SS1FA(H)
AD25S2SS1FA AD35S2SS1FA
AD50S2SS1FA AD71S2SS1FA
AD25S2SS2FA AD35S2SS2FA
AD50S2SS2FA AD71S2SS2FA
AD25S2SS1FA-1 AD25S2SS1FA(H)
AD35S2SS1FA-1 AD35S2SS1FA(H)
AD50S2SS1FA-1 AD50S2SS1FA(H)
AD71S2SS1FA-1 AD71S2SS1FA(H)
AD50S2SS1FA AD50S2SS2FA
AD71S2SS1FA AD71S2SS2FA
AD50S2SS1FA-1 AD50S2SS1FA(H)
AD71S2SS1FA-1 AD71S2SS1FA(H)
420 1212 370 1170 185 960 90 1080 152
Einbaumaß

Table of Contents

Other manuals for Haier AD71S2SS1FA

Related product manuals