EasyManua.ls Logo

Haier AFD631 - Sensor Locations and Malfunction Codes; Graphic Sensor Location Display

Haier AFD631
35 pages
Print Icon
To Next Page IconTo Next Page
To Next Page IconTo Next Page
To Previous Page IconTo Previous Page
To Previous Page IconTo Previous Page
Loading...
CONTROL AND DISPLAY SYSTEM
refrigerator will start operating normally. This function is not equivalent to turning off the power.
Error indication
When E or F is displayed due to fault, the refrigerator can still refrigerate. Please contact
professional after sales service personnel as soon as possible.
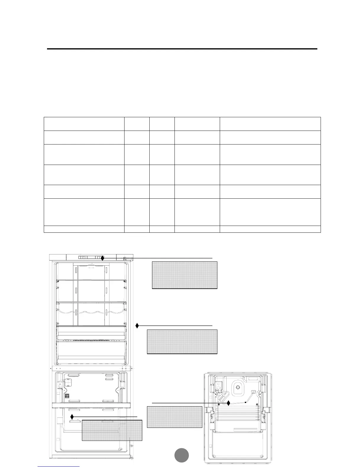
5.2 Sensor Distribution and Malfunction Codes
5.2.1 Sensor location description
Malfunction description Sign Display
Display
position
Sensor location
Malfunction of the ambient
temperature sensor
H SNR F2 Display panel
The ambient temperature sensor is
located on the display panel
Malfunction of the fridge
storage temperature sensor
R SNR F3 Display panel
The fridge storage temperature
sensor is located on the right side of
the fridge storage compartment
Malfunction of the freezer
storage temperature sensor
F SNR F4 Display panel
The freezer storage temperature
sensor is located on the left side of
the freezing air-duct cover
Malfunction of the defrosting
temperature sensor
D SNR F6 Display panel
The defrosting temperature sensor is
located on the fin evaporator
Malfunction of
communication between the
display panel and the power
board
/ E0 Display panel /
Malfunction of the fan / E1 Display panel /
5.2.2 Graphic display of the sensor location
Fridge storage
temperature sensor
Ambient temperature
sensor
Freezer storage
tem
p
erature senso
r
Defrosting
temperature sensor

Related product manuals