EasyManua.ls Logo

Haier HC17SF15RB - Chapter 5 Circuit Diagram; Brief Principle Diagram

Haier HC17SF15RB
18 pages
To Next Page IconTo Next Page
To Next Page IconTo Next Page
To Previous Page IconTo Previous Page
To Previous Page IconTo Previous Page
Loading...
.
SERVICE MANUAL
Model:HC17SF15RW/B HC27SF22RW/B
10
Issue 2014-03-24
Rev. Ref1403S007V0
Chapter 5 Circuit diagram
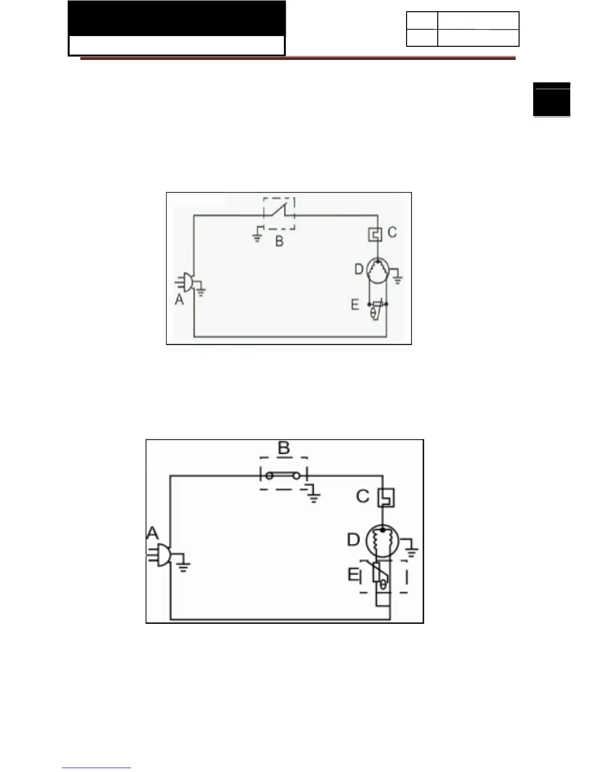
5-1. Brief principle diagram
HC17SF15RB/W:
A POWER PLUG B THERMOSTAT C OVERLOAD PROTECTOR
D COMPRESSOR E PTC
HC27SF22RW/B:
A POWER PLUG B THERMOSTAT C OVERLOAD PROTECTOR
D COMPRESSOR E PTC

Other manuals for Haier HC17SF15RB

Related product manuals