EasyManua.ls Logo

Haws 2000SMS - Step 7: Connect Filter Wiring and Supply Line; Step 8: Reattach Screws and Apply Power; Step 9: Activate and Adjust Bottle Filler; Step 10: Flush the System

Haws 2000SMS
6 pages
Print Icon
To Next Page IconTo Next Page
To Next Page IconTo Next Page
To Previous Page IconTo Previous Page
To Previous Page IconTo Previous Page
Loading...
08/18 Model 2000SMS Page 5 of 6
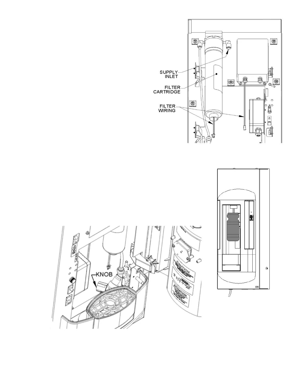
Step 7: Place the bottle filler onto its mounting bracket
and run 3/8” tubing (not supplied) between the
screwdriver stop (installed in Step 5) and the
bottle filler’s supply inlet elbow in the filter
head (it may help to temporarily remove the
filter cartridge see Step 7 Diagram). Connect
the wiring coming off of the filter cartridge to
the wiring coming out of the circuit board
enclosure (see Step 7 Diagram).
Step 8: Replace the mounting screws removed
in Step 2 (see Step 2 Diagram for
details). Provide AC power to unit.
Step 9: Activate the bottle filler by placing a bottle or cup in front of the
sensor (see Step 9 Diagram A). If water does not dispense, see
the Troubleshooting Guide in the Owner’s Manual.
The pressure regulator may need to be adjusted to better
complement the input pressure at the installation site (see Step 9
Diagram B). To do so, pull out the adjustment knob and rotate as
needed (clockwise from the front of the unit decreases flow); push
knob in when desired flow is achieved.
* Flow rate is factory set to the maximum flow rate for decreased
water consumption.
Step 10: Approximately five gallons of water must be run through the system after the unit is
installed in order to remove the loose carbon particles from the filter cartridge and any air
bubbles from the system (both of these are normal occurrences after a filter change).
Check the system for leaks. Place hex key in a secure location.
Step 7 Diagram (Back View)
Step 9 Diagram A
Step 9 Diagram B

Related product manuals