EasyManua.ls Logo

Hayward CAT-2000 - Page 7

Hayward CAT-2000
28 pages
Print Icon
To Next Page IconTo Next Page
To Next Page IconTo Next Page
To Previous Page IconTo Previous Page
To Previous Page IconTo Previous Page
Loading...
USE ONLY HAYWARD GENUINE REPLACEMENT PARTS
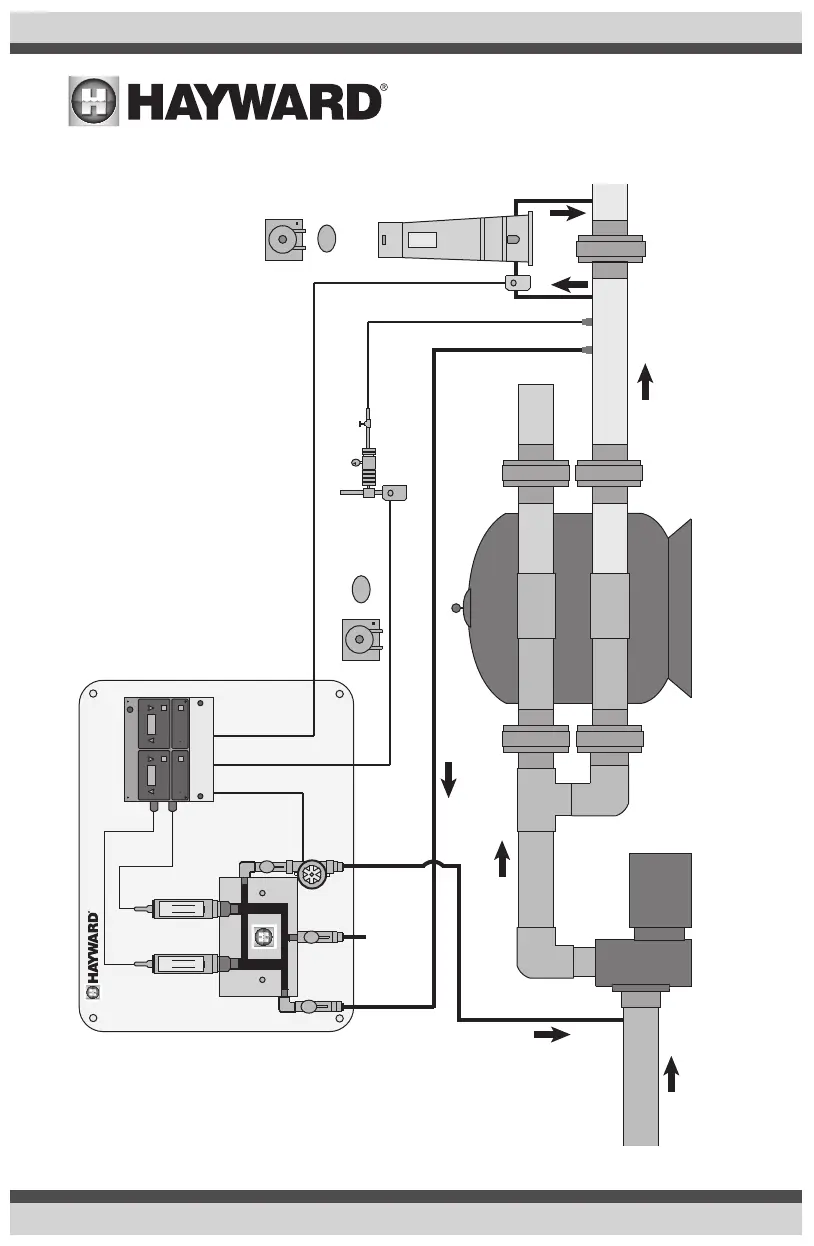
6
Typical CAT 2000 Installation Diagram With Flowcell
CAT Controllers
Flow
Main Drain
and Skimmer
Flow
Flow
Flow
Flow Cell / Flow Sensor Bypass Line
Solenoid
Flow
Pressure
Differential
Solenoid
CAT CO2
pH Control
Erosion
Feeder
or
or
Chemical
Pump
Chemical Pump
Influent
(to Return Line)
Effluent
(to Suction)
SUCTION LINE
PUMP
FILTER
WASTE
RETURN LINE
CAT PRO25
ORP
Sensor
CAT PRO15
pH
Sensor
pH
ORP
CAT 2000
Chemical Automation Technologies Automated Controller
pH / ORP
pH ORP
FEED
ALARM
Setpoint Adjustment
SET CALIBRATE
Channel Mode Selection
AUTO OFF MANUAL
FEED ALARM
Setpoint Adjustment
SET BREAKPOINT
Channel Mode Selection
AUTO OFF MANUAL
POWER
Rotary
Flow Sensor
pH
ORP
CAT 2000
CONTROLLER
Sample
Stream
ALL CHEMICALS MUST BE INJECTED DOWN STREAM FROM HEATER AND FLOW CELL

Related product manuals